

Angulis Wolfram Buck & Stefan Eipper GbR
Herrn Wolfram Buck
073 ···
Nr. anzeigenPreise & Kosten
Provision für Käufer
provisionsfrei
Lage
Hemsbach - gelegen zwischen Rhein und Odenwald - überzeugt durch seine gute Infrastruktur, ruhige Wohnlagen und Nähe zur Natur. Die Autobahn A5 ist in wenigen Minuten erreichbar, ebenso Städte wie Mannheim, Heidelberg oder Darmstadt.
Kindergärten, Schulen, Einkaufsmöglichkeiten und vielfältige Freizeitangebote wie der...
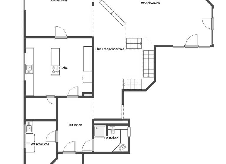
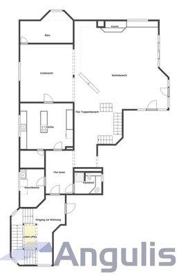
Die Wohnung
Kategorie
Penthouse
Wohnanlage
Energie & Heizung
Warum sehe ich diese Anzeige? – Du siehst diese Anzeige basierend auf Ihrer Navigation auf unserer Website und den Suchkriterien, die du verwendet hast.
Energieausweistyp
Bedarfsausweis
Gebäudetyp
Wohngebäude
Baujahr laut Energieausweis
1990
Wesentliche Energieträger
ERDGAS_SCHWER
Gültigkeit
bis 01.09.2035
Effizienzklasse
A
Endenergiebedarf
67,00 kWh/(m²·a)
Weitere Energiedaten
Heizungsart
offener Kamin
Details
Objektbeschreibung
Dieses außergewöhnliche Penthouse auf rund 361 m² Wohnfläche ist mehr als eine Wohnung - es ist ein Lebenskonzept. Ideal für Großfamilien, mehrere Parteien oder eine Senioren-WG: Hier genießen Sie gemeinsame Momente und gleichzeitig private Rückzugsbereiche für jede Generation oder Bewohnerpartei.
Erste Ebene -...
Ausstattung
Fußbodenheizung in allen Räumen
Maßgefertigte Einbauschränke
Carrara-Marmorböden
Elektrische Rollläden und Jalousien
Wäscheabwurf
Zwei abgeschlossene Kellerräume
3 Bäder
Küche
Große Terrasse
Loggia
Weitere Informationen
Sonstiges
Zur Haftung
Wir weisen darauf hin, dass alle von uns weitergegebenen Daten,
Objektdaten, Informationen, Unterlagen, Pläne etc. vom
Verkäufer bzw. Eigentümer stammen. Eine Haftung für die
Richtigkeit oder Vollständigkeit der Angaben übernehmen wir
daher nicht. Es obliegt daher unseren Kunden, die...
Anbieter der Immobilie
Angulis Wolfram Buck & Stefan Eipper GbR
In der Strenge 14, 89179 Beimerstetten

Online-ID: 2nbym56
Referenznummer: 2026-00104
Finde Angebote wie dieses
Hier geht es zu unserem Impressum, den Allgemeinen Geschäftsbedingungen, den Hinweisen zum Datenschutz und nutzungsbasierter Online-Werbung.