




Haus zum Kauf1890000 €4.725 €/m²11 Zimmer • 400 m² • 1.125 m² Grundstück
1890000 €
4.725 €/m²
11 Zimmer • 400 m² • 1.125 m² Grundstück
Hochwertige Wohnimmobilie mit 3 Einheiten - Wohnen und Arbeiten in waldnaher Ruhelage
Merkmale
- 1.125 m² Grundstück
- Einbauküche, offene Küche
- 4 Stellplätze: 4 Außen-Stellplätze
- Terrasse
- Raumaufteilung flexibel
- Badezimmer: Badewanne, Bad mit Dusche
- Bodenbelag: Fliesen, Laminat
- voll erschlossen
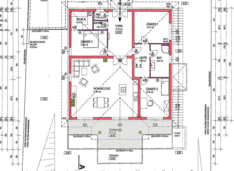
Grundrisse
Grundrisse
1 / 3
Realisiere Dein Projekt
Bausubstanz und Energie
Heizwärmebedarf (HWB)
E
Gesamtenergieeffizienz (fGEE)
D
- Baujahr2013
- Zustand der ImmobilieNeubau, Massivhaus, neuwertig
- HeizungsartZentralheizung: Fußbodenheizung
- EnergieträgerGas
Preisdetails
Kaufpreis
1890000 €
4.725 €/m²
Provision für Käufer
3% des Kaufpreises zzgl. 20% USt.
Weitere Preisinformationen
4 Stellplätze
Lage

Gablitz (3003)
Der Anbieter hat die genaue Adresse nicht freigegeben
Weitere Informationen
Weitere Services
Lust auf eine Besichtigung?
Eine Frage zur Immobilie?
Über den Anbieter
Rudi Dräxler Immobilientreuhand GesmbHMaklerbüro
Albert-Schweitzer-Gasse 6, 1140 WIEN
10 Jahre Partnerschaft
Frau Verde LenzDein Kontakt
Online-ID: 2nxp759
Referenznummer: OBGC20260122155842463854d235251

Rudi Dräxler Immobilientreuhand GesmbH
Bewertung: 4,1 von 5 Sternen
Wie zufrieden bist du mit dieser Seite (nicht mit der Immobilie selbst)?

