LivingHaus: Dein maßgeschneidertes Traumzuhause in Gedern
In Gedern erwartet dich ein einzigartiges LivingHaus, das individuell nach deinen Wünschen und Vorstellungen gestaltet wird. Dieses Fertighaus im eleganten Bauhausstil beeindruckt mit einem modernen Flachdach und einer durchdachten Raumaufteilung auf einer Etage. Der großzügige Übereck-Panoramaerker erweitert den Wohn- und Essbereich und ermöglicht dir einen beeindruckenden Ausblick auf dein 560 m² großes Grundstück. Die clevere Planung setzt sich auch außen fort: Eine großzügige Eingangsüberdachung geht nahtlos in den Carport über, sodass du jederzeit trocken vom Auto ins Haus gelangst.
Mit der Traumküche von Living Haus erlebst du kulinarische Exzellenz direkt in deinem Zuhause. Diese Küche wird passgenau auf deinen Grundriss abgestimmt, mit modernster Technik ausgestattet und rechtzeitig zum Einzug geliefert.
Das Living Haus Bau-Cockpit sorgt dafür, dass du stets den Überblick über dein Bauprojekt behältst. Es bietet dir eine digitale Plattform zur Verwaltung aller wichtigen Dokumente und Termine.
Innovatives Bauen wird bei Living Haus großgeschrieben - I-KON steht für intelligentes Bauen mit Nachhaltigkeit im Fokus. Dein Haus erreicht den Effizienzhausstandard 55, wodurch es besonders energieeffizient ist.
Für die Finanzierung deines Traumhauses steht dir das exklusive Zuhause-Darlehen zur Verfügung. Es bietet dir hervorragende Konditionen und Zugang zu staatlichen Förderprogrammen.
Mit dem Zuhause-Paket erhältst du eine qualitativ hochwertige Grundausstattung, die moderne Böden, edle Türen und stilvolle Sanitäranlagen umfasst.
Zusätzlich kannst du beim DIY-Ausbau-Coaching selbst Hand anlegen und unter professioneller Anleitung lernen, wie du den Innenausbau meisterst.
Merkmale
Bezug: 2026
560 m² Grundstück
Einbauküche, offene Küche
Badezimmer: Badewanne, Bad mit Dusche, Bad mit Fenster
Dein neues Fertighaus von Living Haus kommt mit einer umfassenden Ausstattung, die keine Wünsche offenlässt. Du profitierst von einer Festpreisgarantie über 18 Monate ab deiner Auftragsbestätigung. Sollte der Baupreisindex fallen, passt sich auch der Preis deines Hauses entsprechend an, damit du immer von sinkenden Kosten profitierst. Gleichzeitig bist du durch essenzielle Bauversicherungen optimal abgesichert - dazu gehören die Bauherrenhaftpflicht-, Bauleistungs-, Wohngebäude- und Bauhelfer-Unfallversicherung sowie ein umfassender Baufinanzierungsschutz.
Für deine Finanzierung kannst du das Zuhause-Darlehen nutzen, das bis zu 250.000 Euro umfasst und oft zu einem Zins knapp unter dem Marktniveau angeboten wird. Mit dem Living Haus Bauherren-Cockpit hast du direkten Kontakt zu deinen Ansprechpartnern, Einsicht in alle relevanten Unterlagen sowie eine Inspirationspinnwand für deine Ideen.
Auch in Sachen Nachhaltigkeit ist dein neues Heim bestens ausgestattet: Die DGNB-Serienzertifizierung in Gold sowie die QDF-Zertifizierung garantieren höchste Standards. Eine 30-jährige Garantie auf die Grundkonstruktion des Gebäudes gibt dir zusätzliche Sicherheit.
Zwei Tage intensiver Ausstattungsberatung in der Haus-Statterei stehen dir zur Verfügung, ebenso wie eine vollständige Bauantragsplanung durch erfahrene Architekten und ein Bodengutachten für die ideale Gründung deines Hauses.
Die Baustelleneinrichtung ist komplett organisiert - inklusive Abfallcontainer, Baustellen-WC, Montagekran und -gerüst. Für klimafreundliche Neubauten winken KFN- und QNG-Förderkredite sowie Baubegleitung durch eigene Sachverständige.
Dein Haus verfügt über eine vorkonfigurierte I-KON-Lösung mit integrierter PV-Anlage samt Speicherbatterie für einen Großteil des Strombedarfs. Moderne Wärmepumpentechnik mit Komfortlüftung und Wärmerückgewinnung sorgt für effizientes Heizen und ein angenehmes Raumklima.
Abgerundet wird das Angebot durch das DIY-Ausbau-Coaching: Über drei intensive Tage lernst du alles Wichtige für den Innenausbau von Profis kennen.
Ein rundum sorgloses Paket - genau so wird dein »Wie ich es will Fertighaus« Realität.
Dargestellte Sonderbauteile sind nicht Bestandteil des Standardlieferumfangs und somit nicht im Preis berücksichtigt.
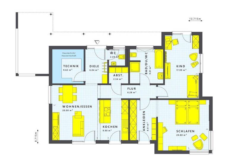
Grundrisse
Grundrisse
1 / 1
Realisiere Dein Projekt
Bausubstanz und Energie
Energieausweis
A+
Baujahr2026
Zustand der ImmobilieProjektiert
HaustypKfW 55
HeizungsartZentralheizung
EnergieträgerLuft-/Wasser-Wärmepumpe
Preisdetails
Kaufpreis
428805 €428.805 €
4.245,59 €/m²
Provision für Käufer
Provisionsfrei
Geschätzte Gesamtkosten
478.417 €1
Kaufpreis
428.805 €
Kaufnebenkosten
49.612 €
2
Notarkosten (1,5%)
6.432 €
Grunderwerbsteuer (6%)
25.728 €
Provision für Käufer (3,57%)
15.308 €
Grundbucheintrag (0,5%)
2.144 €
1Der angezeigte Wert ist eine automatisch berechnete Schätzung von immowelt.
2Bei den Angaben handelt es sich um ortsübliche Werte. Individuelle Kosten können abweichen.
Lage
Gedern (63688)
Der Anbieter hat die genaue Adresse nicht freigegeben
Gedern liegt malerisch eingebettet zwischen sanften Hügeln und weitläufigen Wäldern am Fuße des Vogelsbergs in Hessen. Diese charmante Stadt bietet eine hohe Lebensqualität für Familien, Naturliebhaber und Pendler gleichermaßen.
Für Familien stehen zahlreiche Bildungseinrichtungen zur Auswahl: Die Grundschule Gedern genießt einen hervorragenden Ruf aufgrund ihres engagierten Lehrpersonals und moderner Unterrichtsmethoden. Weiterführende Schulen sind ebenfalls gut erreichbar, sodass Kinder jeden Alters hier bestens versorgt sind.
Im Gesundheitssektor findest du in Gedern alles Nötige vor Ort: Mehrere Allgemeinmediziner bieten umfassende medizinische Versorgung an, während spezialisierte Fachärzte leicht in umliegenden Städten erreichbar sind.
Einkaufsmöglichkeiten gibt es reichlich - vom Supermarkt bis hin zu kleinen Boutiquen im Stadtzentrum ist alles vorhanden, was das Herz begehrt. Auch größere Einkaufszentren sind nur eine kurze Fahrt entfernt zu finden.
Für Freizeitaktivitäten bietet Gedern zahlreiche Möglichkeiten: Ob Wandern oder Radfahren im Naturpark Hoher Vogelsberg oder entspannte Stunden am Gederner See - hier kommen Outdoor-Fans voll auf ihre Kosten. Zudem lädt die historische Altstadt mit ihren Fachwerkhäusern zum Bummeln ein.
Der öffentliche Nahverkehr ist hervorragend ausgebaut; regelmäßige Busverbindungen erleichtern den Weg nach Frankfurt am Main oder Hanau - ideal für Pendler! Zudem erreichst du schnell die Autobahn A45, wodurch auch weitere Ziele einfach erreichbar sind.
Weitere Informationen
Sonstiges
Mit der Bau-Cockpit APP hast du immer alle Infos zu deinem Fertighaus griffbereit. Alle relevanten Dokumente sowie der Baufortschritt sind mit einem Klick abrufbar.
Ich zeige dir, wie du zu deinem perfekten Traumhaus kommst und freue mich darauf, von dir zu hören!
Stichworte
Anzahl der Schlafzimmer: 2, Anzahl der Badezimmer: 1, 1 Etagen