Attraktive Eigentumswohnung mit großem Balkon und Entwicklungspotenzial in ruhiger Lage von Gera
Zum Verkauf steht eine solide und großzügig geschnittene 3-Zimmer-Wohnung mit einer Wohnfläche von ca. 90,61 m², gelegen im 2. Obergeschoss eines Mehrfamilienhauses in ruhiger und gewachsener innerstädtischen Wohnlage von Gera.
Die Wohnung überzeugt durch ihren durchdachten Grundriss und einen großzügigen Balkon mit Blick ins Grüne. Alle Räume sind gut proportioniert und bieten vielseitige Nutzungsmöglichkeiten. Ideal für eine nachhaltige Kapitalanlage oder auch perspektivische Eigennutzung.
Ein besonderes Highlight ist der großzügige Balkon, der den Wohnraum erweitert und einen attraktiven Mehrwert für die Mieter darstellt.
Die Wohnung ist mit hellem Laminat ausgestattet, welches den Räumen eine moderne und freundliche Ausstrahlung verleiht. Das Badezimmer entspricht einem zeitgemäßen Standard und befindet sich ebenso wie die gesamte Wohnung in einem gepflegten Zustand.
Die Wohnung ist Teil einer ordnungsgemäß verwalteten Wohnungseigentümergemeinschaft. Das monatliche Hausgeld beträgt derzeit 322 €, hiervon werden 55 € monatlich der Instandhaltungsrücklage zugeführt. Der auf die Wohnung entfallende Anteil an der Instandhaltungsrücklage beträgt aktuell 6.784 € und stellt eine solide finanzielle Basis für zukünftige Instandhaltungsmaßnahmen dar.
Die Wohnanlage befindet sich insgesamt in einem gepflegten und soliden Allgemeinzustand. Laut vorliegenden Unterlagen sind derzeit keine Sonderumlagen beschlossen oder geplant, ebenso stehen keine größeren Instandhaltungsmaßnahmen oder kostenintensiven Baumaßnahmen an.
Die Wohnung ist seit über 10 Jahren zuverlässig vermietet und bietet Kapitalanlegern ein stabiles und langfristig gesichertes Mietverhältnis.
Merkmale
frei ab sofort
vermietet
2. Geschoss
separate Küche
Keller (gesamt 9 m²)
Balkon (gesamt 10 m²)
DSL-Anschluss
Blick zum Innenhof
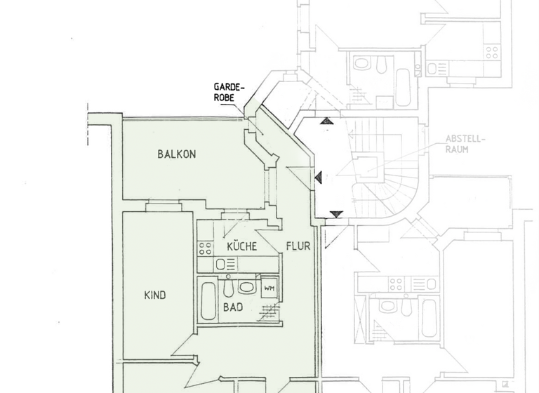
Grundrisse
Grundrisse
1 / 1
Bausubstanz und Energie
Energieausweis
D
Baujahr1920
Letzte Modernisierung2015
Zustand der ImmobilieSaniert
Haustypk.A.
HeizungsartZentralheizung: Heizkörper
EnergieträgerGas, fossile Brennstoffe
Preisdetails
Kaufpreis
78000 €78.000 €
857,14 €/m²
Hausgeld
322 €322 €
Provision für Käufer
3,57 % Käuferprovision inkl. MwSt., verdient und fällig mit Beurkundung des notariellen Kaufvertrages.
Geschätzte Gesamtkosten
86.245 €1
Kaufpreis
78.000 €
Kaufnebenkosten
8.245 €
2
Notarkosten (1,5%)
1.170 €
Grunderwerbsteuer (5%)
3.900 €
Provision für Käufer (3,57%)
2.785 €
Grundbucheintrag (0,5%)
390 €
1Der angezeigte Wert ist eine automatisch berechnete Schätzung von immowelt.
2Bei den Angaben handelt es sich um ortsübliche Werte. Individuelle Kosten können abweichen.
Lage
Herderstraße 16, Innenstadt, Gera (07545)
Die Herderstraße befindet sich in einer ruhigen und gewachsenen Wohnlage mit überwiegend sanierten Mehrfamilienhäusern und gepflegter Umgebung.
In unmittelbarer Nähe befinden sich:
- Einkaufsmöglichkeiten für den täglichen Bedarf
- öffentliche Verkehrsmittel
- Ärzte und Apotheken
- Schulen und Kindergärten
- Grünflächen und Naherholungsmöglichkeiten
Das Stadtzentrum von Gera ist in wenigen Minuten erreichbar. Die Lage vereint ruhiges Wohnen mit guter infrastruktureller Anbindung und stellt somit einen attraktiven Wohnstandort dar.
Weitere Informationen
Bitte geben Sie bei Ihrer Anfrage Ihre vollständige Anschrift sowie ihre E-Mail-Adresse und Telefonnummer an, damit wir sie zeitnah kontaktieren können. Wir nehmen uns Zeit, um unsere Interessenten kennen zu lernen und erörtern ihre individuellen Bedürfnisse und holen wichtige Informationen ein. Gerne stellen wir Ihnen weitere Unterlagen zur Verfügung oder vereinbaren einen Besichtigungstermin.
Wir freuen uns auf Ihre Anfrage!