Mehrfamilienhaus zum Kauf • als Kapitalanlage geeignet
690000 €690.000 €
2.754 €/m²
10 Zimmer • 250,6 m² • 540 m² Grundstück
Gepflegtes Mehrfamilienhaus in attraktiver Lage von Neuss
Wohnen & Vermieten vereint - Ihr neues Zuhause mit zusätzlichem Einkommen
Stellen Sie sich vor, Sie wohnen im eigenen Zuhause - und gleichzeitig arbeitet Ihre Immobilie für Sie. Genau diese Kombination bietet Ihnen dieses gepflegte Mehrfamilienhaus in Neuss-Gnadental.
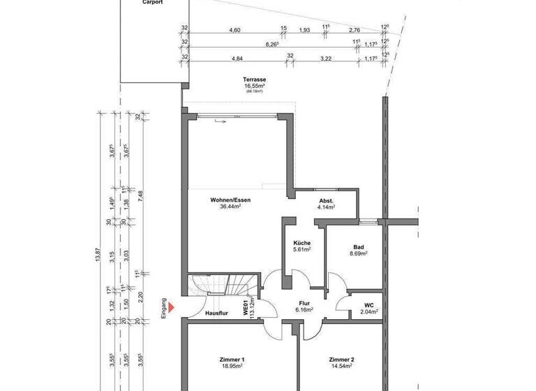
Die Erdgeschosswohnung empfängt Sie mit einem durchdachten Grundriss und einem besonderen Wohngefühl. Das Herzstück bildet das gemütliche Wohnzimmer mit Kamin - ein Ort für entspannte Abende. Die offene Küche fügt sich harmonisch ein und schafft eine moderne, kommunikative Atmosphäre. Zwei gut geschnittene Schlafzimmer bieten ausreichend Platz für Familie oder Homeoffice. Ergänzt wird diese Einheit durch ein Tageslichtbad mit Badewanne, Dusche, WC und Bidet sowie ein zusätzliches Gäste-WC.
Ein echtes Highlight ist der großzügige Garten mit ca. 90 m², der Ihnen viel Raum für Erholung, gemeinsame Stunden oder den Sommer mit Freunden bietet.
Im Obergeschoss erwartet Sie eine bereits vermietete Einheit mit angenehmem Wohnkomfort. Das helle Wohnzimmer mit Essbereich bietet Zugang zum ersten Balkon. Zwei Schlafzimmer sowie ein angrenzendes Ankleidezimmer sorgen für ein durchdachtes Raumkonzept. Die Küche verfügt über einen weiteren Balkon - ideal für den Start in den Tag. Ein Tageslichtbad mit Wanne, Dusche und WC rundet das Angebot ab.
Das Dachgeschoss überzeugt durch seinen besonderen Charme. Sichtbare Holzbalken verleihen dem Wohnzimmer eine warme und einladende Atmosphäre. Auch hier stehen zwei Schlafzimmer zur Verfügung. Die Küche bietet Zugang zur Dachterrasse - ein wunderbarer Rückzugsort. Das Tageslichtbad ist mit Badewanne, Dusche und WC ausgestattet.
Die beiden vermieteten Einheiten im Ober- und Dachgeschoss erzielen aktuell eine Nettokaltmiete von € 14.160 jährlich und sorgen damit bereits für laufende Einnahmen. Gleichzeitig bietet die Immobilie attraktives Mietsteigerungspotenzial, sodass sich die Rendite perspektivisch noch weiter optimieren lässt.
Abgerundet wird das Angebot durch eine Garage sowie zwei zusätzliche Stellplätze, die den Wohnkomfort zusätzlich erhöhen und auch aus Vermietungssicht sehr gefragt sind.
Merkmale
Bezug: sofort
vermietet
540 m² Grundstück
Einbauküche, offene Küche
Keller
3 Stellplätze: Garage, 2 Außen-Stellplätze
Gäste-WC
Balkon
Grundrisse
Grundrisse
1 / 3
Realisiere Dein Projekt
Bausubstanz und Energie
Möchtest du Details zum Energieverbrauch?
Baujahr1956
Zustand der ImmobilieNeubau, Massivhaus
HeizungsartZentralheizung
EnergieträgerGas
Preisdetails
Kaufpreis
690000 €690.000 €
2.753,72 €/m²
Provision für Käufer
4,76 % inkl. MwSt.
Weitere Preisinformationen
2 Stellplätze 1 Garagenstellplatz
Geschätzte Gesamtkosten
773.283 €1
Kaufpreis
690.000 €
Kaufnebenkosten
83.283 €
2
Notarkosten (1,5%)
10.350 €
Grunderwerbsteuer (6,5%)
44.850 €
Provision für Käufer (3,57%)
24.633 €
Grundbucheintrag (0,5%)
3.450 €
1Der angezeigte Wert ist eine automatisch berechnete Schätzung von immowelt.
2Bei den Angaben handelt es sich um ortsübliche Werte. Individuelle Kosten können abweichen.
Lage
Gnadental, Neuss (41468)
Der Anbieter hat die genaue Adresse nicht freigegeben
Lagebeschreibung
Ruhig wohnen mit idealer Anbindung - in Neuss-Gnadental
Die Immobilie befindet sich in einem gewachsenen und sehr gefragten Wohngebiet im beliebten Neusser Stadtteil Gnadental. Hier genießen Sie eine angenehme Kombination aus ruhigem Wohnen und einer hervorragenden Infrastruktur.
Die Umgebung ist geprägt von gepflegten Wohnhäusern, viel Grün und einer entspannten Nachbarschaft - ideal für alle, die Wert auf ein harmonisches Wohnumfeld legen. Gleichzeitig sind sämtliche Einrichtungen des täglichen Bedarfs wie Einkaufsmöglichkeiten, Schulen und Kindergärten schnell und bequem erreichbar.
Auch die Verkehrsanbindung überzeugt: Über die nahegelegenen Autobahnen A46 und A57 gelangen Sie zügig in Richtung Düsseldorf, Köln und in das gesamte Rhein-Ruhr-Gebiet. Ergänzt wird dies durch eine gute Anbindung an den öffentlichen Nahverkehr, sodass Sie auch ohne Auto flexibel unterwegs sind.
Die Nähe zur Natur sowie die gleichzeitig sehr gute Erreichbarkeit der umliegenden Städte machen diese Lage besonders attraktiv - ein Ort, an dem sich ruhiges Wohnen und Alltag perfekt miteinander verbinden lassen.
Attraktive Kapitalanlage
Attraktive Kapitalanlage mit Entwicklungspotenzial
Die beiden vermieteten Einheiten im Ober- und Dachgeschoss erzielen aktuell eine Nettokaltmiete von € 14.160 jährlich und bieten bereits stabile Einnahmen.
Die leerstehende Erdgeschosswohnung mit ca. 113 m² Wohnfläche und großem Garten bietet nach überschaubarer Renovierung (Wände, Böden, Küche) ein attraktives Vermietungspotenzial. In dieser Lage sind ca. 11-13 €/m² realistisch, was einer möglichen Miete von rund € 1.250 - € 1.450 monatlich entspricht.
Somit ergibt sich perspektivisch eine Gesamtnettokaltmiete von ca. € 29.000 - €31.500 jährlich.
Beim Kaufpreis von € 690.000 entspricht dies einem Faktor von ca. 21,9 - 23,8 sowie einer Bruttomietrendite von rund 4,2 % - 4,6 % p.a. Zusätzlich besteht weiteres Mietsteigerungspotenzial im Bestand.
Weitere Informationen
Sonstiges
Wir sind der allein beauftragte Makler und freuen uns auf Sie und Ihre Anfrage!
Bitte senden Sie uns dazu Ihre vollständigen Kontaktdaten (Adresse, E-Mail und Telefonnummer), damit wir diese schnell und zuverlässig bearbeiten können.
Ein Energieausweis ist in Bearbeitung und wird zur Besichtigung vorgelegt.
Wir vermitteln - mit Sicherheit.
Stichworte
TV: Kabelanschluss, Sat-Anschluss
Sonstiges/Wohnen: Hobbyraum