Draußen auf drei Arten: Exklusive 3-Zimmer-Dachgeschosswohnung mit Loggia, Balkon & Terrasse || Sandleitengasse 68
Sandleitengasse 68 - wo Hernals von seiner schönsten Seite wohnt
Im aufstrebenden 17. Wiener Gemeindebezirk entsteht mit der Sandleitengasse 68 ein Neubauprojekt, das höchste Ansprüche an Wohnqualität, Ausstattung und Nachhaltigkeit erfüllt. 29 exklusive Eigentumswohnungen verteilen sich auf fünf Ober- und zwei Dachgeschosse - vom cleveren 2-Zimmer-Apartment bis zur großzügigen 4-Zimmer-Penthouse-Wohnung mit über 130 m² Wohnfläche.
Nachhaltig & zukunftssicher
Die Energieversorgung erfolgt über eine zentrale Luft-Wasser-Wärmepumpe, die sowohl Heizung als auch Warmwasser klimafreundlich bereitstellt. Eine Photovoltaikanlage mit rund 10 kWp am Dach ergänzt das System und kommt den Allgemeinbereichen zugute. Alle Wohnräume, Küchen und Bäder sind mit Fußbodenheizung ausgestattet.
Stilvolle Ausstattung auf Markenniveau
Die Innenausstattung wurde mit größter Sorgfalt ausgewählt und überzeugt in jeder Hinsicht:
* Eichenparkett "Landhausdiele" in allen Wohn-, Schlaf- und Essbereichen sowie Küche und Gang
* Feinsteinzeug-Fliesen in sämtlichen Bädern und WCs
* Sanitärkeramik von Laufen (Kartell-Serie), Kaldewei-Badewannen & Hansgrohe-Regenduschen
* Wandhängende, spülrandlose TECE-WCs & Armaturen von Laufen Lua Eco+
* 3-fach Wärmeschutzverglasung mit Aluminiumdeckschale in Bronze
* Elektrisch bedienbare Außenraffstores in Bronze an allen Fenstern
* Einbruchshemmende Sicherheitstür WK III & Video-Gegensprechanlage mit App-Steuerung (Comelit)
Leben drinnen & draußen
Nahezu alle Einheiten verfügen über private Außenbereiche - sei es ein sonniger Balkon, eine geschützte Loggia, eine weitläufige Terrasse oder ein eigener Gartenanteil. Ein barrierefreier OTIS-Aufzug erschließt alle Geschosse bis in die Tiefgarage, wo 13 Stellplätze auf zwei Ebenen zum Kaufpreis von je € 45.000 verfügbar sind.
Preise
Die Kaufpreise beginnen bei € 349.000 für eine 2-Zimmer-Wohnung und reichen bis € 1.633.000 für die exklusive Penthouse-Einheit im zweiten Dachgeschoss - ein Projekt, das für anspruchsvolle Eigennutzer und renditeorientierte Anleger gleichermaßen attraktiv ist.
Wir freuen uns auf Ihre Anfrage und stehe bei Fragen sowie zur Vereinbarung eines Besichtigungstermins jederzeit zur Verfügung.
office@wolfundsohn.com
Tel: +43 660 383 15 66 [tel:+436603831566]
Wolf & Sohn Immobilien GmbH
www.wolfundsohn.com
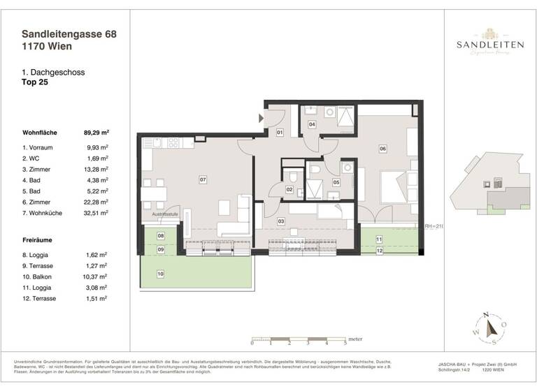
TOP 25 - 1. DACHGESCHOSS | 3 ZIMMER | 89,29 M² WOHNFLÄCHE | LOGGIA 4,70 M² | BALKON 10,37 M² | TERRASSE 2,78 M²
Drei Außenbereiche auf einer Etage - Top 25 im ersten Dachgeschoss ist eine der außergewöhnlichsten Wohnungen des gesamten Projekts. Mit Loggia, Balkon und Terrasse bietet diese 3-Zimmer-Wohnung auf fast 90 m² Wohnfläche ein Freilufterleben auf drei Ebenen. Dachgeschosscharakter, Premium-Ausstattung und ein unvergleichliches Raumgefühl.
Highlights
* 3 Zimmer, 89,29 m² Wohnfläche + Loggia 4,70 m² + Balkon 10,37 m² + Terrasse 2,78 m²
* Drei separate Außenbereiche - ein echtes Alleinstellungsmerkmal!
* Großzügiger Dachgeschoss-Grundriss mit besonderem Ambiente
* Eichenparkett in allen Wohn- und Schlafräumen
* Fußbodenheizung + Luft-Wasser-Wärmepumpe + PV-Anlage
* Erstklassige Sanitäranlagen: Laufen, Kaldewei, TECE, Hansgrohe
* Lift, Einlagerungsraum, Tiefgaragenstellplatz (optional)
Kosten
Kaufpreis: € 849.000,-
Die Nebenkosten betragen ca. 10% des Kaufpreises und setzen sich wie folgt zusammen:
Vertragserstellung & Treuhandschaft
1,5% zzgl. 20% USt.
Maklerprovision
3,0% zzgl. 20% USt.
Grunderwerbsteuer
3,5%
Grundbucheintragungsgebühr
1,1%
Notarielle Beglaubigung & Barauslagen
nach Aufwand
_Vertragserrichter: Mag. Stefan Prochaska (vorgegeben)_
Ich freue mich auf Ihre Anfrage und stehe bei Fragen sowie zur Vereinbarung eines Besichtigungstermins jederzeit zur Verfügung.
Mit freundlichen Grüßen,
Amir Tarab, BA
Mail: at@wolfundsohn.com
Tel: +43 660 383 15 66
Wolf & Sohn Immobilien GmbH
www.wolfundsohn.com [http://www.wolfundsohn.com]
Der Vermittler ist als Doppelmakler tätig.
Infrastruktur / Entfernungen
Gesundheit
Arzt <500m
Apotheke <500m
Klinik <1.500m
Krankenhaus <1.000m
Kinder & Schulen
Schule <500m
Kindergarten <500m
Universität <2.000m
Höhere Schule <2.000m
Nahversorgung
Supermarkt <500m
Bäckerei <500m
Einkaufszentrum <500m
Sonstige
Geldautomat <500m
Bank <500m
Post <500m
Polizei <1.000m
Verkehr
Bus <500m
U-Bahn <1.000m
Straßenbahn <500m
Bahnhof <1.000m
Autobahnanschluss <5.000m
Angaben Entfernung Luftlinie / Quelle: OpenStreetMap