

Meermann Immobilien und Verwaltung GmbH
Frau Beate Rades
029 ···
Nr. anzeigenPreise & Kosten
Kaution
Verhandlungsbasis
Provision für Mieter
provisionsfrei
Warum sehe ich diese Anzeige? – Du siehst diese Anzeige basierend auf Ihrer Navigation auf unserer Website und den Suchkriterien, die du verwendet hast.
Lage
Das Objekt befindet sich im Wendehammer eines Gewerbegebiets am Stadtrand von Werl in Richtung Soest an der B1. Direkte Nachbarn sind eine Autolakiererei, die Börde-Werkstätten, eine Galerie und ein großes Autohaus. Die Anbindung an die Autobahnen A44 und A445 ist sehr gut und durch die Umgehungsstraße schnell erreichbar.
Büro-/Praxisfläche
Kategorie
Bürofläche
Baujahr
1982
Bezug
01.01.2026
Energie & Heizung
Warum sehe ich diese Anzeige? – Du siehst diese Anzeige basierend auf Ihrer Navigation auf unserer Website und den Suchkriterien, die du verwendet hast.
Weitere Energiedaten
Heizungsart
Zentralheizung
Details
Objektbeschreibung
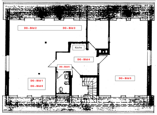
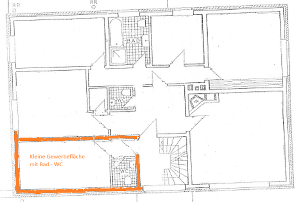
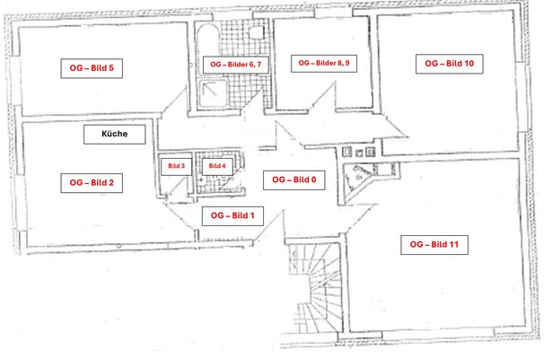
Diese gepflegte Bürofläche erstreckt sich vom Untergeschoss bis zum Dachgeschoss und umfasst eine Gesamtfläche von 353 m², die vollständig als Büro- oder Praxisfläche genutzt werden können. Die Flächen sind als Ganzes als auch einzeln anmietbar.
Das Gebäude wurde im Jahr 1983 errichtet und verfügt über eine moderne...
Ausstattung
Es stehen ausreichend Parkmöglichkeiten auf dem eigenen Grundstück zur Verfügung.
Glasfaseranschluss ist vorhanden.
Preisinformation
15 Stellplätze
Weitere Informationen
Sonstiges
Energieausweis: Verbrauch, 97,6 kWh7(m²*a), Effizienzklasse C, Gas, BJ 1982, WW enthalten, gültig bis 16.11.2035.
Stichworte
Stellplatz vorhanden, Gesamtfläche: 353,00 m², 2 Etagen
Sonstiges: EDV-Verkabelung
Dokumente
Anbieter der Immobilie
Meermann Immobilien und Verwaltung GmbH
Kletterpoth 11, 59457 Werl

Online-ID: 2mp7f54
Referenznummer: 222
Finde Angebote wie dieses
Hier geht es zu unserem Impressum, den Allgemeinen Geschäftsbedingungen, den Hinweisen zum Datenschutz und nutzungsbasierter Online-Werbung.