2-Zimmer-Appartement in Senioren-Residenz "Georgihof"
In einer ruhigen Seitenstraße nur wenige Schritte vom Stadtplatz in Osterhofen entfernt wurde die Seniorenresidenz "Der Georgihof" im Jahr 1997 errichtet. Das Pflegeheim umfasst ca. 75 Pflegeappartements sowie alle weiteren erforderlichen Räumlichkeiten wie die Empfangshalle mit Rezeption, Büroflächen für die Verwaltung, zentrale Küche und Speiseraum, Aufenthaltsräume uvm. Geschmackvoll angelegte Außenanlagen mit Sitzgelegenheiten laden zum Verweilen ein und bieten Platz für Bewegung im Freien. Sie erwerben eine Sondereigentumseinheit in der 3. Ebene mit 43,98 m², ausgestattet mit einem Wohnraum, einer Küche, einem Schlafraum, einem Badezimmer mit WC und einer Loggia. Zusätzlich zur Wohnung gehört ein Stellplatz in einem Carport. Das Objekt ist an einen Betreiber verpachtet. Die Restlaufzeit des Pachtvertrags läuft noch bis 30.04.2034. Die derzeitige monatliche Gesamtmiete beträgt: 314,90 € Die nächste Anpassung der Kaltmiete in Höhe von 8% findet am 01.05.2029 statt. Sie brauchen sich um nichts kümmern: Die Mietzahlung ist unabhängig von der tatsächlichen Belegung.
Merkmale
Personenaufzug
Carport
Balkon
teilweise möbliert
Badezimmer: Badewanne, Bad mit Dusche
Bodenbelag: Fliesen, Kunststoff, Teppich
Empfang
Betreutes Wohnen
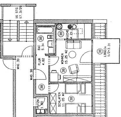
Grundrisse
Grundrisse
1 / 1
Realisiere Dein Projekt
Bausubstanz und Energie
Energieausweis
Baujahr1997
Zustand der ImmobilieMassivhaus
HeizungsartZentralheizung
EnergieträgerGas
Preisdetails
Kaufpreis
89500 €89.500 €
2.035,02 €/m²
Provision für Käufer
Bitte beachte, das Angebot beinhaltet bei Vertragsabschluss die Zahlung einer Provision. Weitere Informationen erhältst Du vom Anbieter.
Weitere Preisinformationen
1 Carportplatz
Geschätzte Gesamtkosten
97.619 €1
Kaufpreis
89.500 €
Kaufnebenkosten
8.119 €
2
Notarkosten (1,5%)
1.343 €
Grunderwerbsteuer (3,5%)
3.133 €
Provision für Käufer (3,57%)
3.195 €
Grundbucheintrag (0,5%)
448 €
1Der angezeigte Wert ist eine automatisch berechnete Schätzung von immowelt.
2Bei den Angaben handelt es sich um ortsübliche Werte. Individuelle Kosten können abweichen.
Lage
Osterhofen, Osterhofen , Niederbay (94486)
Der Anbieter hat die genaue Adresse nicht freigegeben
Die Stadt Osterhofen im niederbayerischen Landkreis Deggendorf liegt im in einer landschaftlich reizvollen Umgebung, geprägt von der Nähe zur Donau und den angrenzenden Wäldern und Hügeln des Bayerischen Waldes. Osterhofen bietet seinen ca. 12.000 Einwohnern eine gute Infrastruktur mit Supermärkten, Bäckereien, Apotheken und weiteren Geschäften des täglichen Bedarfs. Die Stadt liegt an der Bundesstraße B8, die eine schnelle Verbindung nach Deggendorf (ca. 20 Minuten) und Passau (ca. 50 Minuten) ermöglicht. Zudem gibt es einen Bahnhof mit regelmäßigen Zugverbindungen sowie Buslinien, die die Stadt mit den Nachbarorten verbinden.
Weitere Informationen
Sonstiges
Alle Angaben stammen vom EigentĂĽmer. Keine Haftung fĂĽr die Richtigkeit der Daten durch die Raiffeisenbank Arnstorf eG.
Die Käuferprovision beträgt einschließlich der gesetzlichen Mehrwertsteuer bis zu 3,57 % vom Kaufpreis, d. h. bei einem Kaufpreis von 89.500,00 EUR beträgt die Provision 3.195,15 EUR. Die Verkäuferprovision beträgt einschließlich der gesetzlichen Mehrwertsteuer bis zu 3,57 % vom Kaufpreis, d. h. bei einem Kaufpreis von 89.500,00 EUR beträgt die Provision 3.195,15 EUR. Käufer- u. Verkäuferprovision sind bei Abschluss des notariellen Kaufvertrages zur Zahlung fällig.
Besichtigung
Wir freuen uns auf einen Besichtigungstermin mit Ihnen. Ihre Ansprechpartner: Frau Monika Knott, Tel.: 08723/307-49, E-Mail: monika.knott@rb-arnstorf.de Herr Raimund Strohmayer, Tel.: 08723/307-50, E-Mail: raimund.strohmayer@rb-arnstorf.de
Stichworte
Serviceleistungen: Altenpflege