Version: 8.22.6Navigation ĂĽberspringen
J&P Immobilienmakler GmbH
2.490.000 €
4 Zimmer  â€˘  214,1 m²  â€˘  2. Geschoss

Wohnung zum Kauf
2490000 €
11.629 €/m²
4 Zimmer  â€˘  214,1 m²  â€˘  2. Geschoss

Zusammengelegt zur Traumwohnung: Viel Platz & Flexibilität

Siebenbrunnengasse 44 Wo Geschichte auf modernes Wohnen trifft

AUS GESCHICHTEN WERDEN ZUHAUSE

An einem geschichtsträchtigen Ort im Herzen des 5. Bezirks entsteht ein Wohnprojekt, das Vergangenheit und Zukunft verbindet.
Die Siebenbrunnengasse 44 vereint urbanes LebensgefĂĽhl mit hochwertigem Wohnkomfort fĂĽr Menschen, die mehr als nur eine Adresse suchen.
Benannt nach den 7 Brunnen, die Kaiser Ferdinand I. errichten lieĂź, um Wasser aus den Quellen Oberreinprechtsdorfs in die Stadt zu leiten.

67 exklusive Eigentumswohnungen mit durchdachten Grundrissen, edler Ausstattung und großzügigen Freiflächen wie Balkonen,
Terrassen oder Gärten machen dieses Projekt zu einem echten Rückzugsort mitten in der Stadt.
___________________________________________________________________________________________________________

Ihr neues Zuhause im Ăśberblick:

✓ Wohnflächen von ca. 30m² 214m²
âś“ 2- bis 4-Zimmer-Wohnungen
✓ Gärten, Balkone, Loggien & Dachterrassen
✓ 26 Tiefgaragenplätze & E-Mobilität
✓ Photovoltaikanlage & Fernwärme
✓ Ruhiger, begrünter Innenhof & Gemeinschaftsflächen
âś“ Nahversorger direkt im Haus
âś“ Innenhof Pavillon
âś“ Paketboxanlage
âś“ U2 Station vor der HaustĂĽr (im Bau)
âś“ Geplante Fertigstellung: Ende 2027
___________________________________________________________________________________________________________

Ausstattung mit Stil & Funktion:

âś“ Eichenparkett & FuĂźbodenheizung
âś“ Fliesen in Feinsteinzeug 60x60cm + Akzent Wandfliese
âś“ Bodentiefe Fenster (3-Scheiben Isolierverglasung) mit elektrischem Sonnenschutz
âś“ Klimaanlage in den DachgeschoĂźen
âś“ Smarte Gegensprechanlage per Handy-App
âś“ Hochwertige Marken-Armaturen
âś“ Nachhaltige Bauweise & moderne Technik
____________________________________________________________________________________________________________

LAGE MIT LEBENSQUALITÄT

Nur wenige Schritte vom pulsierenden Leben entfernt und trotzdem ganz privat. In der Nähe des Naschmarkts, umgeben von Parks,
Cafés und urbaner Infrastruktur, erleben Sie den idealen Mix aus Kultur, Natur und City-Flair.
Öffentliche Anbindung? Perfekt gelöst: Buslinien 12A, 14A und 59A, U4 Pilgramgasse, U2 Station (im Bau)
____________________________________________________________________________________________________________

Die Siebenbrunnengasse 44 fĂĽr alle, die stilvoll wohnen und dabei urban leben wollen.
Jetzt informieren & Ihre Wunschwohnung sichern!


ANSPRECHPARTNER

Herr Vladimir Adamovic || +43 699 17 55 66 41 || va@jpi.at
Frau Daniela Schachinger, Dipl.-IM || +43 676 39 29 019 || ds@jpi.at

Wir weisen darauf hin, dass wir mit dem Abgeber in ständiger Geschäftsbeziehung stehen und schon aus diesem Grund ein wirtschaftliches Naheverhältnis vorliegt.

Merkmale

  • Bezug: 2027
  • 2. Geschoss
  • Personenaufzug
  • Kelleranteil
  • Balkon
  • Terrasse

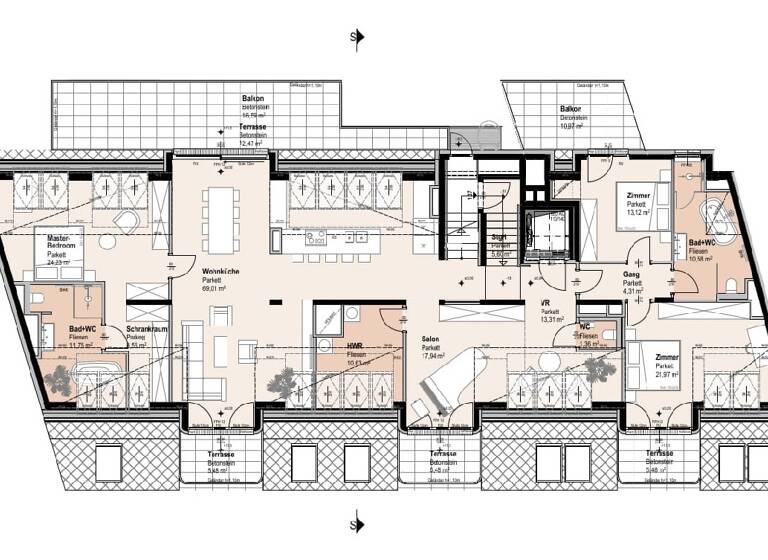
Grundrisse

Grundrisse
1 / 3

Realisiere Dein Projekt

Bausubstanz und Energie

Heizwärmebedarf (HWB)

A

Gesamtenergieeffizienz (fGEE)

A+
  • Baujahr2026
  • Zustand der ImmobilieNeubau
  • HeizungsartZentralheizung
  • EnergieträgerFernwärme
MediumRectangleTop

Preisdetails

Kaufpreis
2490000 €
11.628,99 €/m²
Provision für Käufer
3 %

Lage

address-icon
Siebenbrunnengasse 44, Wien (1050)

Weitere Informationen

Stichworte Anzahl der Badezimmer: 2, Anzahl der separaten WCs: 3, Anzahl Balkone: 2, Anzahl Terrassen: 4, Balkon-Terrassen-Fläche: 176,70 m², Wohnungsnr.: 37+38

Weitere Services

Lust auf eine Besichtigung?
Eine Frage zur Immobilie?
Nachricht hinzufĂĽgen
Mit der Nutzung der oben angegebenen Telefonnummer oder durch Klicken auf „Kontaktieren“ akzeptierst Du die Allgemeinen Nutzungsbedingungen, denen Du jederzeit widersprechen kannst. Weitere Informationen zum Datenschutz

Ăśber den Anbieter

Lehargasse 7, 1060 WIEN
partner badge
10 Jahre Partnerschaft
Frau Daniela SchachingerDein Kontakt

Weitere Unterlagen

Online-ID: 2lkt75c
Referenznummer: 101/18405
J&P Immobilienmakler GmbH
J&P Immobilienmakler GmbH
Nachricht hinzufĂĽgen
Mit der Nutzung der oben angegebenen Telefonnummer oder durch Klicken auf „Kontaktieren“ akzeptierst Du die Allgemeinen Nutzungsbedingungen, denen Du jederzeit widersprechen kannst. Weitere Informationen zum Datenschutz
MediumRectangleTop
MediumRectangleBottom
MediumRectangleTop
Wie zufrieden bist du mit dieser Seite (nicht mit der Immobilie selbst)?