Version: 8.25.1Navigation überspringen
J&P Immobilienmakler GmbH
1.399.000 €
4 Zimmer  •  123,2 m²  •  2. Geschoss

Wohnung zum Kauf
1399000 €
11.355 €/m²
4 Zimmer  •  123,2 m²  •  2. Geschoss

Sonnendurchfluteter ERSTBEZUG mit 4 Balkonen + FITNESS + GARAGE in "WOLKE sieben"

Gibt es ein größeres Glück, als jeden Tag mit einem Lächeln nach Hause zu kommen?

Wohnen ist mehr als nur ein Dach über dem Kopf. Es ist Rückzugsort, Kraftquelle und Ausdruck von Lebensqualität.
Mit WOLKE sieben entsteht ein Zuhause, das genau dieses Gefühl vermittelt: Geborgenheit, Ruhe und ein besonderes Maß an Wohnkomfort.
Schon der Gedanke an Ihr neues Eigenheim darf Vorfreude wecken.

In einzigartiger Grünruhelage mit traumhaftem Fernblick entsteht ein Neubauprojekt, das höchsten Wohnansprüchen gerecht wird:
WOLKE sieben 2 elegante Stadtvillen mit insgesamt 24 Eigentumswohnungen in offener Bauweise am Schafberg im 17. Bezirk.

Die exklusiven Wohnungen bieten 2 bis 4 Zimmer auf Wohnflächen zwischen ca. 44m² und 169m² wahlweise mit Balkon, Terrasse, Dachterrasse oder Eigengarten. Ob Gartenwohnung oder Penthouse mit Panoramablick hier findet jeder sein persönliches Stück vom Himmel.

Der Baustart ist bereits erfolgt, die Fertigstellung ist für Ende 2026 geplant.

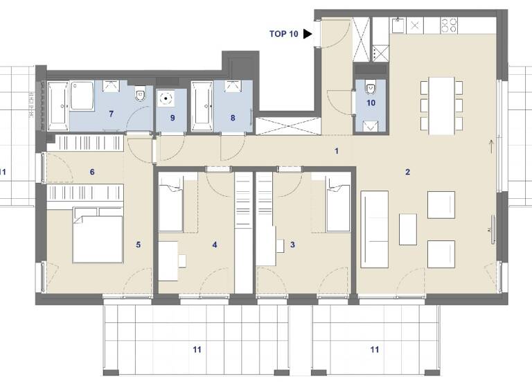
*DETAILS Top 2.10 im 2. Obergeschoss:*

123,21m² Wohnfläche
großzügige, südostseitige Wohnküche mit Ausgang auf 2 Balkone
3 sonnige Schlafzimmer + 2 Bäder
alle Schlafzimmer bieten Ausgang auf die Balkone
2 WCZs
4 Balkone mit Grün- bzw. Wienblick

Mit ihrer zeitlos modernen Architektur, der eleganten Klinkerfassade und den großzügigen Fensterfronten lädt die WOLKE sieben dazu ein, das Leben in all seinen Facetten zu genießen.

HIGHLIGHTS
2 freistehende Stadtvillen mit 24 Eigentumswohnungen von 46m² bis 169m² Wohnfläche
Attraktive Freiflächen wie Balkone, Terrassen, Dachterrassen und Eigengärten
ruhige, grüne Premiumlage am Schafberg
Herrlicher Fern- und Grünblick
Zeitlose, moderne Architektur mit hochwertiger Ausstattung
Nachhaltige Bauweise mit Luftwärmepumpe & Photovoltaik
Hochwertige Ausstattung mit Markenprodukten
Tiefgaragenplätze mit E-Mobilitätsvorbereitung
großzügiger Allgemeingarten (ca. 600m²) mit Erhalt des Altbaumbestandes
hauseigener Fitnessraum mit modernsten Geräten
Paketempfangsboxen
Digitale Haus-Infoboard „puck mit großem Flatscreen
 
LAGE
In der Werfelstraße 7, in ruhiger Grünlage am Schafberg direkt an Pötzleinsdorf angrenzend vereint WOLKE sieben das Beste aus zwei Welten:
die Ruhe des Grünen und die Nähe zur Stadt.

Die öffentliche Anbindung ist hervorragend:
- Buslinie 42A in unmittelbarer Nähe
- Straßenbahnlinie 43 nur wenige Gehminuten entfernt (direkt zum Schottentor)
- Die neue U5, derzeit im Bau, wird in etwa 20 Minuten Fußweg erreichbar sein

Infrastrukturell sind Sie bestens versorgt Supermärkte, Apotheken, Kindergärten, Schulen und Ärzte befinden sich in direkter Umgebung.
Zur Freizeitgestaltung laden der Pötzleinsdorfer Schlosspark, das beliebte Schafbergbad und der nahegelegene Wienerwald zu Erholung und Bewegung im Grünen ein.

WOLKE sieben Ein Zuhause zum Aufatmen, Wohlfühlen und Ankommen.

ANSPECHPARTNER
Frau Doris Kurzweil || +43 699 17 55 66 16 || dk@jpi.at
Frau Daniela Schachinger, Dipl.-IM || +43 676 39 29 019 || ds@jpi.at
 
Wir weisen darauf hin, dass wir mit dem Abgeber in ständiger Geschäftsbeziehung stehen und schon aus diesem Grund ein wirtschaftliches Naheverhältnis vorliegt.
 

Merkmale

  • Bezug: Ende 2026
  • 2. Geschoss
  • Personenaufzug
  • Keller
  • Bodenbelag: Parkett
  • Balkon
  • Kabelanschluss

Grundrisse

Grundrisse
1 / 1

Realisiere Dein Projekt

Bausubstanz und Energie

Heizwärmebedarf (HWB)

B

Gesamtenergieeffizienz (fGEE)

A
  • Baujahr2026
  • Zustand der ImmobilieNeubau
  • HeizungsartZentralheizung
MediumRectangleTop

Preisdetails

Kaufpreis
1399000 €
11.354,60 €/m²
Provision für Käufer
3%

Lage

address-icon
Werfelstraße 7Wien (1170)

Weitere Informationen

Stichworte Anzahl der Badezimmer: 2, Anzahl der separaten WCs: 2, Anzahl Balkone: 4, Balkon-Terrassen-Fläche: 50,05 m², Wohnungsnr.: 2.10

Weitere Services

Lust auf eine Besichtigung?
Eine Frage zur Immobilie?
Nachricht hinzufügen
Mit der Nutzung der oben angegebenen Telefonnummer oder durch Klicken auf „Kontaktieren“ akzeptierst Du die Allgemeinen Nutzungsbedingungen, denen Du jederzeit widersprechen kannst. Weitere Informationen zum Datenschutz

Über den Anbieter

Lehargasse 7, 1060 WIEN
partner badge
Partnerschaft
Frau Doris Kurzweil
Frau Doris KurzweilDein Kontakt

Weitere Unterlagen

Online-ID: 24Z2XZ3QU5M8
Referenznummer: 101/17056
J&P Immobilienmakler GmbH
title
J&P Immobilienmakler GmbH
Nachricht hinzufügen
Mit der Nutzung der oben angegebenen Telefonnummer oder durch Klicken auf „Kontaktieren“ akzeptierst Du die Allgemeinen Nutzungsbedingungen, denen Du jederzeit widersprechen kannst. Weitere Informationen zum Datenschutz
MediumRectangleTop
MediumRectangleBottom
MediumRectangleTop
Wie zufrieden bist du mit dieser Seite (nicht mit der Immobilie selbst)?