Version: 8.25.1Navigation überspringen
1.680 €
3 Zimmer  •  112 m²  •  EG
Immowelt logo

Terrassenwohnung zur Miete - Erstbezug
1.680 €
3 Zimmer  •  112 m²  •  EG

Barrierefreie Neubauwohnung mit Terrasse - stilvoll & komfortabel wohnen, Einbauküche, Tageslichtbad

Diese hochwertige Neubauwohnung im Erdgeschoss bietet modernen Wohnkomfort und ist vollständig rollstuhlgerecht gestaltet. Helle, großzügige Räume, Echtholzparkett und bodentiefe Fenster schaffen eine angenehme Wohnatmosphäre. Das elegante Tageslichtbad überzeugt mit einer großzügigen Walk In Dusche. Die moderne Einbauküche ist bereits integriert und bietet alles für den täglichen Komfort. Die großzügige Terrasse erweitert den Wohnraum nach draußen und lädt zum Entspannen ein - ideal für alle, die Wert auf Komfort, Qualität und Barrierefreiheit legen.

Das neue Wohnquartier "Leineauen" bietet urbanes Wohnen im Grünen. Es besteht aus acht Baukörpern in aufgelockerter Bebauung und in moderner, ansprechender Architektur des international bekannten Architekten Max Dudler. Der Stadtplatz mit Grünfläche ist der Treffpunkt für ein geselliges Miteinander für Groß und Klein. Einzelhandelsflächen, ein Restaurant mit Bar, Büroflächen und auch eine Kindertagesstätte im Quartier erhöhen die Wohnqualität.
Zur Vermietung stehen insgesamt 119 moderne 2- bis 5-Zimmer-Wohnungen, davon 54 öffentlich geförderte Wohnungen, mit ansprechenden Grundrissen. Die gehobene Neubauausstattung besteht aus hochwertigem Echtholzparkett und weißen Wänden, modernen Bädern und offenen Küchen.
Jede Wohnung hat eine Loggia/Terrasse/Dachterrasse und ein zugeordnetes Kellerabteil im Untergeschoss. Personenaufzüge, Elektrische Rollläden, hohe Energieeffizienz durch KfW-55 Standard, Fußbodenheizung, Videosprechanlage und Stellplätze in der Tiefgarage ergänzen den Neubaukomfort. Selbstverständlich sorgt ein Hausmeisterdienst für Ordnung und Sauberkeit.

Merkmale

  • Bezug: nach Absprache
  • Erdgeschoss
  • Einbauküche
  • Personenaufzug
  • Kelleranteil
  • Garage
  • Balkon

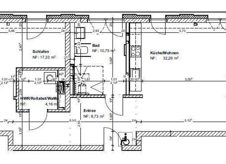
Grundrisse

Grundrisse
1 / 1

Realisiere Dein Projekt

Bausubstanz und Energie

Energieausweis

B
  • Baujahr2025
  • Zustand der ImmobilieErstbezug
  • HeizungsartFußbodenheizung
  • EnergieträgerFernwärme
Immowelt logo

Mietkosten

Warmmiete
2.070 €
Kaltmiete
15 €/m²
1.680 €
Nebenkosten
390 €
Heizkosten
in Warmmiete enthalten
Zusätzliche Kosten
Miete pro Stellplatz
100 €
Kaution
5.040,00 €
Weitere Preisinformationen
1 Garagenstellplatz, Miete: 100,00 EUR
Nettokaltmiete: 1.680,00 EUR

Lage

address-icon
Hildesheimer Straße 452DöhrenHannover (30519)
Am südlichen Stadtrand Hannovers - im Stadtteil Döhren-Wülfel - finden Sie das Neubauquartier "Am Brabrinke" direkt zwischen der Hildesheimer Straße und dem Naturschutzgebiet "Leineauen" mit Verbindung zum Maschsee.

Dinge für den täglichen Bedarf finden Sie zum Teil direkt im Quartier. Hier sollen ein Bäcker, ein Restaurant, eine Kita und weitere Einzelhandelsflächen mit Ihrem Angebot den Wohnwert heben. Im fußläufigen Umkreis befindet sich ein Supermarkt, ein Elektrofachmarkt, ein Möbelgeschäft, weitere Restaurants und einige Sportanlagen.

Das Stadtzentrum ist sowohl mit dem Auto als auch mit dem öffentlichen Nahverkehr, innerhalb von ca. 15 Minuten zu erreichen. Eine Bushaltestelle und die U-Bahn-Station "Am Brabrinke" befinden sich in unmittelbarer Nähe. Von hier aus gelangen Sie zum Hauptbahnhof, zum Neuen Rathaus, der Aegidienkirche, der Staatsoper oder dem Maschpark. Die Leibnitz Universität Hannover ist in ca. 20 Minuten mit dem Auto erreichbar, 35 Minuten mit dem öffentlichen Nahverkehr. Den Autobahnanschluss zur A 37 erreichen Sie in ca. 10 Autofahrminuten.

Weitere Informationen

Sonstiges Hinweis zur Terminvereinbarung:
Die Besichtigungstermine werden von uns ausschließlich per E-Mail vergeben. Bitte nehmen Sie daher mit uns über den "Kontakt-Button" des Portals Kontakt auf. Sie erhalten dann von uns eine Einladung zur Besichtigung mit mehreren Termin-Optionen.

WERTGRUND Homepage - https://www.wertgrund.de

Besuchen Sie uns auf Facebook! - https://www.facebook.com/wertgrund

Folgen Sie uns auf Instagram - https://www.instagram.com/wertgrund_immobilien

WERTGRUND auf YouTube - https://www.youtube.com/user/WERTGRUND Stichworte Anzahl der Schlafzimmer: 2, Anzahl der Badezimmer: 1, Anzahl Balkone: 1, 5 Etagen Sonstiges/Wohnen: seniorengerechtes Wohnen

Weitere Services

Lust auf eine Besichtigung?
Eine Frage zur Immobilie?
Mit einer persönlichen Nachricht hast du bessere Chancen auf eine Antwort.
Mit der Nutzung der oben angegebenen Telefonnummer oder durch Klicken auf „Kontaktieren“ akzeptierst Du die Allgemeinen Nutzungsbedingungen, denen Du jederzeit widersprechen kannst. Weitere Informationen zum Datenschutz

Über den Anbieter

Adam-Opel-Straße 15, 63322 Rödermark
partner badge
6 Jahre Partnerschaft
Frau Roberta WiesingerDein Kontakt
Keine Telefonnummer hinterlegt
Keine Telefonnummer hinterlegt

Weitere Unterlagen

Online-ID: 26TB744XWMBI
Referenznummer: H-HDH452-WL-02.1003
WERTGRUND Immobilien Verwaltungs GmbH
WERTGRUND Immobilien Verwaltungs GmbH
Bewertung: 3,9 von 5 Sternen
Mit einer persönlichen Nachricht hast du bessere Chancen auf eine Antwort.
Mit der Nutzung der oben angegebenen Telefonnummer oder durch Klicken auf „Kontaktieren“ akzeptierst Du die Allgemeinen Nutzungsbedingungen, denen Du jederzeit widersprechen kannst. Weitere Informationen zum Datenschutz
Wie zufrieden bist du mit dieser Seite (nicht mit der Immobilie selbst)?