Version: 8.24.0Navigation überspringen
415.000 €
924 m² Grundstück  •  Baugenehmigung vorhanden
Immowelt logo

Grundstück zum Kauf
415000 €
449 €/m²
924 m² Grundstück  •  Baugenehmigung vorhanden

Großes Grundstück in zentraler und ruhiger Lage von Höchstadt a. d. Aisch (unsere Objektnummer: 1201OS24H)

Das vollständig erschlossene Grundstück in zentraler und ruhiger Lage von Höchstadt an der Aisch hat eine Fläche von großzügigen 924 qm.

Es besteht eine sanierungsrechtliche Genehmigung nach § 144 BauGB. Dadurch können öffentliche Fördergelder, Zuschüsse und Abschreibungen gem. § 7 EstG beantragt werden.

Auf dem Grundstück befindet sich derzeit noch ein älteres Mehrfamilienhaus (Gebäudeteil 1 Baujahr 1912, Gebäudeteil 2 Baujahr 1964), das saniert oder abgerissen werden kann.

Eine Neubebauung des Grundstücks durch ein Einfamilienhaus, eine Doppelhaushälfte oder ein Mehrfamilienhaus (siehe unten) ist möglich. Bau- oder Sanierungszwang liegen nicht vor.

--------------------------------------------------
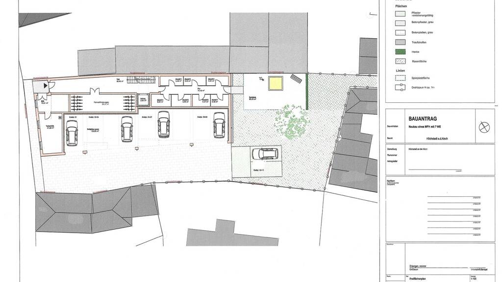
Der jetzige Eigentümer plante auf dem Grundstück ursprünglich den Bau eines Mehrfamilienhauses mit 7 Wohneinheiten (siehe beigefügte Pläne) und hat nach entsprechendem Antrag eine diesbezüglich Baugenehmigung von Seiten des Landratsamtes erhalten.

Für jenes Bauvorhaben liegen der zugehörige Bauplan inklusive Statik, ein geotechnischer Bericht (nach DIN 4020), ein Entwässerungskonzept sowie ein Brandschutznachweis gemäß § 11 (1) und (2) BauVorlV vor. Die Pläne/Dokumente gehen mit dem Verkauf des Grundstücks in das Eigentum des Käufers über (im oben genannten Kaufpreis enthalten) und dürfen bei Bedarf von diesem verwendet werden.

Das Bauvorhaben des Eigentümers muss vom Käufer nicht umgesetzt werden.

Merkmale

  • 924 m² Grundstück
  • voll erschlossen
  • Strom, Gas, Telekommunikation, Wasser

Realisiere Dein Projekt

Bausubstanz und Energie

Der Anbieter hat keine Informationen zu Energieverbrauch oder Zustand der Immobilie bereit gestellt.
Immowelt logo

Preisdetails

Kaufpreis
415000 €
449 €/m²
Provision für Käufer
Die Käuferprovision beträgt 3,57% inklusive Mehrwertsteuer vom Kaufpreis und ist mit notarieller Beurkundung des Kaufvertrages fällig. Mit dem Verkäufer der Immobilie haben wir einen provisionspflichtigen Maklervertrag in gleicher Höhe abgeschlossen.
Geschätzte Gesamtkosten
429.816 €1
Kaufpreis
415.000 €
Provision für Käufer (3,57%)
14.816 €
1Der angezeigte Wert ist eine automatisch berechnete Schätzung von immowelt.
2Bei den Angaben handelt es sich um ortsübliche Werte. Individuelle Kosten können abweichen.

Lage

address-icon
HöchstadtHöchstadt a.d.Aisch (91315)
Der Anbieter hat die genaue Adresse nicht freigegeben
Das großzügige Grundstück befindet sich in einer sehr zentrumsnahen Lage. In nur wenigen Gehminuten erreichen Sie den Marktplatz und die modern gestaltete Einkaufsstraße mit einer Vielzahl von Einzelhandelsgeschäften. In der nahen Umgebung von Höchstadt laden Wiesen, Wälder, Bäche und kleine Seen jenseits des Flusses Aisch sowie ein großes Netz von Rad- und Wanderwegen zum Sport, zu Ausflügen und zur Erholung ein.

Die Kleinstadt Höchstadt befindet sich im Landkreis Erlangen-Höchstadt und bietet seinen rund 14.000 Einwohnern eine sehr gute Infrastruktur. Diverse Geschäfte des täglichen Bedarfs (Lebensmittel- und Getränkemärkte, Drogerien, Apotheken, Bekleidungsgeschäfte, verschiedene Bäckereien, Metzgereien u.a.), mehrere Autowerkstätten, Autohäuser und Tankstellen, ein Obi- und Dehnermarkt, die Sparkasse sowie zahlreiche andere Unternehmen haben sich in der aufstrebenden Stadt niedergelassen. Besonders zu erwähnen ist in diesem Rahmen auch das große Einkaufszentrum „Aisch-Park-Center“. Verschiedene Arztpraxen aus dem Allgemein- und Fachbereich sowie das Kreiskrankenhaus leisten vor Ort eine gute ärztliche Versorgung. Familien mit Kindern bietet Höchstadt zahlreiche Kindergärten (teils mit Krippenplätzen), zwei Grundschulen, eine Mittelschule, eine Realschule, ein Gymnasium und ein Sonderpädagogisches Förderzentrum. Zudem befinden sich in der Stadt eine Fachakademie für Sozialpädagogik und ein staatliches Berufsschulzentrum. Dank der guten Anbindung an den öffentlichen Nahverkehr (VGN) können schnell und zuverlässig auch andere weiterführende Schulen und die Universität in Erlangen erreicht werden. Mit dem Bus gelangen Sie oder Ihre Kinder in ca. 30 Minuten nach Erlangen, in ca. 40 Minuten nach Herzogenaurach.

Auch im sportlichen sowie kulturellen Bereich bietet Höchstadt mit verschiedenen Vereinen, regelmäßigen Veranstaltungen (Konzerte, Comedy, Ausstellungen, Workshops, Kurse u.a.) sowie Spielplätzen ein vielfältiges Freizeitangebot. Ein beheiztes Freibad mit Wellenbecken und ein Hallenbad mit Riesenrutsche, Dampfsauna und Solarium ermöglichen den Besuchern Badespaß und Erholung. Im Winter ist das Eisstadion bei Schlittschuhläufern sehr beliebt. Besonders zu erwähnen ist die „Fortuna-Kulturfabrik“ mit eigenem Kulturprogramm und Jugendtreff. Dort sind auch die Stadtbücherei, die Volkshochschule und die städtische Musikschule zu finden. Zahlreiche gastronomische Betriebe, mehrere Cafés und Eisdielen sorgen für das leibliche Wohl der Einwohner. Darüber hinaus finden Sie in Höchstadt viele Sehenswürdigkeiten, historische Gebäude und malerische Winkel. Ein schönes Ziel für kleinere Ausflüge ist der „Engelgarten“, der mit verschiedenen Sitzgruppen zum Entspannen und Verweilen einlädt. Auf dem direkt an der Aisch gelegenen Gelände befinden sich zudem ein großer Kinderspielplatz und ein Fitnessparcours.

Von Höchstadt aus erreicht man mit dem Pkw in wenigen Minuten Fahrtzeit die Anschlussstelle Gremsdorf der Autobahn A3 (Richtung Würzburg und Nürnberg). Nicht zuletzt dadurch finden sich im Gewerbegebiet Aischpark, der am Rande von Höchstadt liegt, viele namhafte, auch überregional tätige Firmen. Über die B470 erreichen Sie Neustadt a. d. Aisch und Forchheim, über die B505 Hirschaid und Bamberg.

Entfernungen und Fahrtzeiten mit dem Pkw:
Höchstadt - Herzogenaurach ca. 19 km, ca. 27 Minuten
Höchstadt - Forchheim ca. 23 km, ca. 27 Minuten
Höchstadt - Neustadt a. d. Aisch ca. 23 km, ca. 23 Minuten
Höchstadt - Bamberg ca. 27 km, ca. 30 Minuten
Höchstadt - Erlangen ca. 22 km, ca. 22 Minuten
Höchstadt - Fürth ca. 36 km, ca. 28 Minuten
Höchstadt – Nürnberg Flughafen ca. 38 km, ca. 31 Minuten
Höchstadt – Würzburg ca. 72 km, ca. 48 Minuten

Weitere Informationen

Besichtigungstermine Bitte senden Sie uns eine E-Mail an immobilien-sturm@t-online.de mit Ihren vollständigen Kontaktdaten (Name, Adresse und Telefonnummer) und geben Sie dort an zu welchem Objekt (mit unserer Objektnummer) Sie weitere Informationen von uns wünschen. Wir bearbeiten Ihre Anfrage zeitnah, setzen uns gerne mit Ihnen in Verbindung um Ihnen die gewünschten Informationen sowie weitere Bilder zukommen zu lassen und auch einen gemeinsamen Besichtigungstermin zu vereinbaren. Datenschutz Wir verwenden und verarbeiten die von Ihnen erhaltenen Daten zu internen Zwecken und um Ihnen Informationen zum hier angebotenen Immobilienobjekt zukommen lassen zu können. Ihre Daten werden nur weitergegeben sofern dies im Rahmen unserer Tätigkeit aufgrund des mit Ihnen abgeschlossenen Maklervertrages notwendig ist. So erhält der Eigentümer der von uns angebotenen Immobilie und, bei einem anzufertigenden Kaufvertrag, das beauftragte Notariat Ihre Daten. Darüberhinausgehende Weitergaben erfolgen nur nach vorheriger Absprache mit Ihnen. Ihre Daten werden während der Laufzeit des Maklervertrages und entsprechend gesetzlich vorgegebener Aufbewahrungsfristen von uns gespeichert. Sie haben das Recht auf Auskunft, Berichtigung, Löschung, Datenübertragung und Widerruf bezüglich Ihrer an uns übermittelten Daten. Weitergehende Informationen erhalten Sie von Sturm Immobilien auf Ihre Anfrage bezüglich des von uns angebotenen Objektes hin. Maklervertrag Ein Maklervertrag mit uns kommt auch dadurch zustande, dass Sie als Kunde mit Sturm Immobilien Kontakt (zum Beispiel per E-Mail) aufnehmen, um weitergehende Informationen zu der von uns angebotenen Immobilie bitten und so Ihren Willen zur Inanspruchnahme unserer Maklerleistungen zeigen. Sie haben das Recht den hierdurch mit uns geschlossenen Vertrag innerhalb von 14 Tagen ohne Angaben von Gründen schriftlich zu widerrufen. Ein entsprechendes Formular lassen wir Ihnen zukommen.

Ziel unserer Leistungen im Rahmen des Maklervertrages mit Ihnen ist es, dass bezüglich des Ihnen hier von uns angebotenen Objektes ein notariell beurkundeter Kaufvertrag zwischen dem Verkäufer und Ihnen als möglichen Käufer abgeschlossen wird. Die Käuferprovision beträgt 3,57 % inklusive Mehrwertsteuer vom Kaufpreis und ist mit notarieller Beurkundung des Kaufvertrages fällig. Mit dem Verkäufer der Immobilie haben wir einen provisionspflichtigen Maklervertrag in gleicher Höhe
abgeschlossen.

Nachweise (etwa Exposés, Bilder, Angebote, Informationen oder Mitteilungen), die Sie als Kunde im Rahmen schriftlicher oder mündlicher Kommunikation von uns erhalten, sind ausschließlich für Sie persönlich bestimmt. Eine Weitergabe an Dritte ist nicht gestattet. Sie schulden Sturm Immobilien die bekanntgegebene Provision, wenn Sie die von uns erhaltenen Nachweise an einen Dritten weitergeben und dadurch ein Hauptvertrag zwischen jenem Dritten und dem Eigentümer des Objektes
zustande kommt.

Wir sind für den Verkäufer im Rahmen eines Makleralleinauftrages tätig. Die in unserem Angebot gemachten Angaben zum Objekt basieren auf den Angaben des Verkäufers der Immobilie sowie gegebenenfalls anderen Auskunftsbefugten. Wir übernehmen diesbezüglich keine Haftung. Irrtum, Auslassung und Zwischenverkauf beziehungsweise Zwischenvermietung bleiben vorbehalten.

Wir bitten Sie auch unsere Allgemeinen Geschäftsbedingungen zu beachten, die Sie in unserem Impressum auf dieser Internetseite von Immowelt finden. Sonstiges Wir sind für den Verkäufer im Rahmen eines Makleralleinauftrages tätig. Die in unserem Angebot gemachten Angaben zum Objekt basieren auf den Angaben des Verkäufers der Immobilie sowie gegebenenfalls anderen Auskunftsbefugten. Wir übernehmen diesbezüglich keine Haftung. Irrtum, Auslassung und Zwischenverkauf beziehungsweise Zwischenvermietung bleiben vorbehalten.

Wir bitten Sie auch unsere Allgemeinen Geschäftsbedingungen zu beachten, die Sie in unserem Impressum auf dieser Internetseite von Immowelt finden.

Weitere Services

Lust auf eine Besichtigung?
Eine Frage zur Immobilie?
Nachricht hinzufügen
Mit der Nutzung der oben angegebenen Telefonnummer oder durch Klicken auf „Kontaktieren“ akzeptierst Du die Allgemeinen Nutzungsbedingungen, denen Du jederzeit widersprechen kannst. Weitere Informationen zum Datenschutz

Über den Anbieter

Sturm Immobilien
Sturm ImmobilienMaklerbüro
Theodorstraße 9, 90489 Nürnberg
partner badge
Partnerschaft
Herr Wolfgang Sturm
Herr Wolfgang SturmDein Kontakt
Online-ID: 2km7b5j
Sturm Immobilien
title
Sturm Immobilien
Bewertung: 4,9 von 5 Sternen
Nachricht hinzufügen
Mit der Nutzung der oben angegebenen Telefonnummer oder durch Klicken auf „Kontaktieren“ akzeptierst Du die Allgemeinen Nutzungsbedingungen, denen Du jederzeit widersprechen kannst. Weitere Informationen zum Datenschutz
Wie zufrieden bist du mit dieser Seite (nicht mit der Immobilie selbst)?