Großzügiges Baugrundstück in Theuma mit viel Platz für Ihr modernes Eigenheim.
In ruhiger Lage von Theuma bietet dieses große, ebenerdige Grundstück die ideale Grundlage für ein modernes Eigenheim, das ganz nach Ihren persönlichen Vorstellungen entstehen kann. Die Lage vereint Ruhe, Privatsphäre und ein angenehmes Wohnumfeld – perfekt für alle, die zeitgemäß und entspannt wohnen möchten.
Das Grundstück ist voll erschlossen, bauträgerfrei und ohne Bauverpflichtung. Sie entscheiden frei über Architektur, Baupartner und Zeitpunkt der Bebauung. Die Bebauung erfolgt gemäß gültigem Bebauungsplan, der Ihnen klare Rahmenbedingungen und Planungssicherheit für ein modernes Wohnkonzept bietet.
Die großzügige Grundstücksfläche eröffnet vielfältige Möglichkeiten – vom klaren, modernen Einfamilienhaus bis hin zu offenen Grundrissen, großen Fensterflächen und einem weitläufigen Garten als Rückzugsort.
Ein ideales Grundstück für Menschen, die ein modernes Eigenheim in ruhiger Lage realisieren möchten.
Merkmale
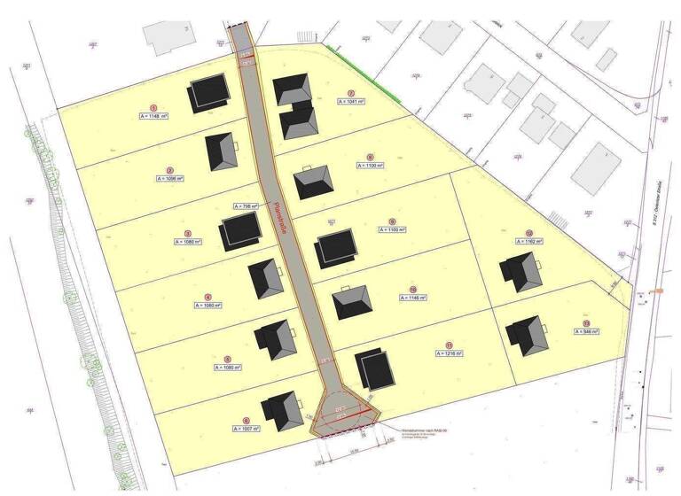
1.162 m² Grundstück
voll erschlossen
Strom, Telekommunikation, Wasser
Grundrisse
Grundrisse
1 / 1
Realisiere Dein Projekt
Bausubstanz und Energie
Der Anbieter hat keine Informationen zu Energieverbrauch oder Zustand der Immobilie bereit gestellt.
Preisdetails
Kaufpreis
89000 €89.000 €
76,59 €/m²
Provision für Käufer
provisionsfrei
Geschätzte Gesamtkosten
89.000 €1
Kaufpreis
89.000 €
1Der angezeigte Wert ist eine automatisch berechnete Schätzung von immowelt.
Lage
Oelsnitzer Straße, Theuma (08541)
Die Gemeinde bietet ideale Bedingungen für Bauherren, die ruhig wohnen und dennoch bestens angebunden sein möchten. Der Ort überzeugt durch ein sicheres, überschaubares Wohnumfeld und kurze Wege im Alltag.
Eine Busanbindung direkt im Ort sorgt für Flexibilität, auch ohne Auto. Schule und Kindergarten befinden sich direkt im Ort, was besonders für Familien kurze Wege und eine entspannte Organisation des Familienalltags bedeutet.
Die Autobahn ist in wenigen Minuten erreichbar, ebenso die Stadt Plauen, die mit Einkaufsmöglichkeiten und Freizeitangeboten schnell und unkompliziert erreicht wird.
Theuma verbindet ländliche Ruhe mit alltagstauglicher Infrastruktur – ein Ort, an dem modernes Wohnen, Familie und Beruf perfekt zusammenpassen.