Version: 8.24.0Navigation überspringen
46.000 €
2 Zimmer  •  55,8 m²  •  3. Geschoss
Immowelt logo

Wohnung zum Kauf
46000 €
825 €/m²
2 Zimmer  •  55,8 m²  •  3. Geschoss

Geräumige 2 Zimmer Wohnung nahe Dahlen

Die 2-Raum Wohnung befindet sich am ruhigen Ortsrand von Großböhla, einem Ortsteil der Stadt Dahlen. Die Wohnung ist Teil eines Mehrfamilienhauses welches aus 3 Etagen besteht und 1995 erbaut wurde.

Die helle und praktisch geschnittene Wohnung liegt in der 3. Etage.

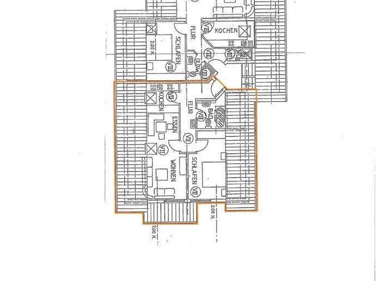
Sie teilt sich in ein geräumiges, helles Wohnzimmer, Bad und Küche sowie einem Schlafzimmer auf.
Vom Wohnzimmer aus, gelangt man auf den gemütlichen Balkon mit Blick auf die kleine Wohnsiedlung.
Zur Einheit gehören auch ein Kellerraum und zwei direkt am Haus gelegene Stellplätze.
Ein im Haus befindlicher Hauswirtschaftsraum wird gemeinschaftlich genutzt.
Die Wohnung wurde in den letzten Jahren saniert und ist in einem gepflegten Zustand.

Merkmale

  • vermietet
  • Dachgeschoss, 3. Geschoss
  • Haustiere erlaubt
  • Einbauküche
  • Kelleranteil
  • Außen-Stellplatz
  • Balkon
Die gepflegte 2 Zimmer Wohnung mit guter Ausstattung und einer Wohnfläche von ca. 55 qm und einer Grundfläche von ca. 68 qm ist praktisch und großzügig geschnitten. Sie verfügt über einen Balkon und einen Kellerraum sowie einen PKW Stellplatz vor dem Haus. Im Keller befindet sich zu jeder Wohneinheit ein separater Kellerabteil und ein Hauswirtschaftsraum.
Ausstattung der Wohnung :
-Bad mit Dusche und WC
-Bodenbeläge bestehend aus Fliesen und Laminat
-Kunststofffenster Doppelisolierverglasung
-Dachschrägen Fenster aus Holz
-Balkon mit Sicht auf die Wohnsiedlung

Grundrisse

Grundrisse
1 / 1

Realisiere Dein Projekt

Bausubstanz und Energie

Energieausweis

E
  • Baujahr1995
  • Zustand der ImmobilieMassivhaus, Gepflegt
  • HeizungsartZentralheizung
  • EnergieträgerÖl
Immowelt logo

Preisdetails

Kaufpreis
46000 €
824,52 €/m²
Hausgeld
350 €
Provision für Käufer
2.800,00 € inkl. ges. MwSt.
(in Höhe von derzeit 19 %)
Weitere Preisinformationen
1 Stellplatz
Ist-Mieteinnahmen pro Jahr: 2.760,00 EUR
Geschätzte Gesamtkosten
49.455 €1
Kaufpreis
46.000 €
Notarkosten (1,5%)
690 €
Grunderwerbsteuer (5,5%)
2.530 €
Provision für Käufer (0,01%)
5 €
Grundbucheintrag (0,5%)
230 €
1Der angezeigte Wert ist eine automatisch berechnete Schätzung von immowelt.
2Bei den Angaben handelt es sich um ortsübliche Werte. Individuelle Kosten können abweichen.

Lage

address-icon
GroßböhlaDahlen/ Großböhla (04774)
Der Anbieter hat die genaue Adresse nicht freigegeben
Seit 1994 sind die Orte Großböhla, Kleinböhla und Neuböhla Stadtteile von der Heidestadt Dahlen. Jeder der drei Stadtteile hat seine kleine Geschichte und so manche Sehenswürdigkeit, die es zu entdecken gibt.
Mit seinen vielen Teichen, seinen verschlungenen Wegen, seiner interessanten Flora und Fauna bietet er Raum für Erholung und Genuss. Besonders interessant ist ein kleines Baudenkmal im Großböhlaer Park. Eine mehr als hundertjährige Begräbnisstätte der einstigen Herren auf Großböhla.
Die nahe liegenden Städte Dahlen, Oschatz und Torgau sind schnell und gut zu erreichen.

Weitere Informationen

Sonstiges Die Wohnung ist seit 01.09.2021 vermietet.
Die Nettokaltmiete beträgt monatlich 230,00 Euro.
Potential an Mietanpassung ist gegeben.

Machen Sie sich ein eigenes Bild und lassen Sie sich von dem Angebot überzeugen. Kontaktieren Sie uns unter 0341/1247815.

Weitere ausführliche Details besprechen wir gern persönlich und vereinbaren einen Besichtigungstermin mit Ihnen. Stichworte Nutzfläche: 77,00 m², vermietbare Fläche: 55,79 m², Anzahl der Schlafzimmer: 1, Anzahl der Badezimmer: 1, Anzahl Balkone: 1, 3 Etagen, Distanz zum Kindergarten: 0.85, Distanz zur Grundschule: 5.00, Distanz zur Realschule: 5.00, Distanz zur nächsten Einkaufsmöglichkeit: 5.00, Distanz zum Gymnasium: 7.00

Weitere Services

Lust auf eine Besichtigung?
Eine Frage zur Immobilie?
Nachricht hinzufügen
Mit der Nutzung der oben angegebenen Telefonnummer oder durch Klicken auf „Kontaktieren“ akzeptierst Du die Allgemeinen Nutzungsbedingungen, denen Du jederzeit widersprechen kannst. Weitere Informationen zum Datenschutz

Über den Anbieter

Handelsplatz 2, 04319 Leipzig, Deutschland
partner badge
Partnerschaft
Frau Jenny FenglerDein Kontakt
Online-ID: 2nxhs5d
Referenznummer: 1933
Immobilien Kompetenz Mitteldeutschland e
Immobilien Kompetenz Mitteldeutschland e
Bewertung: 4,2 von 5 Sternen
Nachricht hinzufügen
Mit der Nutzung der oben angegebenen Telefonnummer oder durch Klicken auf „Kontaktieren“ akzeptierst Du die Allgemeinen Nutzungsbedingungen, denen Du jederzeit widersprechen kannst. Weitere Informationen zum Datenschutz
Wie zufrieden bist du mit dieser Seite (nicht mit der Immobilie selbst)?