Version: 8.24.0Navigation überspringen
Engel & Völkers Rostock, Warnemünde & Waren
595.000 €
3 Zimmer  •  135 m²  •  1. Geschoss  •  frei ab sofort

Wohnung zum Kauf
595000 €
4.407 €/m²
3 Zimmer  •  135 m²  •  1. Geschoss  •  frei ab sofort

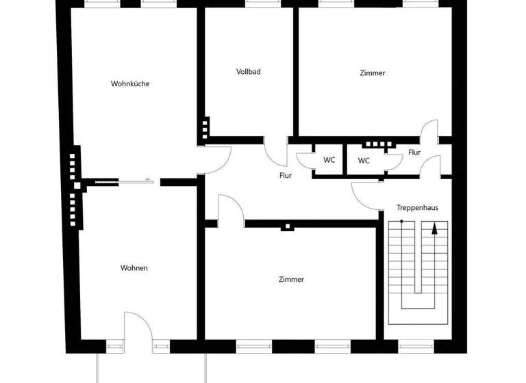
Großzügige Altbauwohnung in der Rostocker Stadtmitte

Die angebotene Eigentumswohnung befindet sich in der Innenstadt von Rostock und überzeugt durch ihren Altbaucharme mit hohen Decken und großzügigen Räumen. Das Objekt wurde im Jahr 1920 erbaut und 1996/97 kernsaniert. ? Diese Wohnung befindet sich im 1. ? Obergeschoss eines Gebäudes mit einer WEG aus 4 Eigentümern und erstreckt sich über die gesamte Etage. ?Die Wohnfläche beträgt ca. ?135 m² und umfasst insgesamt 3 Zimmer und eine separate große Wohnküche mit Einbauküche, die übernommen werden kann. Das großzügige und lichtdurchflutete Wohnzimmer bietet einen Kaminofen für wohlige Wärme und einen Süd-Balkon mit Blick in den Innenhof. Weiterhin gibt es ein modernes Vollbad, 1 Gäste-WC, welches aktuell als Waschmaschinenraum genutzt wird. Das Schlafzimmer ist teilbar, so dass man bei Bedarf ein zusätzliches Zimmer gewinnen kann. Ein weiteres, geräumiges Zimmer mit angrenzendem Gäste-WC befindet sich außerhalb der Wohnung auf derselben Etage. Dieses könnte über das Badezimmer zur Hauptwohnung integriert werden oder man lässt es separat - ideal als Arbeitsbereich oder für Teenager. Die Ausstattung der Wohnung ist hochwertig. Die Elektrik, Fußböden und das Bad wurden 2017 erneuert. Als Bodenbeläge sind Vinyl-Design-Belag, Laminat, Dielen und Fliesen gewählt. ? Ein Gemeinschaftsgarten im Innenhof bietet zusätzlichen Komfort. ? Die Wohnung wird durch eine Gaszentralheizung beheizt und das Badezimmer ist mit einer Fußbodenheizung ausgestattet. ? Für die Unterbringung von diversen Dingen stehen zwei Kellerräume zur Verfügung. ?Das monatliche Hausgeld beträgt aktuell 433,- €.

Merkmale

  • frei ab sofort
  • 1. Geschoss
  • Einbauküche
  • Gäste-WC
  • Balkon
  • Gartenmitbenutzung
  • Badezimmer: Badewanne, Bad mit Dusche, Bad mit Fenster

Grundrisse

Grundrisse
1 / 1

Realisiere Dein Projekt

Bausubstanz und Energie

Der Anbieter hat keine Informationen zum Energieverbrauch bereit gestellt.
  • Baujahr1920
  • HeizungsartZentralheizung: Fußbodenheizung
  • EnergieträgerGas
MediumRectangleTop

Preisdetails

Kaufpreis
595000 €
4.407 €/m²
Hausgeld
433 €
Provision für Käufer
3,57
Geschätzte Gesamtkosten
663.841 €1
Kaufpreis
595.000 €
Notarkosten (1,5%)
8.925 €
Grunderwerbsteuer (6%)
35.700 €
Provision für Käufer (3,57%)
21.241 €
Grundbucheintrag (0,5%)
2.975 €
1Der angezeigte Wert ist eine automatisch berechnete Schätzung von immowelt.
2Bei den Angaben handelt es sich um ortsübliche Werte. Individuelle Kosten können abweichen.

Lage

address-icon
StadtmitteRostock (18055)
Der Anbieter hat die genaue Adresse nicht freigegeben
Die Immobilie liegt in der begehrten Innenstadtlage mit sehr guter Infrastruktur. ? In unmittelbarer Nähe befinden sich ÖPNV, Schulen, Kindergärten, Einzelhandel und Gastronomie.? Der Hauptbahnhof und die Autobahn sind in kürzester Zeit erreichbar. ?Rostock ist die größte Stadt des Bundeslandes Mecklenburg-Vorpommern und nach Kiel und Lübeck auch die größte Hafenstadt an der deutschen Ostseeküste. Geprägt wird sie durch die Hanse und deren Backsteingotik, sowie die Universität Rostock, die schon 1419 gegründet wurde und so zu den ältesten Nordeuropas zählt. Das Stadtgebiet erstreckt sich beidseitig des Unterlaufs der Warnow, die als Unterwarnow vom Rostocker Stadtzentrum bis zur etwa 13 Kilometer entfernten Küste schiffbar ist. Vor der Mündung in die Ostsee beim Ortsteil Warnemünde weitet sich die Unterwarnow in Richtung Osten zum Breitling aus. Hier befindet sich der Rostocker Seehafen. Sehenswert ist der wohl bedeutendste Rostocker Sakralbau, die Marienkirche, der im Inneren eine auserlesene Ausstattung beherbergt. Weitere Attraktionen sind die zahlreichen Museen und Theater, der größte Zoo der deutschen Küsten und die hochkarätigen Segelregatten in dem attraktiven Ostseebad Warnemünde. Erleben Sie den herrlichen breiten und weißen Sandstrand, der sich um Rostock von Markgrafenheide im Osten bis nach Diedrichshagen im Westen erstreckt.

Weitere Informationen

Sonstiges Info: Anzahl Etagen: 4 Der Makler-Vertrag mit uns und/oder unserem Beauftragten kommt durch die Bestätigung der Inanspruchnahme unserer Maklertätigkeit in Textform zustande, wie z.B. insbesondere die Unterschrift des Suchkundenvertrages und/oder des Objekt-Exposés. Die Höhe der Courtage richtet sich nach den gesetzlichen Regelungen zur Teilung der Maklercourtage. Hiernach wird die Courtage für beide Parteien (Eigentümer und Käufer) in Höhe von jeweils 3 % zuzüglich Umsatzsteuer in geltender Höhe, derzeit also insgesamt 3,57 % des Kaufpreises einschließlich 19 % gesetzl. Umsatzsteuer bei notariellem Vertragsabschluss verdient und fällig. Die Höhe der Bruttocourtage unterliegt einer Anpassung bei Steuersatzänderung. Grunderwerbssteuer, Notar- und Gerichtskosten trägt der Käufer. HINWEISE: Alle Angaben sind ohne Gewähr und basieren ausschließlich auf Informationen, die uns von unserem Auftraggeber übermittelt wurden. Wir übernehmen keine Gewähr für die Vollständigkeit, Richtigkeit und Aktualität dieser Angaben. Zwischenverkauf bleibt vorbehalten. Sollte das von uns nachgewiesene Objekt bereits bekannt sein, teilen Sie uns dieses bitte unverzüglich mit. Die Weitergabe dieses Exposees an Dritte ohne unsere Zustimmung löst gegebenenfalls Courtage- bzw. Schadensersatzansprüche aus. Im Übrigen gelten unsere Allgemeinen Geschäftsbedingungen. Wir stehen Ihnen mit weiteren Informationen zum Objekt und zum Eigentümer sowie für Besichtigungen gern zur Verfügung. Heizungsart: Heizkoerper

Weitere Services

Lust auf eine Besichtigung?
Eine Frage zur Immobilie?
Nachricht hinzufügen
Mit der Nutzung der oben angegebenen Telefonnummer oder durch Klicken auf „Kontaktieren“ akzeptierst Du die Allgemeinen Nutzungsbedingungen, denen Du jederzeit widersprechen kannst. Weitere Informationen zum Datenschutz

Über den Anbieter

Lange Straße 9, 18055 Rostock
partner badge
Partnerschaft
Team Engel & Völkers Rostock
Team Engel & Völkers RostockDein Kontakt
Online-ID: 2n5fw5j
Referenznummer: W-0487SB
Engel & Völkers Rostock, Warnemünde & Waren
title
Engel & Völkers Rostock, Warnemünde & Waren
Bewertung: 4 von 5 Sternen
Nachricht hinzufügen
Mit der Nutzung der oben angegebenen Telefonnummer oder durch Klicken auf „Kontaktieren“ akzeptierst Du die Allgemeinen Nutzungsbedingungen, denen Du jederzeit widersprechen kannst. Weitere Informationen zum Datenschutz
MediumRectangleTop
MediumRectangleBottom
MediumRectangleTop
Wie zufrieden bist du mit dieser Seite (nicht mit der Immobilie selbst)?