Version: 8.26.0Navigation überspringen
845.000 €
8 Zimmer  •  381 m²  •  130 m² Grundstück
Immowelt logo

Reihenmittelhaus zum Kauf
845000 €
1.750 €/m²
8 Zimmer  •  381 m²  •  130 m² Grundstück

Charmantes B&B: Historisches Gebäude im Herzen von Bussolengo

In der Fußgängerzone des Altstadtzentrums von Bussolengo, nur wenige Minuten von Verona, dem Gardasee und dem Valpolicella entfernt, bieten wir ein elegantes und historisches Gebäude mit 400 Quadratmetern Wohnfläche an. Das Anwesen wurde Mitte der 1990er Jahre sorgfältig renoviert und eignet sich hervorragend sowohl als private Residenz als auch als B&B oder zur Zimmervermietung mit hohem touristischem Potenzial.

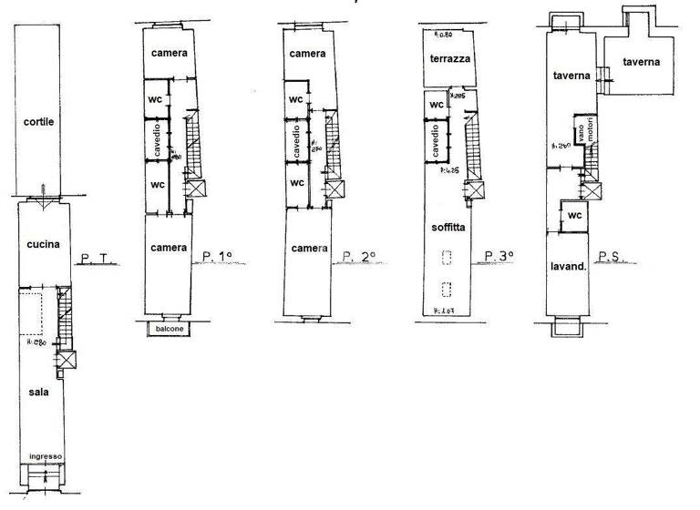
Die derzeit als B&B genutzte Immobilie erstreckt sich über fünf Etagen, die bequem mit einem Aufzug erreichbar sind, und vereint Eleganz, Komfort und Zweckmäßigkeit. Die Innenräume sind mit edlen Materialien wie rosa Marmor, Eichenparkett, venezianischen Terrazzoböden und antiken Terrakottafliesen ausgestattet. Sie erzählen die Geschichte einer Residenz aus dem frühen 20. Jahrhundert, die geschickt restauriert wurde, wobei originale Details wie der Balkon im spanischen Stil und die handgeschnitzte rote Marmortür erhalten blieben.

Das Haus verfügt über ein elegantes Wohnzimmer, eine gemütliche Wohnküche mit Kamin und direktem Zugang zum privaten Innenhof, vier große Schlafzimmer mit eigenem Bad sowie ein helles, offenes Dachgeschoss mit Panoramaterrasse. Im Untergeschoss befinden sich ein sechstes Badezimmer mit Dusche und eine praktische Waschküche.
Die Gemeinschaftsräume, darunter die Taverna mit Gewölbekeller und Kamin, der charakteristische Lichtschacht mit verzierten Glasfenstern, der jedes Stockwerk erhellt, und der entspannende Innenhof, schaffen eine exklusive und einladende Atmosphäre, die sich perfekt für eine Beherbergungseinrichtung eignet.
Im Außenbereich bietet der private Innenhof mit seinem Terrakottaboden und den blühenden Pflanzen einen idealen Platz für das Frühstück im Freien und entspannende Momente - ein Vorteil, der von internationalen Gästen sehr geschätzt wird.

Dank seiner strategischen Lage zwischen Verona, dem Gardasee und den Hügeln des Valpolicella garantiert das Anwesen ein Beherbergungsangebot für ein breites und vielfältiges Publikum und eine hohe Rentabilität auf dem touristischen Vermietungsmarkt. Es ist eine perfekte Mischung aus Geschichte, Eleganz und Investition, bereit, ein charmantes B&B oder ein Wohnsitz im Herzen einer der begehrtesten Gegenden Norditaliens zu werden.

Das Objekt ist sofort verfügbar und bereits als B&B in Betrieb. Dank seiner Lage zwischen den beiden bekannten Orten kann es auch als Unterkunft für die kommenden Olympischen Spiele Mailand-Cortina dienen.

Merkmale

  • Bezug: nach Vereinbarung
  • 4 Geschosse
  • 130 m² Grundstück
  • Keller
  • Balkon

Grundrisse

Grundrisse
1 / 1

Bausubstanz und Energie

Möchtest du Details zum Energieverbrauch?info_energy_calculation-icon
  • Baujahr1900
  • HeizungsartEtagenheizung: Fußbodenheizung
  • EnergieträgerGas
Immowelt logo

Preisdetails

Kaufpreis
845000 €
1.750 €/m²
Provision für Käufer
Maklerprovision im Preis nicht inbegriffen

Lage

address-icon
Corso MazziniBussolengo (37012)
Bussolengo, ein bezaubernder Ort zwischen Verona und dem Gardasee, bietet eine perfekte Mischung aus Geschichte, Natur und modernen Annehmlichkeiten. Strategisch günstig gelegen, ist es ein idealer Ausgangspunkt, um die künstlerischen Wunder Veronas, die bezaubernden Ufer des Gardasees und die renommierten Hügel des Valpolicella zu erkunden. Diese privilegierte Lage garantiert einfachen Zugang zu unzähligen touristischen Attraktionen und Freizeitmöglichkeiten. Seine lebhafte Atmosphäre und die Fülle an Veranstaltungen machen es zu einem ausgezeichneten Reiseziel für Besucher und zu einer vielversprechenden Investition im Gastgewerbe.

Weitere Informationen

Sonstiges Wir begleiten Sie nach Terminvereinbarung persönlich zu den Objekten und stehen Ihnen während des gesamten Prozesses des Immobilienerwerbs als starker und kompetenter Partner zur Seite. Mit uns gehen Sie keine Kompromisse ein und überlassen nichts dem Zufall. Umfassender Service ist für uns nicht nur ein Wort, sondern eine Firmenphilosophie. Wir unterstützen Sie aktiv und überwinden alle sprachlichen und kulturellen Barrieren auf Ihrem Weg zu Ihrer Traumimmobilie am Gardasee. Stichworte Stellplatz vorhanden, Nord-Süd-Balkon/Terrasse, Nutzfläche: 366,00 m², Verkaufsfläche: 130,00 m², Anzahl der Schlafzimmer: 5, Anzahl der Badezimmer: 6, Anzahl Balkone: 1, Anzahl Terrassen: 1, Balkon-Terrassen-Fläche: 18,00 m², Gartenfläche: 55,00 m², Anzahl der Wohneinheiten: 1, Bundesland: Venetien, Distanz zum Kindergarten: 1.00, Distanz zur Grundschule: 1.00, Distanz zur Realschule: 1.00, Distanz zum Gymnasium: 5.00, Distanz zur Autobahn: 8.00, Distanz vom Zentrum: 15.00, Distanz zum Meer: 133.00, in einem Hochhaus gelegen

Weitere Services

Lust auf eine Besichtigung?
Eine Frage zur Immobilie?
Nachricht hinzufügen
Mit der Nutzung der oben angegebenen Telefonnummer oder durch Klicken auf „Kontaktieren“ akzeptierst Du die Allgemeinen Nutzungsbedingungen, denen Du jederzeit widersprechen kannst. Weitere Informationen zum Datenschutz

Über den Anbieter

Via Meucci 77, 25080 PADENGHE SUL GARDA
partner badge
6 Jahre Partnerschaft
Team Agenzia Garda Haus-GardaDein Kontakt
Online-ID: 252GQF4CCD5A
Referenznummer: GV0187
Wie zufrieden bist du mit dieser Seite (nicht mit der Immobilie selbst)?