+++ 2-Raum-Wohnung mit Westbalkon & TG-Stellplatz - in gepflegter Wohnanlage +++
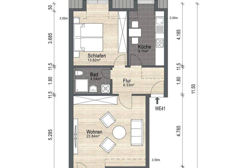
Zum Verkauf steht diese gepflegte 2-Raum-Eigentumswohnung im 4. Obergeschoss eines modernen Mehrfamilienhauses aus dem Jahr 1995. Diese überzeugt durch ihre durchdachte Raumaufteilung über von ca. 59 m² Wohnfläche sowie den gepflegten Zustand mit Ausstattungsmerkmalen, die komfortables Wohnen in ruhiger und gut angebundener Lage ermöglichen.
Der Mittelpunkt der Wohnung ist das großzügige Wohnzimmer, das nicht nur viel Platz für einen Wohn- und Essbereich bietet, sondern auch direkten Zugang zum Westbalkon ermöglicht. Dieser wurde im Jahr 2021 im Rahmen einer modernen Balkonanlage am Gebäudekomplex ergänzt und lädt zu entspannten Abendstunden mit Blick auf den Sonnenuntergang ein. Die Küche ist angenehm hell und verfügt über ein Fenster, das für Tageslicht und eine angenehme Atmosphäre sorgt.
Das Badezimmer ist mit einer Dusche ausgestattet und präsentiert sich in einem gepflegten Zustand. Ein charmantes Schlafzimmer rundet das Raumangebot ab. Zusätzlich steht ein separates Kellerabteil zur Verfügung, das weiteren Stauraum bietet. Für Wäsche und Haushaltsorganisation steht zudem ein gemeinschaftlicher Trockenraum im Haus zur Verfügung.
Die Beheizung erfolgt über eine effiziente Gaszentralheizung. Besonders hervorzuheben ist die umfassende Dachsanierung, die 2018 durchgeführt wurde und zur langfristigen Werterhaltung des Gebäudes beiträgt. Ein weiterer Pluspunkt ist der zur Wohnung gehörende Tiefgaragenstellplatz, der nicht nur für Komfort, sondern auch für Sicherheit sorgt.
Die Wohnung ist aktuell vermietet und erzielt eine Jahresnettokaltmiete von ca. 4.068,00 € (ohne Stellplatz).
Die gesamte Wohnanlage befindet sich in einem sehr gepflegten Zustand und bietet mit einem großzügigen grünen Außenbereich, Sitzmöglichkeiten und einem Kinderspielplatz ein angenehmes Wohnumfeld für alle Altersgruppen.
Für weitere Informationen oder zur Vereinbarung eines Besichtigungstermin sprechen Sie uns jederzeit an!
Merkmale
vermietet
4. Geschoss
Kelleranteil
Tiefgarage
Balkon
Bad mit Dusche
Bodenbelag: Fliesen, Laminat
+ Eigentumswohnung + 4. Obergeschoss + ca. 59 m² Wohnfläche + Baujahr ca. 1995 + vermietet + ca. 4.068,00 € Jahresnettokaltmiete (ohne Stellplatz) + vollständige Dachsanierung 2018 + Badezimmer mit Dusche + großzügiges Wohnzimmer mit Balkonzugang + Balkon in westlicher Ausrichtung (Balkonanlage aus 2021) + lichtdurchflutete Küche + Tiefgaragen-Stellplatz + Kellerabteil + gemeinschaftlicher Trockenraum + Gaszentralheizung + sehr gepflegte Wohnanlage mit Spielplatz und Sitzmöglichkeiten im Freien
Grundrisse
Grundrisse
1 / 1
Realisiere Dein Projekt
Bausubstanz und Energie
Energieausweis
D
Baujahr1994
Zustand der ImmobilieGepflegt
EnergieträgerFernwärme
Preisdetails
Kaufpreis
149000 €149.000 €
2.525,42 €/m²
Preis pro Stellplatz
10000 €10.000 €
Hausgeld
289 €289 €
Provision für Käufer
3,57% inkl. MwSt.
Weitere Preisinformationen
1 Tiefgaragenstellplatz, Kaufpreis: 10.000,00 EUR
Geschätzte Gesamtkosten
165.494 €1
Kaufpreis
149.000 €
Kaufnebenkosten
16.494 €
2
Notarkosten (1,5%)
2.235 €
Grunderwerbsteuer (5,5%)
8.195 €
Provision für Käufer (3,57%)
5.319 €
Grundbucheintrag (0,5%)
745 €
1Der angezeigte Wert ist eine automatisch berechnete Schätzung von immowelt.
2Bei den Angaben handelt es sich um ortsübliche Werte. Individuelle Kosten können abweichen.
Lage
Reick, Dresden (01237)
Der Anbieter hat die genaue Adresse nicht freigegeben
Die Eigentumswohnung befindet sich in ruhiger und zugleich gut angebundener Lage im Dresdner Stadtteil Prohlis, im Südosten der Landeshauptstadt. Sie liegt in einer sehr gepflegten und gewachsenen Wohnsiedlung mit viel Grün und einer angenehmen Nachbarschaftsatmosphäre.
Die verkehrsgünstige Lage ermöglicht eine schnelle Anbindung an das überregionale Straßennetz. Die Autobahn A17 ist in wenigen Fahrminuten erreichbar und verbindet Dresden mit Pirna sowie dem tschechischen Grenzraum.
Auch der Anschluss an den öffentlichen Nahverkehr ist sehr gut. Mehrere Straßenbahn- und Buslinien (z.?B. Linie 1 und 9 sowie Buslinien 65 und 66) sind fußläufig in wenigen Minuten erreichbar und bieten eine direkte Verbindung in die Dresdner Innenstadt sowie zu weiteren Stadtteilen. Die Fahrt in das historische Zentrum mit der Frauenkirche, Semperoper oder Altmarkt-Galerie dauert ca. 20 bis 25 Minuten.
In der unmittelbaren Umgebung finden sich zahlreiche Einrichtungen des täglichen Bedarfs: Supermärkte (z.?B. Rewe, Lidl, Netto), Bäcker, Apotheken, Banken und Drogerien sind bequem zu Fuß oder mit dem Rad erreichbar. Auch Ärztehäuser, Kitas und Schulen befinden sich in der Nähe, was den Standort besonders familienfreundlich macht.
Ein besonderes Highlight ist das nahegelegene Prohlis-Zentrum, ein modernes Stadtteilzentrum mit vielfältigen Einkaufsmöglichkeiten, Gastronomie und Dienstleistungsangeboten. Ergänzt wird die gute Nahversorgung durch den Wochenmarkt, der regelmäßig frische Produkte aus der Region bietet.
Der beliebte Großteich und der Geberbach mit angrenzenden Grünflächen bieten ideale Bedingungen für Spaziergänge, Jogging oder entspannte Stunden im Grünen.
Für kulturelle Interessen befinden sich sowohl lokale Einrichtungen wie das Kulturzentrum Prohlis als auch die Sehenswürdigkeiten und Museen der Altstadt Dresdens in komfortabler Reichweite. Darüber hinaus bieten zahlreiche Sportvereine, das Schwimmbad Prohlis und Spielplätze vielfältige Möglichkeiten für Groß und Klein.
Weitere Informationen
Sonstiges
Alle in diesem Angebot enthaltenen Angaben, Darstellungen und Preise stammen ausschließlich vom Eigentümer oder eines Dritten. Eine Haftung unseres Unternehmens hierfür ist ausgeschlossen.
Stichworte
Tiefgarage vorhanden, Anzahl der Schlafzimmer: 1, Anzahl der Badezimmer: 1, Anzahl Balkone: 1, Bundesland: Sachsen, 4 Etagen, modernisiert: 2021