Version: 8.25.1Navigation überspringen
TWE-Immobilien Thomas Erthle e. K.
145.000 €
220 m² Grundstück

Grundstück zum Kauf
145000 €
659 €/m²
220 m² Grundstück

*Tiny House Grundstück* in bester Lage

Mikro-Haus-Grundstück im Westallgäu
nur Erstwohnsitz möglich
"So klein wie nötig"
Mikro Haus mit bis zu ca. 40?m² Wohnfläche möglich
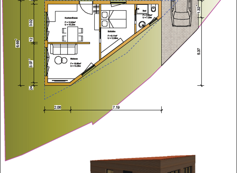
Zwei Grundstücke, 197?m² und 220?m², ortsüblich erschlossen in sonniger Hanglage bieten wir Ihnen die seltene Gelegenheit, ein individuell geplantes Mikro-Haus zu realisieren. Die erhöhte Lage ermöglicht eine fantastische West-Ausrichtung mit Weitblick über ganz Weiler im Westallgäu.
Das Grundstück muss noch mit Gabionen professionell terrassierte werden und benötigt noch eine Regenwasser Zisterne. Sie bildet die ideale Grundlage für ein kompaktes barrierefreies Wohnkonzept. Geplant sind Mikro-Haus mit 40?m² und 23 m² Wohnfläche, ergänzt durch eine großzügige Terrasse mit ca. 20?m² - perfekt zum Sonnenuntergang genießen. Die Gebäudehöhe beträgt maximal 4 Meter, mit einem modernen Pultdach.
Dieses Grundstück ist ideal für Menschen, die bewusst auf das Wesentliche setzen - naturnah, modern und minimalistisch.
Ein attraktives Grundstück für Individualisten oder Paare, die auf kleinem Raum bewusst wohnen wollen - mit Stil, Aussicht und einem durchdachten Nutzungskonzept.

Merkmale

  • 220 m² Grundstück
  • voll erschlossen
  • Fernblick
- erschlossen, Frischwasser, Abwasser, Strom, Telekom Glasfaser
- kurzfristig bebaubar
- Stellplatz auf dem Grundstück
- Grundstück 1. ca. 220?m²
- Grundstück 2. ca. 197?m²
- Haus 1, Hausgröße (geplant): ca. 40?m² Wohnfläche
- Haus 2 Hausgröße (geplant): ca. 23m² Wohnfläche
- Terrasse: ca. 20?m², West-Ausrichtung
- Haus Maße: ca. 4?m Höhe, Pultdach
- Nutzung: Nur als Erstwohnsitz möglich
- Zielgruppe: max. 2 Personen
- Extras: kleiner Gartenbereich realisierbar
- der Garten kann an einem Grundstück durch günstige Pacht erweitert werden

Grundrisse

Grundrisse
1 / 2

Realisiere Dein Projekt

Bausubstanz und Energie

Möchtest du Details zum Energieverbrauch?info_energy_calculation-icon
MediumRectangleTop

Preisdetails

Kaufpreis
145000 €
659,09 €/m²
Provision für Käufer
2,38 % inkl. MwSt.
Geschätzte Gesamtkosten
148.451 €1
Kaufpreis
145.000 €
Provision für Käufer (2,38%)
3.451 €
1Der angezeigte Wert ist eine automatisch berechnete Schätzung von immowelt.
2Bei den Angaben handelt es sich um ortsübliche Werte. Individuelle Kosten können abweichen.

Lage

address-icon
WeilerWeiler-Simmerberg (88171)
Der Anbieter hat die genaue Adresse nicht freigegeben
Die Marktgemeinde Weiler-Simmerberg liegt im schwäbischen Bodenseelandkreis Lindau mit ca. 6.600 Einwohnern. Hier wohnen Sie, wo andere Urlaub machen. In der Vierländerregion Bodensee bündeln sich attraktive Landschaften mit ausgezeichneter Lebensqualität, den Bodensee erreichen Sie in ca. 25 Minuten mit dem PKW.

Ausgezeichnet ist diese Region durch einen hohen Freizeitwert und reichhaltigen Sportmöglichkeiten. Hier finden Sie die ideale Region für Entspannung und Erholung im Alltag und den best möglichsten Ausgangspunkt für sämtliche Sommer- und Winteraktivitäten wie Reiten, Golfen, Baden, Wandern, Bergsteigen und Wintersportarten.

Weitere Informationen

Sonstiges Um eine schnelle Bearbeitung zu gewährleisten, übermitteln Sie uns bitte Ihre vollständigen Kontaktdaten mit Telefon-Nr. und E-Mail-Adresse.

Wir vermitteln - mit Sicherheit.

Weitere Services

Lust auf eine Besichtigung?
Eine Frage zur Immobilie?
Nachricht hinzufügen
Mit der Nutzung der oben angegebenen Telefonnummer oder durch Klicken auf „Kontaktieren“ akzeptierst Du die Allgemeinen Nutzungsbedingungen, denen Du jederzeit widersprechen kannst. Weitere Informationen zum Datenschutz

Über den Anbieter

Edisonallee 7, 89231 Neu-Ulm
partner badge
10 Jahre Partnerschaft
Herr Peter Steinhauser
Herr Peter SteinhauserDein Kontakt
Online-ID: 24UGF3PFZ9WR
Referenznummer: 2327 (1/2327)
TWE-Immobilien Thomas Erthle e. K.
title
TWE-Immobilien Thomas Erthle e. K.
Bewertung: 4,7 von 5 Sternen
Nachricht hinzufügen
Mit der Nutzung der oben angegebenen Telefonnummer oder durch Klicken auf „Kontaktieren“ akzeptierst Du die Allgemeinen Nutzungsbedingungen, denen Du jederzeit widersprechen kannst. Weitere Informationen zum Datenschutz
MediumRectangleTop
MediumRectangleBottom
MediumRectangleTop
Wie zufrieden bist du mit dieser Seite (nicht mit der Immobilie selbst)?