Version: 8.22.6Navigation ĂĽberspringen
1.120.000 €
4 Zimmer  â€˘  124,5 m²

Wohnung zum Kauf
1120000 €
8.997 €/m²
4 Zimmer  â€˘  124,5 m²

Elegantes Altbau-Ambiente - 4-Zimmer-Wohnung beim Naschmarkt

Objektnummer: 4378

Im 6. Bezirk, einen Steinwurf vom Wiener Naschmarkt entfernt, befindet sich diese besonders schöne, klassische Altbauwohnung mit Erker.

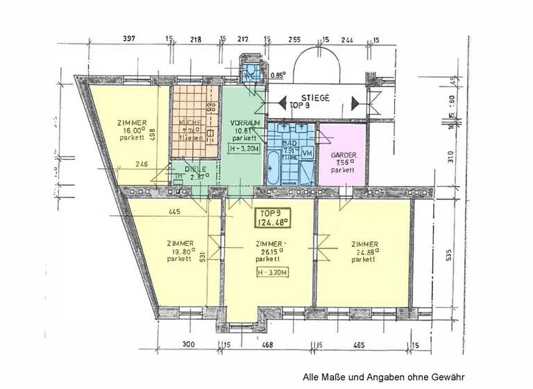
Geräumige 124 m² Wohnfläche verteilen sich auf 4 Zimmer sowie die nötigen Nebenräume. Man betritt die Wohnung durch einen zentralen Vorraum, vor dem sich die einzelnen Räume ausbreiten.

Hier ist vorhanden, was eine klassische Altbauwohnung so besonders macht. Edler Parkett in allen Wohnräumen, die beeindruckende Raumhöhe von 3,70 Meter sowie die typischen hohen Fenster, die für ausreichend Licht sorgen.

Vom Vorraum erreicht man 3 ähnlich große Räume, die heute als Wohn- und Arbeitszimmer genutzt werden. Hier befindet sich auch ein moderner Kachelofen, der in der kühleren Jahreszeit für wohlige Wärme sorgt.

Das vierte Zimmer wird als Schlafzimmer genutzt und ist in den ruhigen Innenhof gerichtet. Die komplette ausgestattete Küche mit sämtlichen Geräten ist im Kaufpreis enthalten. Ein praktisches Extra ist sicherlich die große begehbare Garderobe, die ausreichend Platz und Stauraum bietet.

Ein geräumiges Bad und ein separates WC komplettieren diese elegante Wohnung.
Neben dem Holzofen sorgt eine Gasetagenheizung für Wärme, alle nötigen Anschlüsse sind selbstverständlich vorhanden.

Das Haus verfĂĽgt ĂĽber einen Personenaufzug, ein eigenes Kellerabteil ist ebenfalls im Kaufpreis enthalten.

Supermärkte, Apotheken und der nahe Naschmarkt sind in unmittelbarer Umgebung, die öffentliche Anbindung ist durch Buslinien und U-Bahn ausgezeichnet.

Die Wohnung ist ab September 2024 3 Jahre befristet vermietet und die monatliche Nettomiete beträgt derzeit € 1.500,00.

Wir freuen uns, Ihnen diese elegante Altbauwohnung anbieten zu dĂĽrfen.


Gerne stehen wir fĂĽr weitere Informationen zur VerfĂĽgung - wir freuen uns auf Ihren Anruf!

Sämtliche Angaben sind ohne Gewähr und beruhen auf Informationen der Verkäuferseite.

Merkmale

  • Bezug: nach Vereinbarung
  • vermietet
  • EinbaukĂĽche
  • Personenaufzug
  • offener Kamin

Grundrisse

Grundrisse
1 / 1

Realisiere Dein Projekt

Bausubstanz und Energie

Heizwärmebedarf (HWB)

E

Gesamtenergieeffizienz (fGEE)

E
  • Baujahr1889
  • Zustand der ImmobilieAltbau (bis 1945)
  • HeizungsartEtagenheizung
  • EnergieträgerGas
MediumRectangleTop

Preisdetails

Kaufpreis
1120000 €
8.997,43 €/m²
Provision für Käufer
3% d. Kaufpreises + 20% MwSt. inkl. MwSt.

Lage

address-icon
Wien (1060)
Der Anbieter hat die genaue Adresse nicht freigegeben

Weitere Informationen

Stichworte Anzahl der Badezimmer: 1, Anzahl der separaten WCs: 1, Distanz zum Kindergarten: 0.26, Distanz zur Grundschule: 0.11, Distanz zur Realschule: 0.45, Distanz zur nächsten Einkaufsmöglichkeit: 0.01, Distanz zum Gymnasium: 1.10, Distanz zum Flughafen: 17.41, Distanz zum Hauptbahnhof: 1.26, Distanz zur Autobahn: 3.03, Distanz zu U-/S-Bahn: 0.23, Distanz zum Bus: 0.10, Distanz zur nächsten Gaststätte: 0.13, Distanz vom Zentrum: 2.09, Distanz zur Hauptschule: 1.27

Weitere Services

Lust auf eine Besichtigung?
Eine Frage zur Immobilie?
Nachricht hinzufĂĽgen
Mit der Nutzung der oben angegebenen Telefonnummer oder durch Klicken auf „Kontaktieren“ akzeptierst Du die Allgemeinen Nutzungsbedingungen, denen Du jederzeit widersprechen kannst. Weitere Informationen zum Datenschutz

Ăśber den Anbieter

Castellezgasse 36-38/Top 5, 1020 WIEN
Frau F. Susanne BirnleitnerDein Kontakt

Weitere Unterlagen

Online-ID: 2dxmt5p
Referenznummer: 4378
Birnleitner Immobilien GmbH
Nachricht hinzufĂĽgen
Mit der Nutzung der oben angegebenen Telefonnummer oder durch Klicken auf „Kontaktieren“ akzeptierst Du die Allgemeinen Nutzungsbedingungen, denen Du jederzeit widersprechen kannst. Weitere Informationen zum Datenschutz
MediumRectangleTop
MediumRectangleBottom
MediumRectangleTop
Wie zufrieden bist du mit dieser Seite (nicht mit der Immobilie selbst)?