Inserieren Sie auf immowelt.at bereits ab 24,90 € inkl. MwSt.

Anzeige aufgeben Preisübersicht

Aktuelle Wohnungen in Nordheim v d Rhön

Erfahre mehr über die Ergebnisse

Exklusive 2-3 Zi. Wohnungen im Einzeldenkmal

97645 Ostheim vor der Rhön, Marktstraße 60 max 5 km
  • provisionsfrei
  • Balkon
  • Dielenboden
  • Zentralheizung
  • als Ferienimmobilie geeignet
210.700 €
Kaufpreis
49 m²
Wohnfläche (ca.)
2
Zimmer
DÜRING | DÜRING & Kollegen
Das Objekt wurde Ihrem
Merkzettel hinzugefügt.

sofort beziehbar - 2-Zimmer-Neubau-Eigentumswohnung in Mellrichstadt

97638 Mellrichstadt max 10 km
  • provisionsfrei
252.700 €
Kaufpreis
64,07 m²
Wohnfläche (ca.)
2
Zimmer
Sparkassen-Immobilien-Vermittlungs-GmbH & Co KG
Das Objekt wurde Ihrem
Merkzettel hinzugefügt.

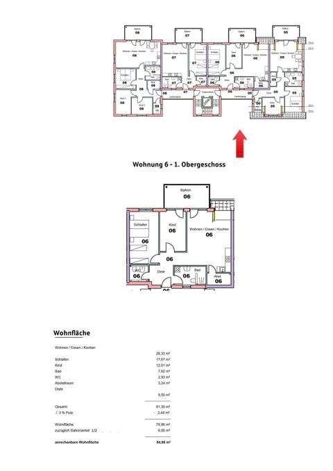
Sofort beziehbar - 3-Zimmer-Neubau-Eigentumswohnung in Mellrichstadt

97638 Mellrichstadt max 10 km
  • provisionsfrei
324.900 €
Kaufpreis
84,86 m²
Wohnfläche (ca.)
3
Zimmer
Sparkassen-Immobilien-Vermittlungs-GmbH & Co KG
Das Objekt wurde Ihrem
Merkzettel hinzugefügt.

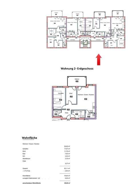
Sofort beziehbar - 3-Zimmer-Neubau-Eigentumswohnung in Mellrichstadt

97638 Mellrichstadt max 10 km
  • provisionsfrei
327.750 €
Kaufpreis
85,65 m²
Wohnfläche (ca.)
3
Zimmer
Sparkassen-Immobilien-Vermittlungs-GmbH & Co KG
Das Objekt wurde Ihrem
Merkzettel hinzugefügt.
Alle 4 Wohnungen anzeigen