Version: 8.24.0Navigation überspringen
376.000 €
2 Zimmer  •  88,4 m²
Immowelt logo

Wohnung zum Kauf • provisionsfrei
376000 €
4.251 €/m²
2 Zimmer  •  88,4 m²

Moderne 4-Zimmer-Neubauwohnung mit Balkon und Stellplatz

Die hier beschriebene Wohnung befindet sich in einem Mehrfamilienhaus in Ihme-Roloven, dessen Bau im ersten Jahre 2026 beginnt.

Es handelt sich um eine 4-Zimmer-Wohnung mit Balkon und Stellplatz.
Das Mehrfamilienhaus ist in einer Seitenstraße. Diese liegt sich inmitten einer ruhigen Wohnsiedlung, Sie finden alle Einrichtungen des täglichen Bedarfs in näherer Umgebung.
Die Siedlung besteht überwiegend aus kleinen Mehrfamilienhäusern, Einfamilienhäusern und Geschäften.

Die Wohnung eignet sich sowohl als Kapitalanlage als auch für die Eigennutzung und ist ideal für bis zu vier Personen.

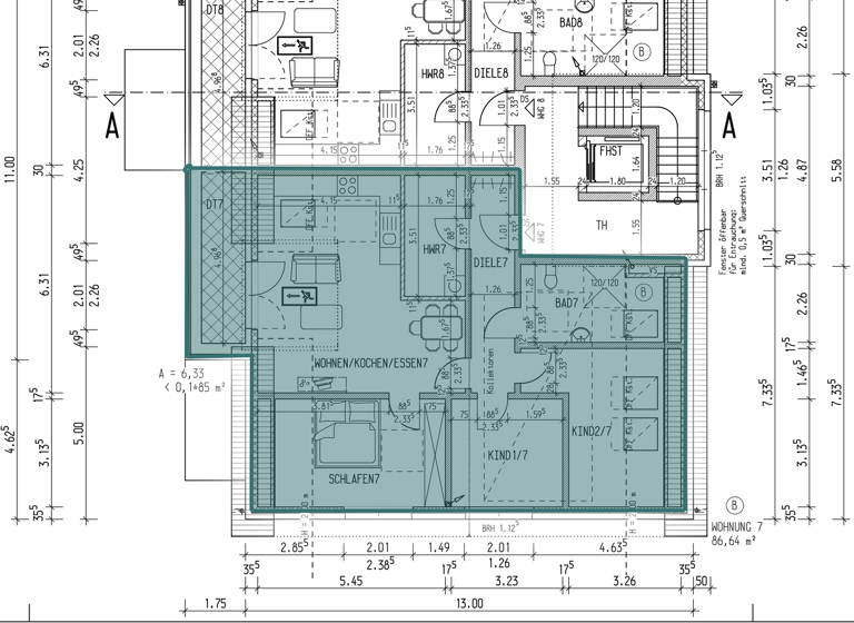
Die Wohnung
Der Eingangsbereich
Über die Eingangstür gelangt man in den Flur, welcher zentral gelegen ist und Zugang zu allen Räumen bietet.
Links liegt das Badezimmer, im Uhrzeigersinn weiter liegen die drei Zimmer, dann folgt der Wohn-/Essbereich und schließlich der Hauswirtschaftsraum.

Der Wohn- und Essbereich
Das Wohnzimmer befindet sich im hinteren Teil der Wohnung. Es hat einen großzügigen Schnitt und bietet Platz für einen Ess- und einen Wohnbereich. Zudem hat man von hier Zugang zu der großen Dachterrasse.

Das Schlafzimmer
Das Schlafzimmer bietet nicht nur Platz für ein großes Bett sondern auch für einen großen Kleiderschrank über die gesamte Tiefe des Raumes.

Die Schlafzimmer
Die weiteren zwei Zimmer haben eine ähnliche Größe und eigenen sich ideal als Arbeits-, Gäste- oder Kinderzimmer.

Das Badezimmer
Das Badezimmer ist hell gefliest und einladend groß. Es hat nicht nur eine barrierearme Dusche, sondern auch ein WC und Platz für einen großen Waschtisch.

Der Hauswirtschafts- und Abstellraum
Im Hauswirtschaftsraum ist die Technik untergebracht. Hier haben Sie zudem noch ausreichend Platz für Ihre Waschmaschine, Ihren Trockner und Staufläche.

Merkmale

  • Garten
  • Terrasse
  • Badezimmer: Bad mit Dusche, Bad mit Fenster
Haustechnik
Die Wohnung wird durch eine moderne Wärmepumpe beheizt, dessen Wärme über die Fußbodenheizung verteilt wird.

Es wird eine hocheffiziente Abluftwärmepumpe mit kombinierter Lüftungsanlage verbaut, welche nur Ihre Wohnung versorgt. So sind sie in Ihrer Wohnung unabhängig.
Neben der Wärmepumpe und der Lüftungsanlage ist die Wohnung mit weiterer hochwertiger Komforttechnik wie elektrischen Rollläden und LAN ausgestattet.
Die Stromversorgung wird durch über eine moderne Photovoltaikanlage sichergestellt.

Die Stellplätze sind elektrisch bereits für eine Lademöglichkeit vorbereitet, sodass Sie die Wallbox Ihrer Wahl lediglich anschließen lassen müssen.

Zustand
Das Haus ist derzeit in der Planung.
Bei der Planung wurde darauf geachtet, ein hocheffizientes, lichtdurchflutetes Gebäude zu errichten.
Die Wohnung wird schlüsselfertig übergeben. Das bedeutet, dass Bodenbeläge, Wände und die Sanitärobjekte sowie Armaturen bereits installiert und in Betrieb genommen sein werden.
Aktuell kann auf die Details in der Ausführung noch Einfluss genommen werden, sodass Sie Ihr Zuhause Ihren individuellen Wünschen anpassen können.

Ausstattung (Auszug)
Bodenbeläge
Der Hauswirtschaftsraum-, Technik- und oder Heizungsraum werden mit modernen Fliesen ausgestattet. Wand- und Bodenfliesen werden optisch aufeinander abgestimmt.
Die Böden in den nicht gefliesten Bereichen werden mit Vinyl ausgelegt. Alternative Bodenbeläge sind gegen Aufpreis möglich.

Badezimmer
Das Badezimmer und das Gäste-WC werden wie folgt ausgestattet:
Das Badezimmer ist mit modernen Sanitärobjekten und Armaturen namenhafter Hersteller ausgestattet. Das Highlight ist die ebenerdige Walk-In Dusche.
Derzeit können Sie noch auf die Details (Bodenbeläge, Wände, Badausstattung etc.) noch Einfluss nehmen und die Wohnung nach Ihren Vorstellungen gestalten. Bitte sprechen Sie uns dazu einfach an.

Grundrisse

Grundrisse
1 / 1

Realisiere Dein Projekt

Bausubstanz und Energie

Der Anbieter hat keine Informationen zum Energieverbrauch bereit gestellt.
  • Baujahr2026
Immowelt logo

Preisdetails

Kaufpreis
376000 €
4.251,47 €/m²
Provision für Käufer
provisionsfrei
Geschätzte Gesamtkosten
402.320 €1
Kaufpreis
376.000 €
Notarkosten (1,5%)
5.640 €
Grunderwerbsteuer (5%)
18.800 €
Grundbucheintrag (0,5%)
1.880 €
1Der angezeigte Wert ist eine automatisch berechnete Schätzung von immowelt.
2Bei den Angaben handelt es sich um ortsübliche Werte. Individuelle Kosten können abweichen.

Lage

address-icon
Ihme-RolovenRonnenberg (30952)
Der Anbieter hat die genaue Adresse nicht freigegeben
Die Wohnung befindet sich im Ortsteil Ihme-Roloven der Stadt Ronnenberg. Ihme-Roloven ist besonders wegen seiner ruhigen, naturnahen Lage sowie der guten Anbindung an Hannover und die umliegenden Orte sehr beliebt. Der Ortsteil verbindet dörflichen Charme mit der Nähe zur Landeshauptstadt und genießt einen guten Ruf im westlichen Umland von Hannover.

Die Verkehrsanbindung
Ihme-Roloven liegt südwestlich von Hannover und ist sowohl mit dem Auto als auch mit öffentlichen Verkehrsmitteln gut erreichbar.
Über die B217 sowie die nahegelegenen Landstraßen ist man schnell in Ronnenberg, Gehrden, Hemmingen und in der Innenstadt von Hannover.
Mit den Buslinien in der Umgebung erreicht man die Stadt Ronnenberg sowie die Anbindungspunkte an die Stadtbahn und den Hauptbahnhof Hannover. Die Fahrzeit in die Innenstadt von Hannover beträgt je nach Verbindung ca. 30 bis 40 Minuten.


Die Mikrolage
Das Haus befindet sich in einer ruhigen Straße innerhalb eines gewachsenen Wohngebietes.
Die Umgebung ist geprägt von Einfamilienhäusern, kleineren Mehrfamilienhäusern und viel Grün. Die Lage eignet sich besonders für Menschen, die ruhig wohnen und dennoch eine gute Anbindung an die Stadt schätzen.

Einrichtungen des täglichen Bedarfs und Freizeitangebote
Einkaufsmöglichkeiten, Bäckereien, Restaurants, Ärzte und Apotheken befinden sich im nahegelegenen Ronnenberg sowie in den umliegenden Ortsteilen und sind mit dem Auto oder Bus schnell erreichbar.
In der Umgebung laden Felder, Spazierwege und Radstrecken entlang der Ihme zu vielfältigen Freizeitaktivitäten ein. Sportvereine, Fitnessangebote sowie weitere Freizeitmöglichkeiten befinden sich ebenfalls in Ronnenberg und Gehrden.
Kitas, Kindergärten und Schulen sind in den angrenzenden Ortsteilen vorhanden und gut erreichbar.

Weitere Informationen

Sonstiges Bitte haben Sie Verständnis dafür, dass wir nur vollständige Anfragen beantworten können. Bitte teilen Sie uns bei Ihrer Anfrage daher Ihren vollständigen Namen, Ihre Anschrift, eine E-Mail-Adresse sowie eine Telefonnummer mit.

Eine Besichtigung ist jederzeit nach vorheriger Terminvereinbarung möglich.
Alle Angaben basieren auf Aussage und Information des Verkäufers. Eine Haftung für die Richtigkeit dieser Angaben können wir daher nicht übernehmen.

Die Visualisierungen wurden mit Hilfe von KI erstellt und dienen lediglich der Veranschaulichung.


Michel Runge Immobilien ist Ihr Partner rund um Immobilien.
Sie wollen verkaufen oder vermieten? Sie sind auf der Suche nach Ihrer Traumimmobilie? Sie möchten wissen, wie Ihr Haus oder Ihr Investment aktuell bewertet wird?

Wir stehen Ihnen mit Fachwissen und Motivation zur Seite. Gemeinsam entwickeln wir die optimale Strategie für Sie, sodass Sie entspannt Ihr Ziel erreichen. Stichworte Stellplatz vorhanden, Anzahl der Schlafzimmer: 1, Anzahl der Badezimmer: 1, Anzahl der separaten WCs: 1, Anzahl Terrassen: 1

Weitere Services

Lust auf eine Besichtigung?
Eine Frage zur Immobilie?
Nachricht hinzufügen
Mit der Nutzung der oben angegebenen Telefonnummer oder durch Klicken auf „Kontaktieren“ akzeptierst Du die Allgemeinen Nutzungsbedingungen, denen Du jederzeit widersprechen kannst. Weitere Informationen zum Datenschutz

Über den Anbieter

Hauptstraße 7, 30974 Wennigsen
partner badge
Partnerschaft
Herr Michel Runge
Herr Michel RungeDein Kontakt
Online-ID: 2nvd35j
Referenznummer: 132898533#i3Y7M
Michel Runge Immobilien
title
Michel Runge Immobilien
Bewertung: 4,5 von 5 Sternen
Nachricht hinzufügen
Mit der Nutzung der oben angegebenen Telefonnummer oder durch Klicken auf „Kontaktieren“ akzeptierst Du die Allgemeinen Nutzungsbedingungen, denen Du jederzeit widersprechen kannst. Weitere Informationen zum Datenschutz
Wie zufrieden bist du mit dieser Seite (nicht mit der Immobilie selbst)?