Reichertshofen! 2-ZKB DG-Whg. mit 11 m² Süd-Balkon, FBH, elektr. Rollläden, Videosprech., Keller!
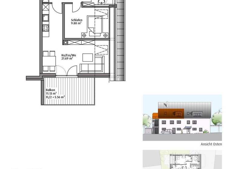
Bei der angebotenen Wohnung handelt es sich um eine 2-Zimmer Dachgeschoss-Wohnung (2. Stock), mit einem ca. 11,13 m² großen Süd-Balkon.
Die Bauausführung erfolgt in massiver Ziegelbauweise mit Wärmedämmverbundsystem, sowie 3fach verglasten Fenstern. Beheizt wird die Wohnanlage mit einer Wärmepumpe.
Der Baubeginn ist für Frühjahr 2026 vorgesehen, die Fertigstellung wird ca. Ende 2027 erfolgen.
Auf dem Grundstück entstehen zwei Mehrfamilienhäuser mit insgesamt 17 Wohneinheiten.
Auf Wunsch erhalten Sie gerne das Gesamtexposé inkl. Baubeschreibung und Preisliste.
Energieausweis: Der Energieausweis wird gerade erstellt und liegt zur Besichtigung vor.
Merkmale
Bezug: Ende 2027
Dachgeschoss, 2. Geschoss
Personenaufzug
Badezimmer: Bad mit Dusche, Bad mit Fenster
Keller
Bodenbelag: Fliesen, Parkett
Balkon
Carport
- Aufzug - Balkon nach Süden ausgerichtet, mit ca. 11 m² Grundfläche - Fußbodenheizung mit Raumthermostaten - Elektrische Rollläden - Videosprechanlage - Bodengleich geflieste Dusche im Bad - Hochwertiger Waschtisch mit Vigour-Designunterschrank (Model Clivia in verschiedenen Farbvarianten) - Bad mit Fenster - Echtholzböden und hochwertige Fliesen - Keller - Speicher über der Wohnung - Waschmaschinenanschluss im eigenen Keller
Grundrisse
Grundrisse
1 / 4
Bausubstanz und Energie
Möchtest du Details zum Energieverbrauch?
Baujahr2026
Zustand der ImmobilieErstbezug
EnergieträgerElektro
Preisdetails
Kaufpreis
259000 €259.000 €
5.428,63 €/m²
Preis pro Stellplatz
17000 €17.000 €
Provision für Käufer
provisionsfrei
Weitere Preisinformationen
1 Carportplatz, Kaufpreis: 17.000,00 EUR
Geschätzte Gesamtkosten
273.245 €1
Kaufpreis
259.000 €
Kaufnebenkosten
14.245 €
2
Notarkosten (1,5%)
3.885 €
Grunderwerbsteuer (3,5%)
9.065 €
Grundbucheintrag (0,5%)
1.295 €
1Der angezeigte Wert ist eine automatisch berechnete Schätzung von immowelt.
2Bei den Angaben handelt es sich um ortsübliche Werte. Individuelle Kosten können abweichen.
Lage
Johannisstraße 14, Reichertshofen (85084)
Sehr ruhige und sehr zentrale Lage in der Johannisstraße 14 in Reichertshofen.
Weitere Informationen
Sonstiges
Rechtlicher Hinweis Dieses Exposé ist eine Vorabinformation. Vorstehende Angaben beruhen auf Auskünften der Eigentümer oder Bauträger, wir übernehmen hierfür sowie für Tippfehler keine Haftung! Ein Rechtsverbindlicher Kaufvertrag kommt nur durch notarielle Beurkundung zustande. Die Kaufnebenkosten errechnen sich aus dem beurkundeten Kaufpreis.
Energiepass
Energieausweis wird bei Besichtigung vorgelegt.
Stichworte
Carport vorhanden, Nutzfläche: 57,36 m², Anzahl der Schlafzimmer: 1, Anzahl der Badezimmer: 1, Anzahl Balkone: 1, Balkon-Terrassen-Fläche: 11,13 m², Bundesland: Bayern, 2 Etagen