Diese hochwertige Erdgeschosswohnung befindet sich in einem massiv errichteten Mehrfamilienhaus in der Steverstraße 17 in Nottuln. Das Gebäude wurde im Rahmen einer umfassenden Effizienzhaussanierung energetisch auf den Standard Effizienzhaus 55 EE gebracht und verbindet zeitgemäßen Wohnkomfort mit nachhaltiger Bauweise.
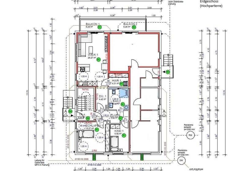
Die Wohnung bietet eine durchdachte Raumaufteilung mit drei Zimmern, bestehend aus einem großzügigen Wohnbereich sowie zwei weiteren flexibel nutzbaren Räumen, die sich ideal als Schlaf-, Kinder- oder Arbeitszimmer eignen. Ein modernes Badezimmer rundet das Raumangebot ab. Die Wohnfläche beträgt 72,80 m² und wird durch eine Balkonfläche von 6,29 m² sinnvoll ergänzt, die einen angenehmen Rückzugsort im Freien bietet.
Im Zuge der Sanierung wurde besonderer Wert auf eine hochwertige Gebäudehülle gelegt. Die Außenfassade ist wärmegedämmt und verputzt, die Fenster sind dreifach verglast. Die Beheizung sowie die Warmwasserbereitung erfolgen über eine Wärmepumpe auf Basis erneuerbarer Energien, ausgelegt als energieeffizientes Niedertemperatursystem. Ergänzend sorgt eine kontrollierte Wohnraumlüftung für ein angenehmes Raumklima und unterstützt die hohe Energieeffizienz des Gebäudes.
Zur Wohnung gehört ein separater Kellerraum mit einer Fläche von 3,92 m², der zusätzlichen Stauraum bietet. Ein Stellplatz ist ebenfalls vorhanden. Die gemeinschaftlich nutzbaren Außenanlagen umfassen gepflegte Grünflächen, einen Fahrradschuppen sowie eine Kinderspielfläche und unterstreichen den wohnlichen Charakter des gesamten Grundstücks.
Diese Wohnung eignet sich sowohl für Eigennutzer, die Wert auf energieeffizientes und komfortables Wohnen legen, als auch für Kapitalanleger, die ein nachhaltig saniertes Objekt in gefragter Lage suchen.
Merkmale
Erdgeschoss
als Ferienimmobilie geeignet
Bad mit Dusche
Keller
Balkon
Außen-Stellplatz
- Vorderes Haus Nr. 17 | | Effizienzhaus 55 EE -
Effizienzhaus 55 EE
Wohnungsnummer: 1 Geschoss: Erdgeschoss Zimmeranzahl: 3 Zimmer Anzahl Badezimmer: 1 Wohnfläche: 72,80 m² Balkonfläche: 6,29 m² Kellerraumfläche: 3,92 m² Stellplatz: vorhanden
- Gebäude & Technik -
Massiv errichtetes Gebäude mit moderner, wärmegedämmter und verputzter Außenfassade. Kernsanierung gemäß Effizienzhaus 55 EE Wärmeerzeugung auf Basis erneuerbarer Energien Wärmepumpe Fußbodenheizung Niedrige Vorlauftemperaturen Hochwärmegedämmte Gebäudehülle Wärmebrückenminimierte Bauweise 3-fach verglaste Fenster Luftdichte Gebäudehülle Kontrollierte Wohnraumlüftung
- Außenanlagen & Gemeinschaft -
Installation von E-Ladesäulen dank vorhandener Vorbereitung problemlos möglich durch den neuen Eigentümer Gemeinschaftsflächen Fahrradschuppen Kinderspielfläche im Außenbereich
Grundrisse
Grundrisse
1 / 4
Bausubstanz und Energie
Möchtest du Details zum Energieverbrauch?
Baujahr2026
Zustand der Immobilierenoviert / saniert
EnergieträgerLuft-/Wasser-Wärmepumpe
Preisdetails
Kaufpreis
327600 €327.600 €
4.500 €/m²
Provision für Käufer
provisionsfrei
Weitere Preisinformationen
1 Stellplatz
Geschätzte Gesamtkosten
355.446 €1
Kaufpreis
327.600 €
Kaufnebenkosten
27.846 €
2
Notarkosten (1,5%)
4.914 €
Grunderwerbsteuer (6,5%)
21.294 €
Grundbucheintrag (0,5%)
1.638 €
1Der angezeigte Wert ist eine automatisch berechnete Schätzung von immowelt.
2Bei den Angaben handelt es sich um ortsübliche Werte. Individuelle Kosten können abweichen.
Lage
Appelhülsen, Nottuln (48301)
Der Anbieter hat die genaue Adresse nicht freigegeben
Die Immobilie befindet sich in Appelhülsen, einer Gemeinde im Münsterland mit sehr guter Verkehrsanbindung und gewachsener Infrastruktur. Die Lage eignet sich gleichermaßen für Pendler, Eigennutzer und Kapitalanleger.
Ein wesentlicher Standortvorteil ist die Nähe zum Bahnhof Appelhülsen, der bequem und fußläufig zu erreichbar ist. Von hier bestehen regelmäßige Zugverbindungen in Richtung Münster sowie zu weiteren regionalen Zielen. Die Innenstadt von Münster ist damit zügig und unkompliziert erreichbar, was insbesondere für Berufspendler und Studierende attraktiv ist.
Auch die Anbindung an den Individualverkehr ist sehr gut. Über die nahegelegene Autobahn A43 besteht eine schnelle Verbindung sowohl in Richtung Münster als auch in Richtung Ruhrgebiet.
Appelhülsen verfügt über eine solide Infrastruktur mit Einkaufsmöglichkeiten für den täglichen Bedarf, Kindergärten, Schulen und medizinischer Versorgung. Ergänzt wird dies durch das grüne Umland des Münsterlandes mit vielfältigen Freizeit- und Erholungsmöglichkeiten, Radwegen und Naherholungsflächen.
Die Lage überzeugt insgesamt durch die Kombination aus ruhigem Wohnen, guter ÖPNV-Anbindung und kurzen Wegen zu den wirtschaftlich starken Regionen Münster und Ruhrgebiet.
Weitere Informationen
Sonstiges
Wir bieten nicht nur eine kostenlose Hotline, sondern auch einen Service am Wochenende. Bei Interesse geben Sie bitte immer Ihre vollständigen Kontaktdaten an.
Die Objektbeschreibung beruht ganz oder zum Teil auf Angaben des Eigentümers. Für die Richtigkeit oder Vollständigkeit übernehmen wir keine Gewähr.
Sie wollen Ihre Immobilie ebenfalls professionell vermarkten, rufen Sie uns an, wir stehen Ihnen von Mo. bis So. von 6.00 - 22.00h persönlich zur Seite! Über 40.000 aktive Interessenten warten bereits auf Sie.
HINWEIS: Die gezeigten Darstellungen sind unverbindliche computergenerierte Visualisierungen eines noch nicht vollständig fertiggestellten Bauvorhabens. Sie dienen ausschließlich der Illustration des geplanten Endzustands. Der tatsächliche Ausführungszustand kann insbesondere hinsichtlich Gestaltung, Materialien, Farbgebung, Ausstattung sowie baulicher Details vom dargestellten Konzept abweichen.