Version: 8.25.1Navigation überspringen
750.000 €
6 Zimmer  •  263 m²  •  frei ab sofort
Immowelt logo

Haus zum Kauf
750000 €
2.852 €/m²
6 Zimmer  •  263 m²  •  frei ab sofort

Großzügiges Reiheneckhaus im Zentrum

Merkmale

  • Einbauküche
  • 2 Stellplätze: Garage
  • Gäste-WC
  • Balkon
  • Garten
  • Terrasse
  • Fernblick

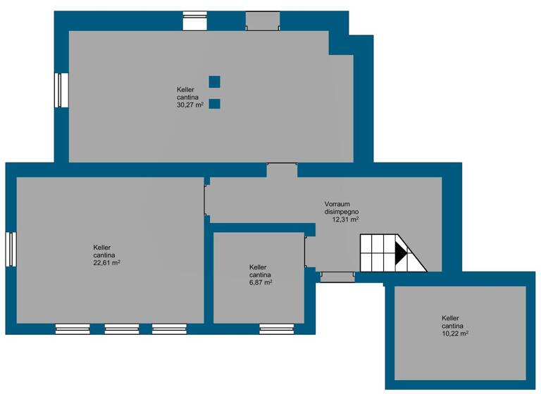
Grundrisse

Grundrisse
1 / 4

Realisiere Dein Projekt

Bausubstanz und Energie

Möchtest du Details zum Energieverbrauch?info_energy_calculation-icon
  • Baujahr1980
  • Zustand der Immobilierenovierungsbedürftig / sanierungsbedürftig
  • HeizungsartEtagenheizung
Immowelt logo

Preisdetails

Kaufpreis
750000 €
2.851,71 €/m²
Provision für Käufer
3% + MwSt.

Lage

address-icon
Montan
Der Anbieter hat die genaue Adresse nicht freigegeben

Weitere Informationen

Großzügiges Reiheneckhaus Dieses große Reiheneckhaus bietet nicht nur eine begehrte Lage in ruhiger Lage im Zentrum, sondern auch zahlreiche Gestaltungsmöglichkeiten für kreative Köpfe und Investoren.
Die Immobilie überzeugt durch eine großzügige Grundstruktur mit vielseitigem Nutzungspotenzial – ideal für Familien, Mehrgenerationenhaushalte oder zur Realisierung von zwei separaten Wohneinheiten.
Das Haus befindet sich in einem sanierungsbedürftigen Zustand, was dem künftigen Eigentümer die Möglichkeit bietet, alle Wohnbereiche individuell und nach modernen Standards zu gestalten. Ob offene Grundrisse, hochwertige Bäder oder stilvolle Wohnküchen – hier können Sie Ihre Vision verwirklichen und das Gebäude nach Ihren Vorstellungen neu beleben. Ein besonderes Highlight ist das Dachgeschoss, das derzeit ungenutzt ist, sich jedoch hervorragend für den Ausbau zu zusätzlichem Wohnraum eignet. Mit dem richtigen Konzept lassen sich hier weitere Schlafzimmer, ein Arbeitszimmer oder sogar eine Wohnung realisieren. Zusätzlich verfügt das Haus über mehrere Kellerräume, die ausreichend Platz für Lagerung, Hobby oder Werkstatt bieten – ergänzt werden diese Räume durch eine eigene Garage, die bequemes und sicheres Parken ermöglicht.
Der Garten rundet das Angebot ab: Er lädt zum Entspannen und Genießen ein und bietet dank der erhöhten Lage eine wunderschöne Aussicht. Hier lassen sich gemütliche Stunden im Grünen verbringen – sei es beim Grillen, Gärtnern oder einfach zum Verweilen.
Trotz der ruhigen Umgebung profitieren Sie von einer zentralen Lage mit guter Anbindung an alle wichtigen Einrichtungen des täglichen Bedarfs. Einkaufsmöglichkeiten sowie öffentliche Verkehrsmittel sind bequem zu Fuß erreichbar.
Mit der nötigen Sanierung lässt sich hier ein wahres Wohnjuwel schaffen – ob zur Eigennutzung oder als attraktives Investitionsobjekt. Stichworte Versorgung: Städtische Wasserversorgung, Städtische Stromversorgung

Weitere Services

Lust auf eine Besichtigung?
Eine Frage zur Immobilie?
Nachricht hinzufügen
Mit der Nutzung der oben angegebenen Telefonnummer oder durch Klicken auf „Kontaktieren“ akzeptierst Du die Allgemeinen Nutzungsbedingungen, denen Du jederzeit widersprechen kannst. Weitere Informationen zum Datenschutz

Über den Anbieter

Innsbrucker Straße 29, 39100 BOZEN
Herr Rimmo Real EstateDein Kontakt
Online-ID: 25PNVHPUYGZI
Referenznummer: R06461MOER
Rimmo Immobilien
Rimmo Immobilien
Nachricht hinzufügen
Mit der Nutzung der oben angegebenen Telefonnummer oder durch Klicken auf „Kontaktieren“ akzeptierst Du die Allgemeinen Nutzungsbedingungen, denen Du jederzeit widersprechen kannst. Weitere Informationen zum Datenschutz
Wie zufrieden bist du mit dieser Seite (nicht mit der Immobilie selbst)?