Version: 8.26.0Navigation überspringen
Wohnsitz LE GmbH
135.000 €
2 Zimmer  •  66,1 m²

Wohnung zum Kauf
135000 €
2.044 €/m²
2 Zimmer  •  66,1 m²

Gepflegte Eigentumswohnung mit zwei Balkonen und Stellplatz in Leipzig-Liebertwolkwitz

Die angebotene Eigentumswohnung befindet sich in einem im Jahr 1994 errichteten Mehrfamilienhaus mit gewachsener Eigentümerstruktur in Leipzig-Liebertwolkwitz.

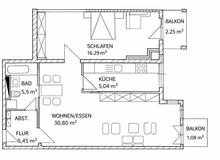
Mit einer Wohnfläche von ca. 66 m² überzeugt die Einheit durch eine funktionale Raumaufteilung. Die Wohnung verfügt über ein Wohnzimmer, ein Schlafzimmer, eine separate Küche, ein Badezimmer sowie einen Flur.

Vom Eingangsbereich aus sind das Badezimmer sowie der Wohnbereich direkt erreichbar. Das Wohnzimmer ist großzügig geschnitten und bietet durch seine offene Gestaltung einen angenehmen Übergang zur Küche. Von hier aus besteht Zugang zu einem der beiden Balkone.
Das Schlafzimmer ist ruhig gelegen und bietet ausreichend Platz für ein Bett sowie einen Kleiderschrank. Ein weiterer Balkon ist direkt von diesem Raum aus zugänglich und erweitert die Nutzungsmöglichkeiten im Außenbereich.

Das Badezimmer ist gefliest und mit einer Duschbadewanne ausgestattet. Auch die Küche verfügt über einen Fliesenboden.

Ergänzt wird das Angebot durch ein eigenes Kellerabteil sowie einen Duplex-Stellplatz.

Insgesamt handelt es sich um eine gepflegte Wohnung mit durchdachter Struktur, die sich sowohl für Eigennutzer als auch für Kapitalanleger eignet.

Merkmale

  • vermietet
  • Bodenbelag: Laminat
  • Kabelanschluss
Gepflegte Eigentumswohnung mit zwei Balkonen und Stellplatz in Leipzig-Liebertwolkwitz

- Eigentumswohnung in Leipzig-Liebertwolkwitz
- Baujahr: 1994
- ca. 66 m² Wohnfläche
- Wohnzimmer, Schlafzimmer, Küche, Bad und Flur
- Großzügiger Wohnbereich mit Zugang zum Balkon
- Schlafzimmer mit Zugang zum zweiten Balkon
- Bad gefliest mit Duschbadewanne
- zugeordneter Kellerabteil
- Duplexparkplatz

Grundrisse

Grundrisse
1 / 1

Bausubstanz und Energie

Energieausweis

C
  • Baujahr1994
  • Zustand der ImmobilieMassivhaus, Gepflegt
  • HeizungsartZentralheizung
MediumRectangleTop

Preisdetails

Kaufpreis
135000 €
2.043,60 €/m²
Provision für Käufer
3,57 % inkl. 19% MwSt.
Weitere Preisinformationen
Ist-Mieteinnahmen pro Jahr: 4.918,20 EUR
Geschätzte Gesamtkosten
149.944 €1
Kaufpreis
135.000 €
Notarkosten (1,5%)
2.025 €
Grunderwerbsteuer (5,5%)
7.425 €
Provision für Käufer (3,57%)
4.819 €
Grundbucheintrag (0,5%)
675 €
1Der angezeigte Wert ist eine automatisch berechnete Schätzung von immowelt.
2Bei den Angaben handelt es sich um ortsübliche Werte. Individuelle Kosten können abweichen.

Lage

address-icon
LiebertwolkwitzLeipzig (04288)
Der Anbieter hat die genaue Adresse nicht freigegeben
Die Wohnung befindet sich in ruhiger Siedlungslage im Leipziger Stadtteil Liebertwolkwitz. Das Leipziger Zentrum ist mit dem Auto in etwa 25 Minuten erreichbar.

Auch der öffentliche Nahverkehr ist gut angebunden: Von der Haltestelle Leipzig-Liebertwolkwitz gelangt man innerhalb von rund 30 Minuten in die Innenstadt.

Einrichtungen des täglichen Bedarfs wie Einkaufsmöglichkeiten, Ärzte, Apotheken, Banken und Restaurants befinden sich im näheren Umfeld und sind teilweise fußläufig erreichbar. Der Globus-Markt ist in etwa 5 Minuten mit dem Auto erreichbar.

Für Erholung im Grünen bietet die Lage einen zusätzlichen Mehrwert: Der Markkleeberger See ist nur etwa 10 Minuten entfernt. Zudem prägen zahlreiche Grünflächen und Naherholungsgebiete die Umgebung.

Weitere Informationen

Sonstiges Es liegt ein Energieverbrauchsausweis vor.
Dieser ist gültig bis 24.11.2028.
Endenergieverbrauch beträgt 98.30 kwh/(m²*a).
Wesentlicher Energieträger der Heizung ist Erdgas schwer.
Das Baujahr des Objekts lt. Energieausweis ist 1994.
Die Energieeffizienzklasse ist C. Stichworte Tiefgarage vorhanden, Anzahl der Schlafzimmer: 1, Anzahl der Badezimmer: 1, 4 Etagen

Weitere Services

Lust auf eine Besichtigung?
Eine Frage zur Immobilie?
Nachricht hinzufügen
Mit der Nutzung der oben angegebenen Telefonnummer oder durch Klicken auf „Kontaktieren“ akzeptierst Du die Allgemeinen Nutzungsbedingungen, denen Du jederzeit widersprechen kannst. Weitere Informationen zum Datenschutz

Über den Anbieter

Lauchstädter Str. 51, 04229 Leipzig
partner badge
Partnerschaft
Frau Dorothee StükerDein Kontakt
Online-ID: 24KZURT6JZFC
Referenznummer: 752-1
MediumRectangleTop
Wie zufrieden bist du mit dieser Seite (nicht mit der Immobilie selbst)?