
OstseeSparkasse Rostock
Frau Anke Goldbecher
038 ···
Nr. anzeigenPreise & Kosten
Provision für Käufer
2,38 % inkl. MwSt.
Lage
Sanitz, eine Gemeinde im Landkreis Rostock in Mecklenburg-Vorpommern, liegt etwa 20 Kilometer östlich der Hansestadt Rostock. Mit einer günstigen Lage in der reizvollen Landschaft zwischen den Hügeln der Mecklenburgischen Schweiz und den Küsten der Ostsee bietet Sanitz eine hervorragende Wohnqualität, die sowohl ländliche...
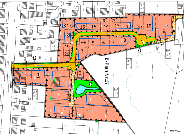
Das Grundstück
Details
Objektbeschreibung
Sie sind auf der Suche nach dem perfekten Baugrundstück an einem idyllischen Ort in der Nähe von Rostock? Dann hat Ihre Suche ein Ende. Die angebotenen Grundstücke liegen im Herzen von Sanitz und bestechen nicht nur durch die naturnahe Lage sondern auch durch die ausgezeichnete Anbindung an die Stadt.
Die...
Ausstattung
Sie suchen die passende Baufinanzierung?
Als regionales Institut kennen wir Rostock und die Umgebung wie unsere Westentasche. Vertrauen Sie auf die Erfahrung unserer Immobilienexperten und erfüllen Sie sich Ihren Wunsch vom eigenen Haus mit unserer OSPA Baufinanzierung:
- Ihre persönliche Ansprechpartnerin Frau...
Weitere Informationen
Sonstiges
Alle Angaben haben wir vom Auftraggeber erhalten. Für deren Richtigkeit können wir keine Gewähr übernehmen. Einen Zwischenverkauf behält sich der Auftraggeber/Verkäufer ausdrücklich vor.
Wir bitten um Verständnis, dass wir nur vollständige, schriftliche Anfragen (E-Mail, Fax, Brief) mit Namen, Anschrift...
Anbieter der Immobilie

OstseeSparkasse Rostock
Am Vögenteich 23, 18057 Rostock
Online-ID: 2kn5n58
Referenznummer: 450-289-12
Finde Angebote wie dieses
Hier geht es zu unserem Impressum, den Allgemeinen Geschäftsbedingungen, den Hinweisen zum Datenschutz und nutzungsbasierter Online-Werbung.