

Wohnung zum Kauf529000 €5.610 €/m²2 Zimmer • 94,3 m²
529000 €
5.610 €/m²
2 Zimmer • 94,3 m²
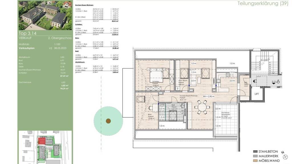
Frühlingstraße 30b: Exklusive 2-Zimmer-Dachgeschosswohnung, 3.14
Merkmale
- Dachgeschoss
- Personenaufzug
- Balkon
- Badezimmer: Bad mit Dusche, Bad mit Fenster
- Bodenbelag: Fliesen, Parkett
Grundrisse
Verschaffe dir einen genauen Überblick über die Raumaufteilung.

Realisiere Dein Projekt
Bausubstanz und Energie
Möchtest du Details zum Energieverbrauch?

- Zustand der ImmobilieNeubau, Massivhaus, neuwertig
- HeizungsartFußbodenheizung
- EnergieträgerFernwärme
Preisdetails
Kaufpreis
529000 €
5.610,35 €/m²
Provision für Käufer
Bitte beachte, das Angebot kann bei Vertragsabschluss die Zahlung einer Provision beinhalten. Weitere Informationen erhältst Du vom Anbieter.
Geschätzte Gesamtkosten
576.980 €1
Kaufpreis
529.000 €
Kaufnebenkosten
47.980 €
2Notarkosten (1,5%)
7.935 €
Grunderwerbsteuer (3,5%)
18.515 €
Provision für Käufer (3,57%)
18.885 €
Grundbucheintrag (0,5%)
2.645 €
1Der angezeigte Wert ist eine automatisch berechnete Schätzung von immowelt.
2Bei den Angaben handelt es sich um ortsübliche Werte. Individuelle Kosten können abweichen.
Lage

Frühlingstraße 30 a-c, Bad Reichenhall (83435)
Weitere Informationen
Weitere Services
Lust auf eine Besichtigung?
Eine Frage zur Immobilie?
Über den Anbieter
Krimpling 1, Wals Wals
Partnerschaft
Frau Christina LembergerDein Kontakt
Online-ID: 24IU6KYC1EIZ
Referenznummer: OBGC20240710152805147328754240c

Bau I Holz I Immobilien Hillebrand
Wie zufrieden bist du mit dieser Seite (nicht mit der Immobilie selbst)?

