Neubauwohnung im EG / 2 Zimmer / Garten / Stellplatz / modernes Wohnen mit Gestaltungsspielraum
In Velbert entsteht ein modernes, barrierearmes Mehrfamilienhaus mit insgesamt vier Wohneinheiten auf einem ca. 501 m² großen Grundstück in gefragter Wohnlage. Das Neubauprojekt überzeugt durch klare Architektur, hochwertige Bauweise und ein durchdachtes Wohnkonzept, das modernen Komfort mit energieeffizientem Wohnen verbindet.
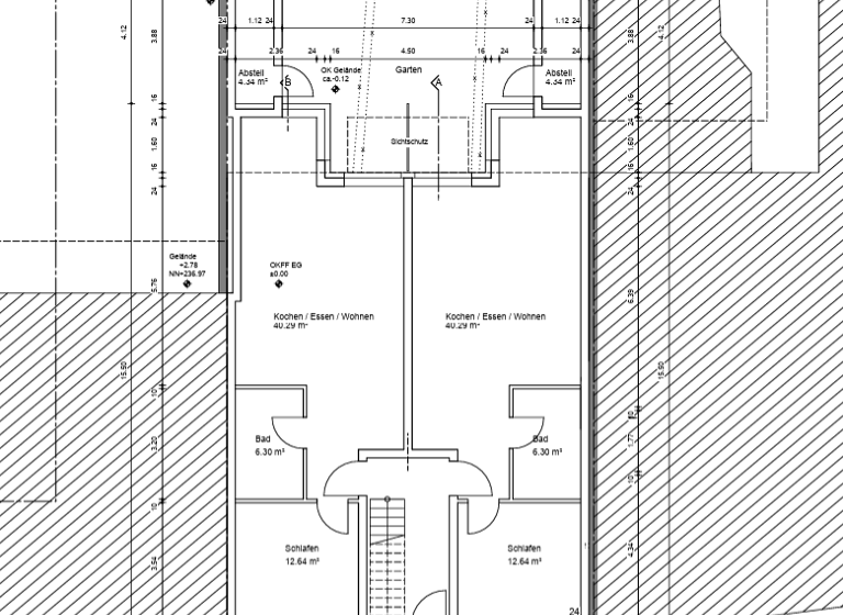
Beim Betreten der Wohnung im EG links, gelangen Sie zunächst in einen kleinen Eingangsbereich, von dem aus Sie direkt in die zentralen Räume des Grundrisses geführt werden. Gleich rechts öffnet sich der Zugang zum Schlafzimmer. Dieser gut geschnittene Raum mit bietet Platz für ein großes Bett sowie zusätzliche Schränke und wirkt durch seinen klaren Zuschnitt angenehm ruhig und privat.
Nur wenige Schritte weiter befindet sich der Zugang zum Bad, das großzügig dimensioniert ist. Hier finden Sie ausreichend Raum für eine komfortable Badezimmergestaltung - mit genügend Platz für Waschtisch, Dusche und weitere Ausstattung.
Weiter geradeaus öffnet sich der Wohnbereich - das Herzstück dieser Wohnung. Der großzügige Raum "Kochen / Essen / Wohnen" mit 40,29 m² empfängt Sie mit einem offenen Grundriss, der ein modernes Wohngefühl vermittelt. Die Küche lässt sich harmonisch in den Ess- und Wohnbereich integrieren, sodass Sie hier kochen, essen und entspannen können, ohne räumlich getrennt zu sein. Durch die Weitläufigkeit des Raumes ergeben sich zahlreiche Möglichkeiten für individuelle Möblierungsideen.
Am Ende des Wohnbereichs führt ein Ausgang in den angrenzenden Garten, der von einem Sichtschutzbereich begleitet wird und sich ideal für entspannte Stunden im Freien eignet.
Zusätzlich steht Ihnen ein Abstellraum zur Verfügung, der sich praktischerweise direkt vom Wohnbereich aus erreichen lässt - ideal für Vorräte, Haushaltsgeräte oder saisonale Gegenstände.
Zusätzlich stehen noch weitere Wohnungen im Haus zur Verfügung.
Merkmale
Bezug: 2027
1. Geschoss
4 Stellplätze: 4 Außen-Stellplätze
Garten
Barrierefrei
Badezimmer: Badewanne, Bad mit Dusche, Bad mit Fenster
Bodenbelag: Fliesen, Parkett, Laminat
offener Kamin
Grundrisse
Grundrisse
1 / 5
Realisiere Dein Projekt
Bausubstanz und Energie
Energieausweis
Ein Energieausweis ist für diesen Gebäudetyp nicht notwendig.
Baujahr2027
Zustand der ImmobilieErstbezug
Preisdetails
Kaufpreis
249000 €249.000 €
5.081,63 €/m²
Hausgeld
175 €175 €
Provision für Käufer
3,57 % inkl. MwSt.
Weitere Preisinformationen
4 Stellplätze
Geschätzte Gesamtkosten
279.054 €1
Kaufpreis
249.000 €
Kaufnebenkosten
30.054 €
2
Notarkosten (1,5%)
3.735 €
Grunderwerbsteuer (6,5%)
16.185 €
Provision für Käufer (3,57%)
8.889 €
Grundbucheintrag (0,5%)
1.245 €
1Der angezeigte Wert ist eine automatisch berechnete Schätzung von immowelt.
2Bei den Angaben handelt es sich um ortsübliche Werte. Individuelle Kosten können abweichen.
Lage
Mitte, Velbert (42549)
Der Anbieter hat die genaue Adresse nicht freigegeben
Das Grundstück befindet sich in einer gewachsenen Wohngegend mit überwiegend Ein- und Mehrfamilienhäusern. Durch die ruhige Lage in einer Nebenstraße genießen Sie ein hohes Maß an Privatsphäre, gleichzeitig profitieren Sie von der sehr guten Infrastruktur und Anbindung in die umliegenden Städte.
Velbert Mitte liegt im Städtedreieck Essen - Düsseldorf - Wuppertal und gehört zu den gefragten Wohnlagen des Bergischen Landes.
Die Birkenstraße befindet sich in einem gepflegten Wohngebiet mit angenehmer Nachbarschaft. Die Umgebung ist geprägt von Einfamilienhäusern, kleinen Mehrfamilienhäusern und viel Grün.
Einkauf & Versorgung: . Supermärkte (Rewe, Aldi, Lidl) sind in 5 Minuten mit dem Auto erreichbar. . Bäckereien und kleine Geschäfte für den täglichen Bedarf befinden sich im Umkreis von ca. 5 Gehminuten. . Die Velberter Innenstadt mit weiteren Einkaufsmöglichkeiten, Boutiquen und Cafés erreichen Sie in ca. 7 Minuten mit dem Auto.
Bildung & Betreuung: . Kita und Grundschule sind in 5-8 Minuten zu Fuß erreichbar. . Weiterführende Schulen (z. B. Gesamtschule Velbert, Berufskolleg Niederberg) befinden sich in ca. 10 Minuten Fahrtzeit.
Freizeit & Erholung: . Das PanoramaRadweg Niederbergbahn mit vielen Fahrrad- und Wanderwegen ist in ca. 5 Minuten erreichbar. . Das Schwimmbad "Nizzabad" liegt etwa 10 Minuten entfernt. . Der beliebte Baldeneysee in Essen ist mit dem Auto in ca. 25 Minuten erreichbar. . Kulturell Interessierte erreichen das Deutsche Schloss- und Beschlägemuseum in Velbert in ca. 10 Minuten.
Verkehrsanbindung: . Bushaltestellen mit Verbindungen in die Innenstadt und umliegende Stadtteile sind in ca. 3 Gehminuten erreichbar. . Die Autobahnen A44, A535 und A46 sind schnell angebunden: . Essen: ca. 20 Minuten mit dem Auto . Wuppertal: ca. 20 Minuten mit dem Auto . Düsseldorf: ca. 30 Minuten mit dem Auto
Damit ist das Grundstück sowohl für Familien als auch für Berufspendler attraktiv, die eine ruhige Wohnlage mit guter Infrastruktur suchen.
Weitere Informationen
Sonstiges
Die Angaben zu Größe, Bebaubarkeit und Bestand beruhen auf den Informationen des Eigentümers und dienen als Orientierung. Eine verbindliche Aussage zur möglichen Wohnfläche, Bauweise und zum Umgang mit dem Bestandsgebäude ist mit dem zuständigen Bauamt abzustimmen.
Darüber hinaus verfügen wir über angebundene Handwerker, die Ihre individuellen Wünsche gezielt umsetzen können - vom Rohbau bis zur finalen Innenausstattung. So erhalten Sie bei Bedarf alles aus einer Hand: Grundstück, Planung, Bau und Ausbau.
Stichworte
Stellplatz vorhanden, Gartenfläche: 230,00 m², Bundesland: Nordrhein-Westfalen, 3 Etagen, Distanz zum Flughafen: 14.77, Distanz zum Hauptbahnhof: 2.09, Distanz zum Bus: 5.34