Version: 8.25.1Navigation überspringen
535.000 €
3 Zimmer  •  59,5 m²  •  1. Geschoss
Immowelt logo

Wohnung zum Kauf
535000 €
8.990 €/m²
3 Zimmer  •  59,5 m²  •  1. Geschoss

URBAN ROOTS - 3 Zimmer auf rund 59m² - Topfloor mit Südterrasse

Wohnen mit Charakter - urban, naturnah und anspruchsvoll

Die charmante Wohnanlage mit nur zwölf Einheiten überzeugt durch eine markante Architektur, durchdachte Grundrisse und eine unvergleichliche Wohnatmosphäre. Sanft in einen Hang eingebettet, fügt sich das Gebäude harmonisch in die Umgebung ein. Dank der überwiegend südseitigen Ausrichtung, der herrlichen Aussicht und dem Wald im Rücken entsteht ein außergewöhnliches Lebensgefühl - eine perfekte Verbindung von Natur, Licht und modernem Wohnen. Diese Bauweise ermöglicht nicht nur innovative Raumkonzepte, sondern schafft auch ein geschütztes, beinahe geborgenes Wohnambiente - hochwertig gestaltet und mit viel Liebe zum Detail. Ein Ort, der Individualität und Privatsphäre auf besondere Weise vereint.

Riedergarten. Eine Klasse für sich.

. Kleine, moderne Wohnanlage

. Neubau - Erstbezug, Baubeginn voraussichtlich in Kürze

. Individuelle Grundrisse

. Deckenkühlung - inspiriert von der natürlichen Kühlwirkung der Bäume

. Fußbodenheizung für angenehme Wärme im ganzen Wohnraum

Alle verfügbaren Wohneinheiten zum Neubauprojekt finden Sie auf der Projektwebsite: https://riedergarten.at/urban-roots/

URBAN ROOTS - Ruhe die bleibt. Lage die wächst.

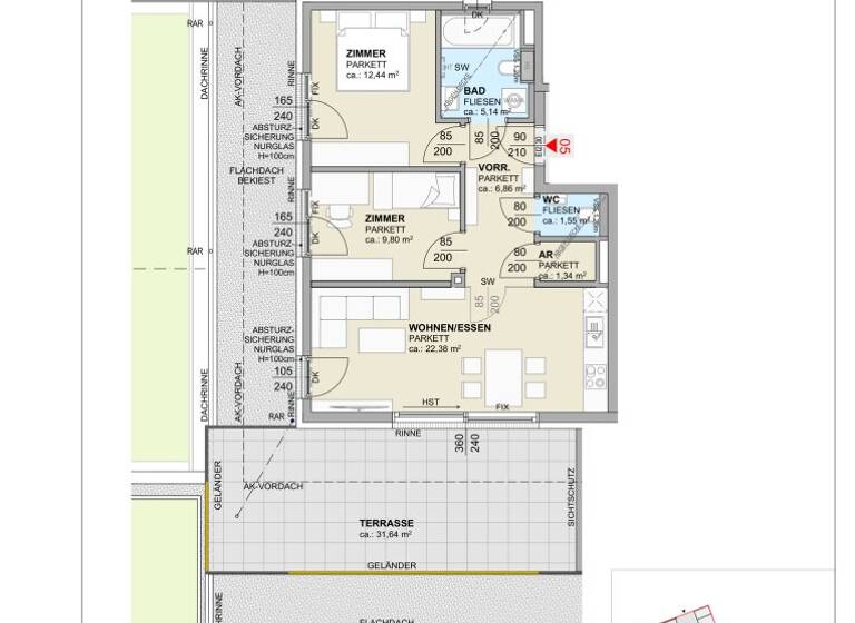
Die 3-Zimmer-Wohnung nutzt die kompakten rund 59m² optimal und schafft danke einer cleveren  Raumaufteilung ein Wohngefühl, das großzügiger wirkt, als es die reine Quadratmeterzahl vermuten lässt. Jeder Raum ist funktional gestaltet und bietet ausreichend Platz zum Wohnen und Entspannen. Die große Südterrasse erweitert den Wohnbereich ins Freie.

Merkmale

  • 1. Geschoss
  • Personenaufzug
  • 3 Stellplätze: 3 Garagen
  • Terrasse
  • Barrierefrei
  • Bodenbelag: Fliesen, Parkett

Grundrisse

Grundrisse
1 / 2

Realisiere Dein Projekt

Bausubstanz und Energie

Heizwärmebedarf (HWB)

C

Gesamtenergieeffizienz (fGEE)

  • Baujahr2025
  • Zustand der ImmobilieNeubau, Massivhaus
  • HeizungsartFußbodenheizung
  • EnergieträgerErdwärme
Immowelt logo

Preisdetails

Kaufpreis
535000 €
8.990,09 €/m²
Provision für Käufer
Bitte beachte, das Angebot kann bei Vertragsabschluss die Zahlung einer Provision beinhalten. Weitere Informationen erhältst Du vom Anbieter.
Weitere Preisinformationen
3 Garagenstellplätze

Lage

address-icon
KinkstraßeSt. MartinKlagenfurt am Wörthersee (9020)
Stadt & Natur - vereint am Fuße des Kreuzbergls.
Hier treffen zukunftsorientierter Wohnkomfort, naturnahe Lebensqualität und ganzjährige Erholung aufeinander: Die Nähe zur Stadt bietet alle Vorteile des urbanen Lebens, während der angrenzende Wald Raum für Bewegung und Entspannung im Grünen schafft. Der beliebte Wörthersee ist in Kürze erreichbar und wird im Sommer sowohl für eine schnelle Erfrischung im klaren Wasser als auch für ausgiebige Aufenthalte sehr geschätzt. Im Winter beeindruckt der See mit seiner malerischen Kulisse und lädt zu langen Spaziergängen entlang des Ufers ein.

Weitere Informationen

Stichworte Tiefgarage vorhanden, Anzahl Terrassen: 1, Balkon-Terrassen-Fläche: 31,64 m², Kellerfläche: 7,41 m², Bundesland: Kärnten, 2 Etagen

Weitere Services

Lust auf eine Besichtigung?
Eine Frage zur Immobilie?
Nachricht hinzufügen
Mit der Nutzung der oben angegebenen Telefonnummer oder durch Klicken auf „Kontaktieren“ akzeptierst Du die Allgemeinen Nutzungsbedingungen, denen Du jederzeit widersprechen kannst. Weitere Informationen zum Datenschutz

Über den Anbieter

Schleppe-Platz 8, 9020 Klagenfurt
Verkaufsteam KärntenDein Kontakt
Online-ID: 25W8DRZ36FGV
Referenznummer: OBGC20250721110707960cb09a2b192
Riedergarten Immobilien GmbH
Riedergarten Immobilien GmbH
Nachricht hinzufügen
Mit der Nutzung der oben angegebenen Telefonnummer oder durch Klicken auf „Kontaktieren“ akzeptierst Du die Allgemeinen Nutzungsbedingungen, denen Du jederzeit widersprechen kannst. Weitere Informationen zum Datenschutz
Wie zufrieden bist du mit dieser Seite (nicht mit der Immobilie selbst)?