

Wohnung zum Kauf560000 €6.460 €/m²4 Zimmer • 86,7 m² • 2. Geschoss
560000 €
6.460 €/m²
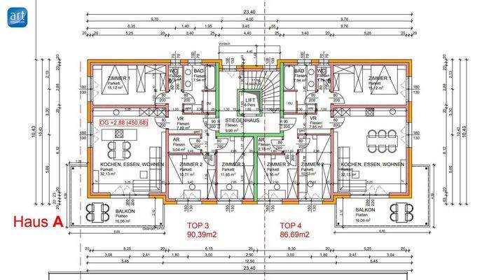
4 Zimmer • 86,7 m² • 2. Geschoss
Traumhafte 4-Zimmer-Wohnung mit Balkon & 2 Stellplätzen in Grödig!
Merkmale
- 2. Geschoss
- offene Küche
- Personenaufzug
- 2 Stellplätze: 2 Außen-Stellplätze
- Balkon
- Rollstuhlgerecht
- Bodenbelag: Marmor, Holzdielen
Grundrisse
Grundrisse
1 / 1
Realisiere Dein Projekt
Bausubstanz und Energie
Heizwärmebedarf (HWB)
B
Gesamtenergieeffizienz (fGEE)
A+
- Baujahr2018
- Zustand der Immobilieneuwertig
- HeizungsartFußbodenheizung
- EnergieträgerLuft-/Wasser-Wärmepumpe
Preisdetails
Kaufpreis
560000 €
6.459,80 €/m²
Provision für Käufer
3% des Kaufpreises zzgl. 20% USt.
Weitere Preisinformationen
2 Stellplätze
Lage

Grödig (5082)
Weitere Informationen
Weitere Services
Lust auf eine Besichtigung?
Eine Frage zur Immobilie?
Über den Anbieter
art immobilienMaklerbüro
Erzherzog Eugenstraße 14, 5020 SALZBURG
10 Jahre Partnerschaft
Herr Martin KatzlbergerDein Kontakt
Online-ID: 2ml325u
Referenznummer: OBGC202510210716180215e66b5c10b

art immobilien
Bewertung: 5 von 5 Sternen
Wie zufrieden bist du mit dieser Seite (nicht mit der Immobilie selbst)?

