
D&H GmbH
Herr Alfred Hofer
004 ···
Nr. anzeigenPreise & Kosten
Provision für Käufer
3% des Kaufpreises zzgl. 20% USt.
Lage
Salzburg Stadt, Gnigl
Das Haus
Kategorie
Reihenmittelhaus
Baujahr
1970
Bezug
nach Vereinbarung
Energie & Heizung
Warum sehe ich diese Anzeige? – Du siehst diese Anzeige basierend auf Ihrer Navigation auf unserer Website und den Suchkriterien, die du verwendet hast.
Heizwärmebedarf (HWB)
63,00 kWh/(m²·a)
Gesamtenergieeffizienz (fGEE)
1,20
Weitere Energiedaten
Energieträger
Öl
Heizungsart
Zentralheizung
Details
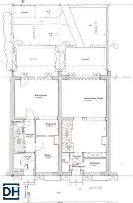
Objektbeschreibung
Das attraktive Gesamtkonzept bietet vielseitige Wohn- und Nutzungsmöglichkeiten - vom Mehrgenerationenwohnen über Arbeiten & Wohnen bis zur Kombination aus Eigennutzung und Vermietung.
Dieses außergewöhnliche Immobilienensemble besteht aus zwei direkt nebeneinanderliegenden Mittelreihenhäusern, die im...
Preisinformation
2 Stellplätze
Weitere Informationen
Stichworte
Stellplatz vorhanden, Süd-West-Balkon/Terrasse, Nutzfläche: 416,45 m², Anzahl der Badezimmer: 3, Anzahl der separaten WCs: 2, Anzahl Balkone: 2, Anzahl Terrassen: 2, Kellerfläche: 84,24 m², Bundesland: Salzburg, 4 Etagen, modernisiert: 2022
Anbieter der Immobilie
D&H GmbH
Bruckerfeldweg 2, 5071 WALS
Online-ID: 2mrum5j
Referenznummer: OBGC202511201133044564f5c6e60e8
Finde Angebote wie dieses
Günstige Immobilienfinanzierung einfach online berechnen
Persönliches Angebot berechnenWarum sehe ich diese Werbung? – Du siehst diese Werbung basierend auf Deiner Navigation auf unserer Website und der von Dir verwendeten Suchkriterien.
Diese Werbung wird bezahlt von durchblicker
Werbung melden
Hier geht es zu unserem Impressum, den Allgemeinen Geschäftsbedingungen, den Hinweisen zum Datenschutz und nutzungsbasierter Online-Werbung.