Version: 8.24.0Navigation ĂĽberspringen
335.310 €
2 Zimmer  â€˘  80,5 m²  â€˘  EG
Immowelt logo

Wohnung zum Kauf
335310 €
4.165 €/m²
2 Zimmer  â€˘  80,5 m²  â€˘  EG

Erdgeschosswohnung mit Sonnenterrasse nach neuster Energieeffizienz in Voxtrup!

Erleben Sie modernes Wohnen in dieser charmanten Drei-Zimmer-Eigentumswohnung! Dank der Kombination aus nachhaltigem und modernem Baukonzept und einem ansprechenden WohlfĂĽhlambiente wird sich hier ein jeder von Anfang an wie zu Hause fĂĽhlen.

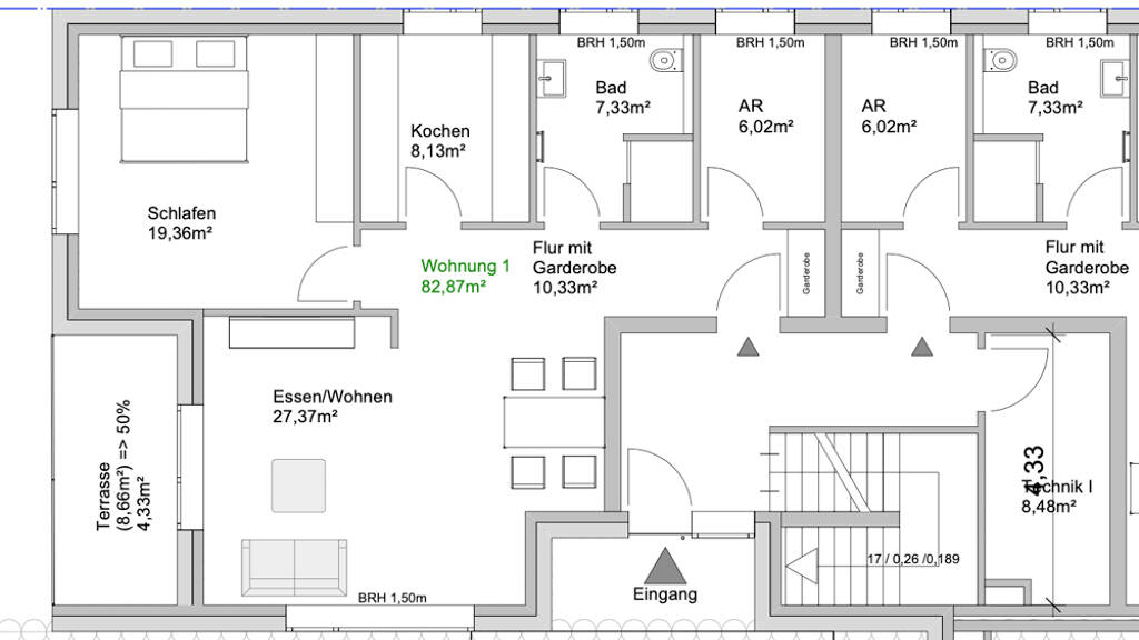
Die Wohnung bietet eine Wohnfläche von ca. 81 m² und befindet sich im Erdgeschoss eines 8-Parteien-Mehrfamilienhauses. Die Raumaufteilung bietet Ihnen ein Schlafzimmer, ein Tageslicht-Bad, einen offenen Wohn- und Essbereich, eine Küche und einen Abstellraum. Die Terrasse lädt zum Entspannen im Freien ein.

Für zusätzlichen Komfort sorgt ein eigener Stellplatz für zzgl. 15.000 € direkt vor dem Gebäude.
Das Gebäude wird nach neuesten Standards gebaut, was Ihnen ein energieeffizientes und nachhaltiges Zuhause bietet. Das spart nicht nur Ihre Nebenkosten, sondern schont auch Ihren Geldbeutel und die Umwelt. Dank des KfW-Förderprogramms profitieren Sie von einer zinsgünstigen Finanzierung, sodass Sie langfristig sparen können. Eine Investition in diese Wohnung ist somit nicht nur ein Gewinn für Sie, sondern auch für die Umwelt.

Kontaktieren Sie uns noch heute und vereinbaren Sie einen Beratungstermin. Wir freuen uns auf Sie!

Merkmale

  • Erdgeschoss
  • AuĂźen-Stellplatz
  • Terrasse
+++ Neubau auf modernstem KFW 40 Standard
+++ ca. 80,51 m² Wohnfläche
+++ 2 Zimmer
+++ Erdgeschoss
+++ Außenstellplatz (zzgl. 15.000 €)
+++ Ăśberwiegend Barrierefrei
+++ Energiesparende Heizung mit einer Luft-Wärmepumpe
+++ hochwertige Verarbeitung
+++ FuĂźbodenheizung mit Einzelraumsteuerung
+++ helle, einladende Raumgestaltung
+++ attraktive Grundrisse

Realisiere Dein Projekt

Bausubstanz und Energie

Energieausweis

Ein Energieausweis ist für diesen Gebäudetyp nicht notwendig.
  • Baujahr2025
  • Zustand der ImmobilieProjektiert
  • EnergieträgerLuft-/Wasser-Wärmepumpe
Immowelt logo

Preisdetails

Kaufpreis
335310 €
4.164,82 €/m²
Preis pro Stellplatz
15000 €
Provision für Käufer
3,57%
Weitere Preisinformationen
1 Stellplatz, Miete: 15.000,00 EUR
Geschätzte Gesamtkosten
370.754 €1
Kaufpreis
335.310 €
Notarkosten (1,5%)
5.030 €
Grunderwerbsteuer (5%)
16.766 €
Provision für Käufer (3,57%)
11.971 €
Grundbucheintrag (0,5%)
1.677 €
1Der angezeigte Wert ist eine automatisch berechnete Schätzung von immowelt.
2Bei den Angaben handelt es sich um ortsübliche Werte. Individuelle Kosten können abweichen.

Lage

address-icon
Voxtrup, Osnabrück (49086)
Der Anbieter hat die genaue Adresse nicht freigegeben
Willkommen in Voxtrup!

In bester Lage, umgeben von einer gepflegten Nachbarschaft entsteht dieses moderne Neubauprojekt.

In unmittelbarer Nähe zu der Immobilie befindet sich eine Haltestelle zum ÖPNV. So erreichen Sie schnell und einfach die Innenstadt von Osnabrück mit diversen Einkaufsmöglichkeiten (z.B. Edeka), Ärzten und Apotheken. In nur drei Autominuten erreichen Sie die Auffahrt zur A 33 und gelangen so schnell und einfach zur Innenstadt von Osnabrück.

Die Friedensstadt OsnabrĂĽck liegt zwischen dem Wiehengebirge und dem Teutoburger Wald und liegt in dem Natur- und Geopark TERRA.vita.
Die Verkehrsanbindung von Osnabrück ist sehr gut. In unmittelbarer Nähe von Osnabrück befinden sich die Bundesautobahn 1, die A 30 und die A 33. Dadurch gelangen Sie schnell und einfach zu den nächsten Großstädten wie Münster, Bielefeld, Hannover und Bremen. Auch das Bildungsangebot von Osnabrück ist mit seinen Schulen, Hochschulen und der Universität sehr gut. Osnabrück bietet mit seinem vielfältigen Kultur- und Freizeitangebot die perfekte Umgebung für Ihre Familie. Egal ob groß oder klein, für jeden ist etwas dabei.

Weitere Informationen

Stichworte Anzahl der Badezimmer: 1, Anzahl Terrassen: 1, Anzahl der Wohneinheiten: 1, Distanz zum Kindergarten: 0.30, Distanz zur Grundschule: 0.74, Distanz zur Realschule: 2.23, Distanz zum Gymnasium: 3.32, Distanz zur Autobahn: 0.50, Distanz vom Zentrum: 3.70

Weitere Services

Lust auf eine Besichtigung?
Eine Frage zur Immobilie?
Nachricht hinzufĂĽgen
Mit der Nutzung der oben angegebenen Telefonnummer oder durch Klicken auf „Kontaktieren“ akzeptierst Du die Allgemeinen Nutzungsbedingungen, denen Du jederzeit widersprechen kannst. Weitere Informationen zum Datenschutz

Ăśber den Anbieter

Gewerbepark 18, 49143 Bissendorf
Herr Nihad Muracevic
Herr Nihad MuracevicDein Kontakt
Online-ID: 2gg665w
Referenznummer: 241619_1
FIM Finanz- und Immobilienmanagement GmbH
FIM Finanz- und Immobilienmanagement GmbH
Bewertung: 5 von 5 Sternen
Nachricht hinzufĂĽgen
Mit der Nutzung der oben angegebenen Telefonnummer oder durch Klicken auf „Kontaktieren“ akzeptierst Du die Allgemeinen Nutzungsbedingungen, denen Du jederzeit widersprechen kannst. Weitere Informationen zum Datenschutz
Wie zufrieden bist du mit dieser Seite (nicht mit der Immobilie selbst)?