Version: 8.26.0Navigation überspringen
449.000 €
5 Zimmer  •  116 m²  •  1. Geschoss
Immowelt logo

Maisonette zum Kauf
449000 €
3.871 €/m²
5 Zimmer  •  116 m²  •  1. Geschoss

Moderne Duplex-Eigentumswohnung mit 116?m² in Echternacherbrück - Ruhige Lage mit traumhaftem Weitblick, 3 Stellplätzen & Carport

In idyllischer Waldrandlage von Echternacherbrück präsentiert sich diese moderne Duplex-Eigentumswohnung mit ca. 116?m2 Wohnfläche als ideales Zuhause für Paare, Familien oder naturverbundene Menschen. Die im Jahr 2016 errichtete Immobilie in einem energieeffizienten Niedrigenergiehaus überzeugt durch hochwertige Ausstattung, großzügige Räume und eine atemberaubende Aussicht.

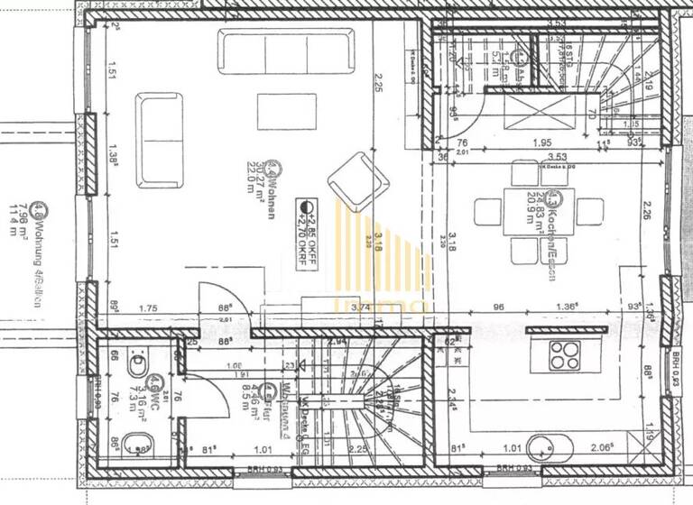
Raumaufteilung
1. Obergeschoss:

Eingangsbereich mit Gäste-WC

Büro oder Kinderzimmer

Großzügiges, lichtdurchflutetes Wohn- und Esszimmer mit offener Küche
(inkl. Natursteinarbeitsplatte und hochwertigen Einbaugeräten)

Abstellraum

Balkon

Große Terrasse mit direktem Zugang zum Garten und herrlichem Fernblick

2. Obergeschoss:

Modernes Badezimmer mit ebenerdiger Dusche und Waschmaschinenanschluss

Zwei gut geschnittene Schlafzimmer

Ausstattung im Überblick
Dreifach verglaste Fenster

Energieeffiziente Luft-Wasser-Wärmepumpe

Hochwertige Bodenbeläge und Materialien

3 Außenstellplätze (im Preis inklusiv)

Lage
Die Wohnung befindet sich in ruhiger Lage am Waldrand von Echternacherbrück - ideal für alle, die die Nähe zur Natur schätzen, ohne auf gute Anbindung und Infrastruktur zu verzichten. Einkaufsmöglichkeiten, Schulen und Freizeiteinrichtungen sind in wenigen Minuten erreichbar. Die umliegende Natur lädt zu Spaziergängen, Wanderungen und Erholung ein.

Merkmale

  • 1. Geschoss
  • 3 Stellplätze
  • Balkon
  • Terrasse

Grundrisse

Grundrisse
1 / 2

Virtueller Rundgang

3D tour

Bausubstanz und Energie

Energieausweis

A+
Immowelt logo

Preisdetails

Kaufpreis
449000 €
3.870,69 €/m²
Provision für Käufer
3.57%
Geschätzte Gesamtkosten
496.459 €1
Kaufpreis
449.000 €
Notarkosten (1,5%)
6.735 €
Grunderwerbsteuer (5%)
22.450 €
Provision für Käufer (3,57%)
16.029 €
Grundbucheintrag (0,5%)
2.245 €
1Der angezeigte Wert ist eine automatisch berechnete Schätzung von immowelt.
2Bei den Angaben handelt es sich um ortsübliche Werte. Individuelle Kosten können abweichen.

Lage

address-icon
Langenberg 14Echternacherbrück (54668)

Weitere Informationen

Stichworte Carport vorhanden, Stellplatz vorhanden, Gesamtfläche: 116,00 m², Anzahl der Schlafzimmer: 3, Anzahl der Badezimmer: 1, Anzahl der separaten WCs: 1, Anzahl Balkone: 1, Anzahl Terrassen: 1, 2 Etagen

Weitere Services

Lust auf eine Besichtigung?
Eine Frage zur Immobilie?
Nachricht hinzufügen
Mit der Nutzung der oben angegebenen Telefonnummer oder durch Klicken auf „Kontaktieren“ akzeptierst Du die Allgemeinen Nutzungsbedingungen, denen Du jederzeit widersprechen kannst. Weitere Informationen zum Datenschutz

Über den Anbieter

25, rue de la gare, 6440 Echternach
partner badge
10 Jahre Partnerschaft
Herr Henrik JAMROS
Herr Henrik JAMROSDein Kontakt
Online-ID: 25HDHBVEK3NI
Referenznummer: 85905685
Wie zufrieden bist du mit dieser Seite (nicht mit der Immobilie selbst)?