Günstige Gelegenheit - 3 Zimmer Wohnung im Herzen von Gschwend!
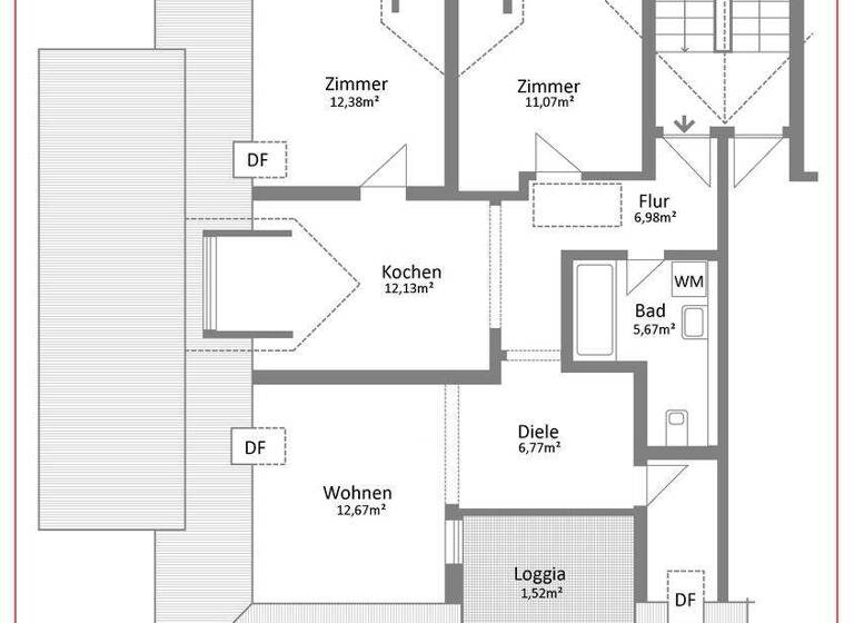
Die 3 Zimmer Wohnung befindet sich im Dachgeschoss eines gepflegten Mehrfamilienhauses mit insgesamt sechs Wohneinheiten. Das Gebäude wurde im Jahr 1847 errichtet und 1997 umfassend kernsaniert, sodass historische Bausubstanz und moderner Wohnkomfort heute eine harmonische Einheit bilden. Die Wohnung ist derzeit vermietet und eignet sich sowohl für die Eigennutzung als auch als attraktive Kapitalanlage. Mit ca. 74 qm Wohnfläche und einer durchdachten Raumaufteilung bietet sie viel Platz für individuelles Wohnen und spricht insbesondere junge Paare an. Ein besonderes Highlight ist die großzügige, nach Süden ausgerichtete Loggia, die sonnige Stunden und einen hohen Erholungswert garantiert. Sie erweitert den Wohnraum nach außen und schafft eine angenehme Verbindung zwischen innen und außen. Das Mehrfamilienhaus diente früher als Rathaus, was sich bis heute in den beeindruckenden Raumhöhen widerspiegelt. Die Wohnung verfügt über drei großzügig geschnittene Zimmer: ein helles Wohnzimmer, eine Küche, ein Schlafzimmer, ein Badezimmer sowie ein weiteres Zimmer, das flexibel als Kinder-, Arbeits- oder Gästezimmer genutzt werden kann. Ein Kellerraum, ein Abstellraum sowie ein Carport ergänzen das Angebot und runden diese lukrative Wohn und Investitionsmöglichkeit ab. Für weitere Informationen oder zur Vereinbarung eines Besichtigungstermins stehe ich Ihnen jederzeit gerne zur Verfügung.
Weitere Angebote unter www.GARANT-IMMO.de
Merkmale
Bezug: nach Vereinbarung
vermietet
Dachgeschoss, 3. Geschoss
Einbauküche
Stellplatz
Balkon
Bodenbelag: Fliesen
Grundrisse
Grundrisse
1 / 2
Bausubstanz und Energie
Möchtest du Details zum Energieverbrauch?
Baujahr1847
Zustand der ImmobilieGepflegt
Preisdetails
Kaufpreis
138000 €138.000 €
1.864,86 €/m²
Hausgeld
150 €150 €
Provision für Käufer
3,57 % (inkl. MwSt.) inkl. MwSt. Die Maklercourtage für den Käufer beträgt 3 % aus dem Kaufpreis zuzüglich der gesetzlichen MwSt., somit gesamt 3,57 %.
Geschätzte Gesamtkosten
151.800 €1
Kaufpreis
138.000 €
Kaufnebenkosten
13.800 €
2
Notarkosten (1,5%)
2.070 €
Grunderwerbsteuer (5%)
6.900 €
Provision für Käufer (3%)
4.140 €
Grundbucheintrag (0,5%)
690 €
1Der angezeigte Wert ist eine automatisch berechnete Schätzung von immowelt.
2Bei den Angaben handelt es sich um ortsübliche Werte. Individuelle Kosten können abweichen.
Lage
Geschwend, Todtnau (79674)
Der Anbieter hat die genaue Adresse nicht freigegeben
Die Wohnung befindet sich in einer attraktiven, zentralen Lage von Gschwend, einem charmanten Ortsteil der Stadt Todtnau. Einkaufsmöglichkeiten, Bushaltestellen, Schule und Kindergarten sind bequem erreichbar, ebenso wie die umliegenden Natur- und Erholungsgebiete des Südschwarzwalds. Die sonnige Ausrichtung und die Nähe zu Wanderwegen, Loipen und Ausflugszielen wie dem Gisiboden oder dem Feldberg machen den Standort besonders reizvoll. Eine ideale Kombination aus ruhigem Wohnen, kurzen Wegen und hohem Freizeitwert.
Weitere Informationen
Stichworte
Carport vorhanden, Anzahl der Schlafzimmer: 1, Anzahl der Badezimmer: 1, Anzahl Balkone: 1, 3 Etagen