Version: 8.26.0Navigation überspringen
Evernest GmbH
395.000 €
6 Zimmer  •  189 m²  •  428 m² Grundstück

Mehrfamilienhaus zum Kauf
395000 €
2.090 €/m²
6 Zimmer  •  189 m²  •  428 m² Grundstück

2-Familienhaus in toller Lage und mit viel Potential

In einer ruhigen und dennoch zentralen Lage von Weinheim, Hohensachsen präsentiert sich ein solides 2-Familienhaus aus etwa dem Jahr 1900 mit zwei getrennten Wohneinheiten. Diese vielseitige Immobilie eignet sich sowohl als etablierte Kapitalanlage mit sofortigen Mieteinnahmen als auch für Eigennutzer, die entweder das komplette Haus nutzen, oder aber auch eine Wohneinheit selbst bewohnen und durch die Vermietung der zweiten Einheit ihre Wohnkosten reduzieren möchten.

Aktuelle Mietsituation:
- Wohneinheit EG: 480€ Kaltmiete/Monat
- Wohneinheit 1.OG: leerstehend - kann selbst bewohnt oder neu vermietet werden

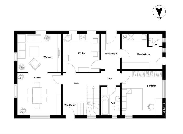
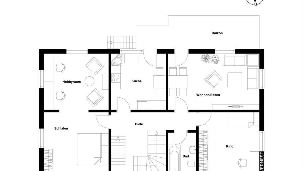
Die untere Wohneinheit mit ca. 85 Quadratmetern Wohnfläche überzeugt durch ihre 2,5 gut geschnittenen Zimmer, separatem Zugang auf der Rückseite des Hauses und die angeschlossene, teilüberdachte Terrasse. Hier können Sie durch gezielte Modernisierungsmaßnahmen das Mietpotenzial deutlich steigern. Die obere Wohneinheit mit dreieinhalb Zimmern und ca. 104 Quadratmetern präsentiert sich in gepflegtem Zustand und bietet Raum für individuelle Gestaltung. Von der Küche und Wohnbereich haben Sie direkten Zugang zu einem überaus großzügigen Balkon mit schönem Blick ins Grüne und Zugang in den Hof und Garten. Von der Diele gelangen Sie auf einen überaus geräumigen Spitzboden mit Ausbaupotential. Ein historischer Gewölbekeller runden dieses Angebot ab.
Beide Wohnungen verfügen über Tageslichtbäder und profitieren von den separaten Zugängen, die maximale Privatsphäre gewährleisten. Die flexible Raumaufteilung ermöglicht vielfältige Nutzungskonzepte und spricht unterschiedliche Personengruppen an. Praktische Stellplätze im Hof sowie die Möglichkeit, weitere Parkplätze mit geringem Aufwand neben dem Haus zu schaffen, schaffen zusätzlichen Komfort.

Besonders hervorzuheben ist die Grundstückssituation: Das Haus steht auf einem gemeinsamen, noch nicht geteilten Grundstück, wobei als Bewertungsgrundlage ein Anteil von 428 m² angesetzt wurde. Diese flexible Konstellation eröffnet dem zukünftigen Eigentümer vielfältige Gestaltungsmöglichkeiten und maximale Planungsfreiheit für zukünftige Entwicklungen.
Das Objekt eignet sich hervorragend für Investoren, die Wert auf Substanz und Entwicklungspotenzial legen, sowie für Eigennutzer, die smart wohnen oder investieren möchten. Die über die Jahre vorgenommenen Erweiterungen und Umbauten zeigen das kontinuierliche Entwicklungspotenzial dieser Immobilie.

Gerne präsentiere ich Ihnen bei einer persönlichen Besichtigung alle Vorzüge und Nutzungsmöglichkeiten dieser vielseitigen Immobilie.

Merkmale

  • 428 m² Grundstück
  • Keller
  • Balkon
  • Terrasse
  • 2 Stellplätze
- 2 Wohneinheiten
- Nachtspeicheröfen
- Gewölbekeller
- Geräumiger Spitzboden mit Ausbaupotential
- Außenstellplätze

Grundrisse

Grundrisse
1 / 1

Bausubstanz und Energie

Energieausweis

H
  • Baujahr1900
  • Zustand der Immobilierenovierungsbedürftig / sanierungsbedürftig
  • EnergieträgerElektro
MediumRectangleTop

Preisdetails

Kaufpreis
395000 €
2.089,95 €/m²
Provision für Käufer
2.97 inkl. MwSt.
Bei Abschluss eines notariellen Kaufvertrages ist eine Käuferprovision vom Käufer in Höhe von 2.97 % inkl. MwSt. aus dem Kaufpreis fällig.
Geschätzte Gesamtkosten
434.382 €1
Kaufpreis
395.000 €
Notarkosten (1,5%)
5.925 €
Grunderwerbsteuer (5%)
19.750 €
Provision für Käufer (2,97%)
11.732 €
Grundbucheintrag (0,5%)
1.975 €
1Der angezeigte Wert ist eine automatisch berechnete Schätzung von immowelt.
2Bei den Angaben handelt es sich um ortsübliche Werte. Individuelle Kosten können abweichen.

Lage

address-icon
HohensachsenWeinheim (69469)
Der Anbieter hat die genaue Adresse nicht freigegeben
Die Brunnengasse in Weinheim-Hohensachsen vereint das Beste aus zwei Welten: die idyllische Ruhe eines charmanten Bergstraßenortes mit der komfortablen Anbindung an die pulsierende Metropolregion Rhein-Neckar. Hier erleben Sie echte Lebensqualität in einer der begehrtesten Lagen der Region.
Umgeben von der malerischen Landschaft der Bergstraße und den sanften Hügeln des Odenwaldes bietet diese Lage ein einzigartiges Wohnumfeld. Die direkte Feldrandlage schenkt Ihnen weitläufige Ausblicke ins Grüne und eine Atmosphäre der Erholung, während Sie dennoch bestens an die wichtigen Zentren der Region angebunden sind. Der Weinheimer Hauptbahnhof mit seinen überregionalen Verbindungen ist ebenso schnell erreichbar wie die Autobahnen, die Sie zügig in alle Richtungen bringen.
Das lebendige Dorfleben in Hohensachsen mit seinem historischen Charme, den modernen Einrichtungen und der aktiven Gemeinschaft macht diesen Ort zu etwas Besonderem. Hier finden Sie alles für den täglichen Bedarf, ohne auf die Vorzüge der ländlichen Ruhe verzichten zu müssen. Das milde Bergstraßenklima mit seiner frühen Blüte und die vielfältigen Freizeitmöglichkeiten direkt vor der Haustür runden das außergewöhnliche Wohnangebot ab.
Diese privilegierte Lage verbindet Naturverbundenheit mit urbaner Erreichbarkeit und schafft damit ideale Voraussetzungen für ein Leben im Einklang zwischen Ruhe und Dynamik. Eine Adresse, die sowohl heute überzeugt als auch für die Zukunft beste Perspektiven bietet.

Weitere Informationen

Stichworte Stellplatz vorhanden, Anzahl der Schlafzimmer: 3, Anzahl der Badezimmer: 2, Anzahl Balkone: 1, Anzahl Terrassen: 1, 2 Etagen

Weitere Services

Lust auf eine Besichtigung?
Eine Frage zur Immobilie?
Nachricht hinzufügen
Mit der Nutzung der oben angegebenen Telefonnummer oder durch Klicken auf „Kontaktieren“ akzeptierst Du die Allgemeinen Nutzungsbedingungen, denen Du jederzeit widersprechen kannst. Weitere Informationen zum Datenschutz

Über den Anbieter

Mönkedamm 9-11, 20457 Hamburg
partner badge
Partnerschaft
Philipp BeckerDein Kontakt
Online-ID: 2673LHJGF5T7
Referenznummer: L-CTBCYDW
MediumRectangleTop
Wie zufrieden bist du mit dieser Seite (nicht mit der Immobilie selbst)?