

Längle Immobilien GmbH
Frau Nicole Längle
072 ···
Nr. anzeigenPreise & Kosten
Provision für Käufer
2,38 inkl. MwSt.
Die Käuferprovision in Höhe von 2,38 % inkl. gesetzlicher MwSt. von 19 % errechnet sich durch den beurkundeten Kaufpreis. Sie ist verdient und fällig bei notarieller Beurkundung. Weitere Informationen siehe Provisionshinweis.
Lage
Kandel ist eine Pfälzische Kleinstadt mit etwa 8.500 Einwohnern. Die von Fachwerkshäusern, Passagen und engen Gassen geprägte Altstadt lädt zum Flanieren ein.
Die großzügige Wohnung befindet sich in einer Stadt mit vielen alt eingesessenen Geschäften.
Kandel befindet sich in der oberrheinischen Tiefebene zwischen...
Die Wohnung
Wohnungslage
Erdgeschoss
Bezug
nach Absprache
Wohnanlage
Energie & Heizung
Warum sehe ich diese Anzeige? – Du siehst diese Anzeige basierend auf Ihrer Navigation auf unserer Website und den Suchkriterien, die du verwendet hast.
Energieausweistyp
Verbrauchsausweis
Gebäudetyp
Wohngebäude
Gültigkeit
bis 21.03.2028
Effizienzklasse
D
Endenergieverbrauch
116,00 kWh/(m²·a)
Weitere Energiedaten
Energieträger
Öl
Heizungsart
Zentralheizung
Details
Objektbeschreibung
Wohnen & Arbeiten in moderner Wohlfühlatmosphäre - Ihr Traum vom perfekten Zuhause wird wahr!
Hier treffen Stil, Komfort und durchdachte Raumgestaltung auf flexible Nutzungsmöglichkeiten - ein Zuhause, das mehr als nur vier Wände bietet.
Zum Verkauf steht eine hochwertig sanierte 3-Zimmer-Erdgeschosswohnung...
Ausstattung
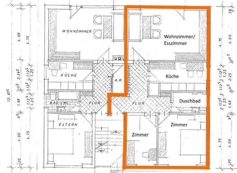
1. Erdgeschosswohnung - 3 ZKB - ca. 79 m²
Die Erdgeschosswohnung wurde im Jahr 2019 vollumfänglich saniert und modernisiert (Heizkörper, Elektroleitungen und Wasserleitungen)
* 3-fach verglaste Fenster aus 2019
* Tageslichtduschbad mit bodenebener Dusche Sanierung in 2019
* Parkettboden
* Klimasplittgerät...
Preisinformation
1 Stellplatz
2 Garagenstellplätze, Kaufpreis je: 30.000,00 EUR
Weitere Informationen
Provisionshinweis
2,38 inkl. MwSt.
Die Käuferprovision in Höhe von 2,38 % inkl. gesetzlicher MwSt. von 19 % errechnet sich durch den beurkundeten Kaufpreis. Sie ist verdient und fällig bei notarieller Beurkundung.
Mit dem Verkäufer wurde ein provisionspflichtiger Maklervertrag in gleicher Höhe...
Anbieter der Immobilie

Online-ID: 2mma75l
Referenznummer: 225750
Finde Angebote wie dieses
Hier geht es zu unserem Impressum, den Allgemeinen Geschäftsbedingungen, den Hinweisen zum Datenschutz und nutzungsbasierter Online-Werbung.