Grundstück zum KaufPreis auf Anfrage1.041 m² Grundstück
Preis auf Anfrage
1.041 m² Grundstück
Grundstück in sehr ruhiger Lage
Ruhig gelegenes Baugrundstück in Kolbermoor - großzügige 1.041 m² in naturnaher Umgebung
Dieses attraktive Grundstück befindet sich in besonders ruhiger und grüner Lage von Kolbermoor, einer charmanten Stadt im oberbayerischen Landkreis Rosenheim. Mit einer Gesamtfläche von 1.041 m² bietet es hervorragende Voraussetzungen für die Errichtung eines Einfamilienhauses und ausreichend Raum zur individuellen Gestaltung.
Die Umgebung überzeugt durch ihre naturnahe und familienfreundliche Atmosphäre. Eingebettet in eine gewachsene Wohngegend genießen Sie hier Privatsphäre und Erholung, ohne auf eine gute Anbindung an die städtische Infrastruktur verzichten zu müssen. Zahlreiche Wander- und Radwege in der näheren Umgebung laden zu Freizeitaktivitäten im Grünen ein und schaffen einen hohen Erholungswert.
In unmittelbarer Nähe befinden sich alle wichtigen Einrichtungen des täglichen Bedarfs - darunter Supermärkte, Schulen, Kindergärten und Arztpraxen. Der Bahnhof Kolbermoor ist nur wenige Minuten entfernt und gewährleistet eine hervorragende Anbindung an Rosenheim sowie an die Landeshauptstadt München.
Das Grundstück ist teilerschlossen und bietet flexible Bebauungsmöglichkeiten, da kein Bebauungsplan besteht. Die Erschließung sollte gemeinsam mit den Nachbargrundstücken erfolgen.
Dank seiner ruhigen Lage, der reizvollen Umgebung und der hervorragenden Infrastruktur stellt dieses Grundstück eine ideale Gelegenheit für Familien dar, ein modernes Zuhause in einer der begehrtesten Wohnlagen des oberbayerischen Raums zu schaffen.
Dieses attraktive Grundstück befindet sich in besonders ruhiger und grüner Lage von Kolbermoor, einer charmanten Stadt im oberbayerischen Landkreis Rosenheim. Mit einer Gesamtfläche von 1.041 m² bietet es hervorragende Voraussetzungen für die Errichtung eines Einfamilienhauses und ausreichend Raum zur individuellen Gestaltung.
Die Umgebung überzeugt durch ihre naturnahe und familienfreundliche Atmosphäre. Eingebettet in eine gewachsene Wohngegend genießen Sie hier Privatsphäre und Erholung, ohne auf eine gute Anbindung an die städtische Infrastruktur verzichten zu müssen. Zahlreiche Wander- und Radwege in der näheren Umgebung laden zu Freizeitaktivitäten im Grünen ein und schaffen einen hohen Erholungswert.
In unmittelbarer Nähe befinden sich alle wichtigen Einrichtungen des täglichen Bedarfs - darunter Supermärkte, Schulen, Kindergärten und Arztpraxen. Der Bahnhof Kolbermoor ist nur wenige Minuten entfernt und gewährleistet eine hervorragende Anbindung an Rosenheim sowie an die Landeshauptstadt München.
Das Grundstück ist teilerschlossen und bietet flexible Bebauungsmöglichkeiten, da kein Bebauungsplan besteht. Die Erschließung sollte gemeinsam mit den Nachbargrundstücken erfolgen.
Dank seiner ruhigen Lage, der reizvollen Umgebung und der hervorragenden Infrastruktur stellt dieses Grundstück eine ideale Gelegenheit für Familien dar, ein modernes Zuhause in einer der begehrtesten Wohnlagen des oberbayerischen Raums zu schaffen.
Merkmale
- 1.041 m² Grundstück
- teilweise erschlossen
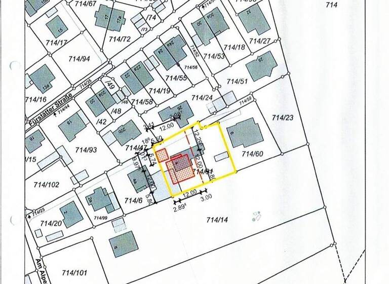
Grundstücksangebot - Gesamtfläche 1.041 m² (nur gemeinsam zu erwerben)
Grundstück 1
.Fläche: 524 m²
.Kaufpreis: € 449.000,-
Grundstück 2
.Fläche: 517 m²
.Kaufpreis: € 450.000,-
Gesamtfläche: 1.041 m²
Gesamtkaufpreis: € 899.000,-
Weitere Informationen:
.Bebauung mit einem Einfamilienhaus möglich
.Kein Bebauungsplan vorhanden
.Teilerschlossen (Erschließung kann gemeinsam mit Nachbarn erfolgen)
.Sehr ruhige Lage
Grundstück 1
.Fläche: 524 m²
.Kaufpreis: € 449.000,-
Grundstück 2
.Fläche: 517 m²
.Kaufpreis: € 450.000,-
Gesamtfläche: 1.041 m²
Gesamtkaufpreis: € 899.000,-
Weitere Informationen:
.Bebauung mit einem Einfamilienhaus möglich
.Kein Bebauungsplan vorhanden
.Teilerschlossen (Erschließung kann gemeinsam mit Nachbarn erfolgen)
.Sehr ruhige Lage
Grundrisse
Grundrisse
1 / 1
Preisdetails
Preis auf Anfrage
Provision für Käufer
3,57 % inkl. MwSt. (3,00 % netto) inkl. MwSt.
Lage

Kolbermoor (83059)
Der Anbieter hat die genaue Adresse nicht freigegeben
Eine Oase der Ruhe
Das Baugrundstück befindet sich in einer besonders ruhigen und idyllischen Lage in Kolbermoor, einer kleinen Stadt im südlichen Bayern, die durch ihre naturnahe Atmosphäre und gleichzeitig sehr gute Anbindung an größere Städte besticht. Hier treffen ländliche Ruhe und städtische Nähe aufeinander, was das Grundstück zu einem idealen Standort für Ihr Einfamilienhaus macht.
Die Lage des Grundstücks ist geprägt von einer friedlichen, fast dörflichen Umgebung, die vor allem von Anwohnern geschätzt wird, die Wert auf Erholung und Naturverbundenheit legen. Trotz der ländlichen Idylle ist Kolbermoor bestens angebunden: Die bayerische Landeshauptstadt München ist in weniger als einer Stunde erreichbar, und auch die nahegelegenen Städte Rosenheim und Bad Aibling bieten vielfältige Einkaufsmöglichkeiten, Restaurants und Freizeitangebote. Der S-Bahn-Anschluss von Kolbermoor sorgt zudem für eine schnelle und unkomplizierte Verbindung in die Metropolregion.
Die ruhige Wohnlage des Grundstücks ist ein echter Vorteil für Familien, die ein stressfreies und erholsames Zuhause suchen. Direkt angrenzend an das Grundstück befindet sich ein grünes, weitläufiges Feld, das für zusätzliche Privatsphäre und einen Blick ins Grüne sorgt. Gleichzeitig bietet die direkte Nähe zum Wald und zu Wanderwegen zahlreiche Möglichkeiten für Freizeitaktivitäten wie Spaziergänge, Joggen oder Radtouren. Die Umgebung ist geprägt von gepflegten Einfamilienhäusern und kleinen landwirtschaftlichen Betrieben, die zur Ruhe und Beschaulichkeit des Quartiers beitragen.
In der unmittelbaren Nähe des Grundstücks befinden sich zudem mehrere Kindergärten, Schulen sowie Sporteinrichtungen, die sowohl den Alltag von Familien erleichtern als auch eine hohe Lebensqualität bieten. Für die Versorgung des täglichen Bedarfs ist ebenfalls bestens gesorgt - Supermärkte, Apotheken und Banken sind in wenigen Minuten erreichbar. Auch das Kulturangebot in Kolbermoor und der Umgebung lässt keine Wünsche offen,
Das Baugrundstück befindet sich in einer besonders ruhigen und idyllischen Lage in Kolbermoor, einer kleinen Stadt im südlichen Bayern, die durch ihre naturnahe Atmosphäre und gleichzeitig sehr gute Anbindung an größere Städte besticht. Hier treffen ländliche Ruhe und städtische Nähe aufeinander, was das Grundstück zu einem idealen Standort für Ihr Einfamilienhaus macht.
Die Lage des Grundstücks ist geprägt von einer friedlichen, fast dörflichen Umgebung, die vor allem von Anwohnern geschätzt wird, die Wert auf Erholung und Naturverbundenheit legen. Trotz der ländlichen Idylle ist Kolbermoor bestens angebunden: Die bayerische Landeshauptstadt München ist in weniger als einer Stunde erreichbar, und auch die nahegelegenen Städte Rosenheim und Bad Aibling bieten vielfältige Einkaufsmöglichkeiten, Restaurants und Freizeitangebote. Der S-Bahn-Anschluss von Kolbermoor sorgt zudem für eine schnelle und unkomplizierte Verbindung in die Metropolregion.
Die ruhige Wohnlage des Grundstücks ist ein echter Vorteil für Familien, die ein stressfreies und erholsames Zuhause suchen. Direkt angrenzend an das Grundstück befindet sich ein grünes, weitläufiges Feld, das für zusätzliche Privatsphäre und einen Blick ins Grüne sorgt. Gleichzeitig bietet die direkte Nähe zum Wald und zu Wanderwegen zahlreiche Möglichkeiten für Freizeitaktivitäten wie Spaziergänge, Joggen oder Radtouren. Die Umgebung ist geprägt von gepflegten Einfamilienhäusern und kleinen landwirtschaftlichen Betrieben, die zur Ruhe und Beschaulichkeit des Quartiers beitragen.
In der unmittelbaren Nähe des Grundstücks befinden sich zudem mehrere Kindergärten, Schulen sowie Sporteinrichtungen, die sowohl den Alltag von Familien erleichtern als auch eine hohe Lebensqualität bieten. Für die Versorgung des täglichen Bedarfs ist ebenfalls bestens gesorgt - Supermärkte, Apotheken und Banken sind in wenigen Minuten erreichbar. Auch das Kulturangebot in Kolbermoor und der Umgebung lässt keine Wünsche offen,
Weitere Informationen
Sonstiges
Alle in diesem Exposé verwendeten Angaben beruhen auf Informationen von Dritten (z.B. Eigentümer, Hausverwaltung, etc.) und daher freibleibend und ohne jegliche Gewähr. Zahlenangaben sind immer als ca-Angaben zu verstehen. Irrtum, Änderungen, Zwischenverkauf oder Zwischenvermietung bleiben vorbehalten. Die Bekanntgabe der Objektadresse und von Objektdaten geschieht unter ausdrücklichem Hinweis auf unsere Provisionsforderung im Fall des Ankaufs. Die Höhe der Käuferprovision entnehmen Sie den Eckdaten dieses Exposés. Mit Übersendung des Exposés und Bekanntgabe der Objektadresse kommt ein Maklervertrag zustande. Sie wurden hierbei auf das Recht hingewiesen, binnen vierzehn Tagen ohne Angabe von Gründen diesen Vertrag zu widerrufen. Um ein bestehendes Widerrufsrecht auszuüben, genügt eine schriftliche Erklärung an EDE-Invest GmbH & Co. KG, Bavariaring 18, 80336 München. Möglicherweise haben Sie bei Erhalt des Exposees wirksam auf das Widerrufsrecht verzichtet. Haben Sie hingegen verlangt, dass unsere Dienstleistungen während der Widerrufsfrist beginnen sollen, ohne vorher auf das Widerrufsrecht zu verzichten, so haben Sie uns im Fall des Widerrufs einen angemessenen Betrag zu zahlen, der dem Anteil der bis zu dem Zeitpunkt, zu dem Sie uns den Widerruf erklären, bereits erbrachten Dienstleistungen im Vergleich zum Gesamtumfang der im Vertrag vorgesehenen Dienstleistungen entspricht. Ihr Widerrufsrecht erlischt vorzeitig, wenn wir auf Ihren ausdrücklichen Wunsch hin tätig geworden sind und der Vertrag vollständig erfüllt ist, bevor Sie Ihr Widerrufsrecht ausgeübt haben. Verpflichtungen zur Erstattung von Zahlungen müssen innerhalb von 30 Tagen erfüllt werden. Die Frist beginnt für Sie mit der Absendung Ihrer Widerrufserklärung, für uns mit deren Empfang.
Gewerbeerlaubnis gemäß § 34c GewO erteilt durch Aufsichtsbehörde gemäß § 34c GewO: Kreisverwaltungsreferat München, Ruppertstr. 19, 80466 München
Online-Streitbeilegung: http://ec.europa.eu/consumers/odr/
Gewerbeerlaubnis gemäß § 34c GewO erteilt durch Aufsichtsbehörde gemäß § 34c GewO: Kreisverwaltungsreferat München, Ruppertstr. 19, 80466 München
Online-Streitbeilegung: http://ec.europa.eu/consumers/odr/
Weitere Services
Lust auf eine Besichtigung?
Eine Frage zur Immobilie?
Über den Anbieter
Bavariaring 18, 80336 München
3 Jahre Partnerschaft

Herr Michael KeilDein Kontakt
Online-ID: 26Q4WTUVXB4Y
Referenznummer: 5925_4
Wie zufrieden bist du mit dieser Seite (nicht mit der Immobilie selbst)?
