

Keine Bilder verfügbar
Kontaktiere den Anbieter, um Bilder dieser Immobilie zu erhalten.




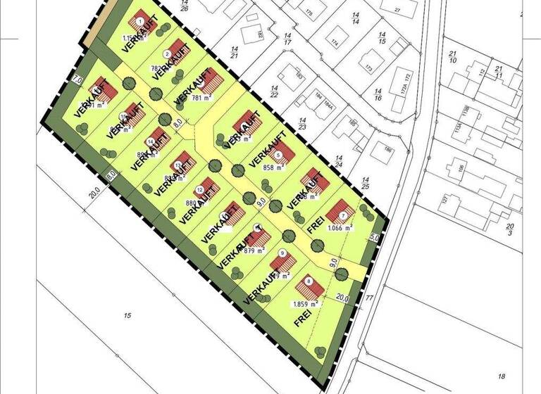
Grundstück zum Kauf • provisionsfrei174900 €94,08 €/m²1.859 m² Grundstück
174900 €
94,08 €/m²
1.859 m² Grundstück
Wohnbaugrundstücke in Kirchboitzen - Walsrode
Merkmale
- Bezug: sofort verfügbar
- 1.859 m² Grundstück
- voll erschlossen
Grundrisse
Grundrisse
1 / 1
Realisiere Dein Projekt
Bausubstanz und Energie
Möchtest du Details zum Energieverbrauch?

Preisdetails
Kaufpreis
174900 €
94,08 €/m²
Provision für Käufer
provisionsfrei; prov.frei
Geschätzte Gesamtkosten
174.900 €1
Kaufpreis
174.900 €
1Der angezeigte Wert ist eine automatisch berechnete Schätzung von immowelt.
Lage

Walsrode (29664)
Der Anbieter hat die genaue Adresse nicht freigegeben
Weitere Informationen
Weitere Services
Lust auf eine Besichtigung?
Eine Frage zur Immobilie?
Über den Anbieter
Moorstr. 1, 29664 Walsrode
10 Jahre Partnerschaft
Herr Cord BösenbergDein Kontakt
Online-ID: 25PUTUX6LIQR
Referenznummer: 1985-08
Wie zufrieden bist du mit dieser Seite (nicht mit der Immobilie selbst)?


