Version: 8.24.0Navigation überspringen
99.990 €
3 Zimmer  •  66,5 m²  •  EG
Immowelt logo

Wohnung zum Kauf • provisionsfrei
99990 €
1.503 €/m²
3 Zimmer  •  66,5 m²  •  EG

Hochparterre mit Sonnenblick

Diese frisch renovierte 3-Zimmer-Wohnung im Hochparterre überzeugt durch eine klare Raumaufteilung, helle Wohnräume und einen sonnigen Balkon mit Blick ins Grüne und auf den Sportplatz. Neue Fliesen in Bad und Küche sorgen für ein modernes Erscheinungsbild und unterstreichen den gepflegten Gesamteindruck.
Mit ca. 67 m² Wohnfläche bietet die Wohnung ideale Voraussetzungen für Paare, kleine Familien oder Kapitalanleger. Durch die laufende Renovierung entsteht ein bezugsfertiger Zustand - perfekt für einen direkten Einzug oder eine zeitnahe Vermietung.
Eine attraktive Gelegenheit in solider Wohnlage von Finsterwalde.

Merkmale

  • Bezug: sofort
  • Erdgeschoss
  • Kelleranteil
  • Balkon
  • Bodenbelag: Fliesen, Kunststoff
Diese 3-Zimmer-Wohnung im Hochparterre wird derzeit frisch renoviert und bietet nach Fertigstellung ideale Voraussetzungen für Eigennutzer wie auch Kapitalanleger. Der Sonnenbalkon mit Blick ins Grüne und Richtung Sportplatz verleiht der Wohnung einen besonderen Charakter.

Eingangsbereich
+ Flur mit praktischem Flurschrank
+ Gute Stellmöglichkeiten und klare Raumstruktur

Wohn- & Schlafräume
+ Drei gut geschnittene Zimmer
+ PVC-Belag in allen Wohnräumen
+ Flexible Nutzung als Wohn-, Schlaf-, Kinder- oder Arbeitszimmer

Schlafzimmer mit Balkon
+ Direkter Zugang zum Balkon
+ Sonnenseitige Ausrichtung
+ Angenehmer Blick ins Grüne

Küche
+ Separater Küchenraum mit Fenster
+ Neue Fliesenarbeiten
+ Helle und freundliche Atmosphäre

Badezimmer
+ Tageslichtbad mit Fenster
+ Badewanne
+ Neu gefliest

Weitere Merkmale
+ Hochparterre-Lage
+ Abstellraum im Keller
+ Frisch renovierter Zustand

Die laufende Renovierung schafft ein modernes, gepflegtes Gesamtbild - sodass neue Eigentümer ohne größeren Aufwand einziehen oder die Wohnung unmittelbar vermieten können.

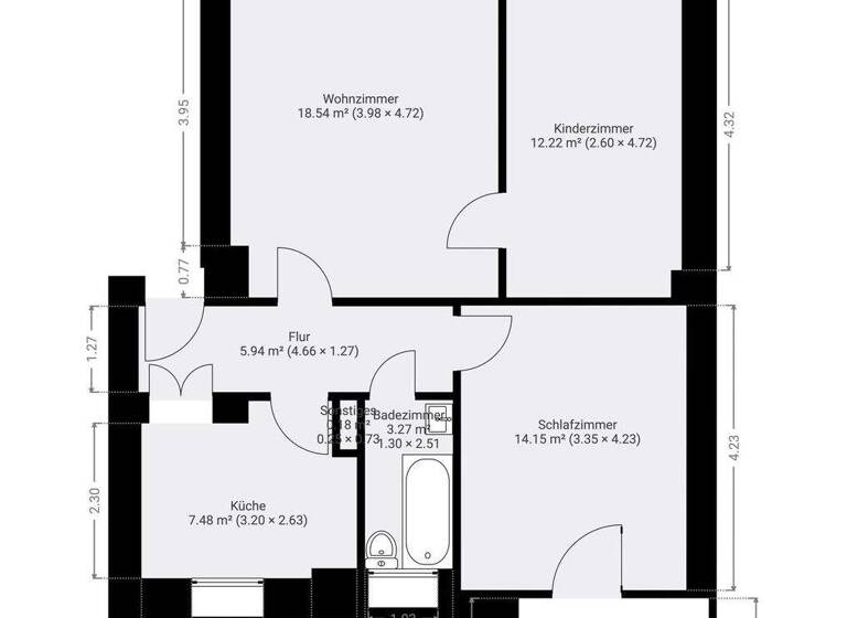
Grundrisse

Grundrisse
1 / 1

Realisiere Dein Projekt

Bausubstanz und Energie

Energieausweis

D
  • Baujahr1954
  • Zustand der ImmobilieGepflegt
  • EnergieträgerFernwärme
Immowelt logo

Preisdetails

Kaufpreis
99990 €
1.502,93 €/m²
Hausgeld
349.32 €
Provision für Käufer
provisionsfrei
Geschätzte Gesamtkosten
108.489 €1
Kaufpreis
99.990 €
Notarkosten (1,5%)
1.500 €
Grunderwerbsteuer (6,5%)
6.499 €
Grundbucheintrag (0,5%)
500 €
1Der angezeigte Wert ist eine automatisch berechnete Schätzung von immowelt.
2Bei den Angaben handelt es sich um ortsübliche Werte. Individuelle Kosten können abweichen.

Lage

address-icon
Finsterwalde (03238)
Der Anbieter hat die genaue Adresse nicht freigegeben
Die Wohnung befindet sich in ruhiger, gewachsener Wohnlage in der Glasmacherstraße in Finsterwalde (03238). Das Umfeld ist geprägt von Mehrfamilienhäusern und begrünten Außenanlagen.

Einkaufsmöglichkeiten, Schulen, Kitas und medizinische Versorgung sind in wenigen Minuten erreichbar. Eine gute Anbindung an den öffentlichen Nahverkehr sowie kurze Wege zum Bahnhof ermöglichen Verbindungen in Richtung Cottbus und ins Umland.

Auch über die B96 und B169 besteht eine solide Verkehrsanbindung für Berufspendler.

Weitere Informationen

Sonstiges - Eine Besichtigung erfolgt nur nach vorab Vorlage eines Liquiditätsnachweises!

- Ein Exposé und einen Finanzierungscheck erhalten Sie automatisch nach Ihrer Anfrage.

- Bitte schauen Sie in ihren Spam-Ordner!

- Benötigen Sie Hilfe oder haben Sie Fragen, dann erreichen Sie mich telefonisch.

Entdecken Sie weitere detaillierte Informationen zu diesem Objekt auf unserer Homepage: https://cottbus-immobilienmakler.immo/

Sie möchten Ihre Immobilie verkaufen oder vermieten?
Sprechen Sie mich an. Als erfahrener Immobilienmakler stehe ich Ihnen mit professionellem Service und Fachkenntnissen zur Seite. Gemeinsam finden wir die beste Lösung für Ihre Bedürfnisse.

Kontaktieren Sie mich jetzt, damit wir Ihren Immobilienwunsch erfolgreich realisieren können. Stichworte Anzahl der Schlafzimmer: 2, Anzahl der Badezimmer: 1, Anzahl Balkone: 1, Anzahl der Wohneinheiten: 24, Bundesland: Brandenburg, 2 Etagen, Distanz zum Kindergarten: 2.30, Distanz zur Grundschule: 1.20, Distanz zur nächsten Einkaufsmöglichkeit: 0.75, Distanz zum Gymnasium: 2.10, Distanz zur Autobahn: 17.00, Distanz zum Bus: 0.24, Distanz zur Hauptschule: 3.00

Weitere Services

Lust auf eine Besichtigung?
Eine Frage zur Immobilie?
Nachricht hinzufügen
Mit der Nutzung der oben angegebenen Telefonnummer oder durch Klicken auf „Kontaktieren“ akzeptierst Du die Allgemeinen Nutzungsbedingungen, denen Du jederzeit widersprechen kannst. Weitere Informationen zum Datenschutz

Über den Anbieter

August-Bebel-Straße [4], [03185] Peitz
partner badge
Partnerschaft
Herr Sebastian StelzigDein Kontakt
Online-ID: 2ng7f5p
Referenznummer: Objekt-264
Stelzig Immobilien
Stelzig Immobilien
Bewertung: 3,5 von 5 Sternen
Nachricht hinzufügen
Mit der Nutzung der oben angegebenen Telefonnummer oder durch Klicken auf „Kontaktieren“ akzeptierst Du die Allgemeinen Nutzungsbedingungen, denen Du jederzeit widersprechen kannst. Weitere Informationen zum Datenschutz
Wie zufrieden bist du mit dieser Seite (nicht mit der Immobilie selbst)?