Diese hochwertige Erdgeschosswohnung mit privatem Zugang, befindet sich in einem massiv errichteten Mehrfamilienhaus in der Steverstraße 17 in Nottuln/Appelhülsen. Das Gebäude wurde im Zuge einer umfassenden Effizienzhaussanierung auf den Standard Effizienzhaus 55 EE gebracht und erfüllt damit hohe Anforderungen an Energieeffizienz und Wohnkomfort.
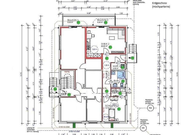
Die Wohnung verfügt über eine gut geschnittene Zwei-Zimmer-Aufteilung mit einem großzügigen Wohnbereich sowie einem separaten Schlafzimmer. Ein modernes Badezimmer ergänzt das Raumangebot. Die Wohnfläche beträgt 65,68 m² und wird durch eine Balkonfläche von 6,29 m² erweitert, die einen angenehmen Außenbereich auf Erdgeschossebene bietet.
Im Rahmen der Sanierung wurde das Gebäude mit einer modernen, wärmegedämmten und verputzten Außenfassade versehen. Die Fenster sind dreifach verglast. Die Beheizung sowie die Warmwasserbereitung erfolgen über eine Wärmepumpe auf Basis erneuerbarer Energien, ausgelegt als energieeffizientes Niedertemperatursystem. Zusätzlich sorgt eine kontrollierte Wohnraumlüftung für ein dauerhaft angenehmes Raumklima und unterstützt die nachhaltige Bauweise.
Zur Wohnung gehört ein eigener Kellerraum mit einer Fläche von 5,04 m², der praktischen Stauraum bietet. Ein Stellplatz ist ebenfalls vorhanden. Die gemeinschaftlich genutzten Außenanlagen umfassen gepflegte Grünflächen, einen Fahrradschuppen sowie eine Kinderspielfläche und tragen zu einem angenehmen Wohnumfeld bei.
Diese Wohnung eignet sich ideal für Singles oder Paare, die modernes, energieeffizientes Wohnen schätzen, ebenso wie für Kapitalanleger, die in ein nachhaltig saniertes Objekt mit guter Vermietbarkeit investieren möchten.
Merkmale
Erdgeschoss
als Ferienimmobilie geeignet
Badezimmer: Bad mit Dusche, Bad mit Fenster
Keller
Balkon
Außen-Stellplatz
- Vorderes Haus Nr. 17 | | Effizienzhaus 55 EE -
Effizienzhaus 55 EE
Wohnungsnummer: 2 Geschoss: Erdgeschoss Zimmeranzahl: 2 Zimmer Anzahl Badezimmer: 1 Wohnfläche: 65,68 m² Terrassenfläche: 6,29 m² Kellerraumfläche: 5,04 m² Stellplatz: vorhanden
- Gebäude & Technik -
Massiv errichtetes Gebäude mit moderner, wärmegedämmter und verputzter Außenfassade. Kernsanierung gemäß Effizienzhaus 55 EE Wärmeerzeugung auf Basis erneuerbarer Energien Wärmepumpe Fußbodenheizung Niedrige Vorlauftemperaturen Hochwärmegedämmte Gebäudehülle Wärmebrückenminimierte Bauweise 3-fach verglaste Fenster Luftdichte Gebäudehülle Kontrollierte Wohnraumlüftung
- Außenanlagen & Gemeinschaft -
Installation von E-Ladesäulen dank vorhandener Vorbereitung problemlos möglich durch den neuen Eigentümer Gemeinschaftsflächen Fahrradschuppen Kinderspielfläche im Außenbereich
Grundrisse
Grundrisse
1 / 4
Bausubstanz und Energie
Möchtest du Details zum Energieverbrauch?
Baujahr2026
Zustand der Immobilierenoviert / saniert
EnergieträgerLuft-/Wasser-Wärmepumpe
Preisdetails
Kaufpreis
295560 €295.560 €
4.500 €/m²
Provision für Käufer
provisionsfrei
Weitere Preisinformationen
1 Stellplatz
Geschätzte Gesamtkosten
320.682 €1
Kaufpreis
295.560 €
Kaufnebenkosten
25.122 €
2
Notarkosten (1,5%)
4.433 €
Grunderwerbsteuer (6,5%)
19.211 €
Grundbucheintrag (0,5%)
1.478 €
1Der angezeigte Wert ist eine automatisch berechnete Schätzung von immowelt.
2Bei den Angaben handelt es sich um ortsübliche Werte. Individuelle Kosten können abweichen.
Lage
Appelhülsen, Nottuln (48301)
Der Anbieter hat die genaue Adresse nicht freigegeben
Die Immobilie befindet sich in Appelhülsen, einer Gemeinde im Münsterland mit sehr guter Verkehrsanbindung und gewachsener Infrastruktur. Die Lage eignet sich gleichermaßen für Pendler, Eigennutzer und Kapitalanleger.
Ein wesentlicher Standortvorteil ist die Nähe zum Bahnhof Appelhülsen, der bequem und fußläufig zu erreichbar ist. Von hier bestehen regelmäßige Zugverbindungen in Richtung Münster sowie zu weiteren regionalen Zielen. Die Innenstadt von Münster ist damit zügig und unkompliziert erreichbar, was insbesondere für Berufspendler und Studierende attraktiv ist.
Auch die Anbindung an den Individualverkehr ist sehr gut. Über die nahegelegene Autobahn A43 besteht eine schnelle Verbindung sowohl in Richtung Münster als auch in Richtung Ruhrgebiet.
Appelhülsen verfügt über eine solide Infrastruktur mit Einkaufsmöglichkeiten für den täglichen Bedarf, Kindergärten, Schulen und medizinischer Versorgung. Ergänzt wird dies durch das grüne Umland des Münsterlandes mit vielfältigen Freizeit- und Erholungsmöglichkeiten, Radwegen und Naherholungsflächen.
Die Lage überzeugt insgesamt durch die Kombination aus ruhigem Wohnen, guter ÖPNV-Anbindung und kurzen Wegen zu den wirtschaftlich starken Regionen Münster und Ruhrgebiet.
Weitere Informationen
Sonstiges
Wir bieten nicht nur eine kostenlose Hotline, sondern auch einen Service am Wochenende. Bei Interesse geben Sie bitte immer Ihre vollständigen Kontaktdaten an.
Die Objektbeschreibung beruht ganz oder zum Teil auf Angaben des Eigentümers. Für die Richtigkeit oder Vollständigkeit übernehmen wir keine Gewähr.
Sie wollen Ihre Immobilie ebenfalls professionell vermarkten, rufen Sie uns an, wir stehen Ihnen von Mo. bis So. von 6.00 - 22.00h persönlich zur Seite! Über 40.000 aktive Interessenten warten bereits auf Sie.
HINWEIS: Die gezeigten Darstellungen sind unverbindliche computergenerierte Visualisierungen eines noch nicht vollständig fertiggestellten Bauvorhabens. Sie dienen ausschließlich der Illustration des geplanten Endzustands. Der tatsächliche Ausführungszustand kann insbesondere hinsichtlich Gestaltung, Materialien, Farbgebung, Ausstattung sowie baulicher Details vom dargestellten Konzept abweichen.