Version: 8.26.0Navigation überspringen
1.050.000 €
3 Zimmer  •  222 m²  •  3. Geschoss
Immowelt logo

Penthouse zum Kauf
1050000 €
4.730 €/m²
3 Zimmer  •  222 m²  •  3. Geschoss

Schönes Penthouse mit großer, sonniger Dachterrasse und viel Licht in San Agustín

Mitten in San Agustín, einem ruhigen und gewachsenen Wohnviertel von Palma, liegt dieses frisch renovierte Penthouse in einem gepflegten, kleinen Gebäude mit nur 3 Etagen. Die Lage vereint Privatsphäre und Nähe zum Meer - der Strand ist in wenigen Gehminuten erreichbar.

Ein besonderes Highlight ist die großzügige Außenfläche: Direkt auf Wohnebene erstreckt sich eine ca. 40 m² große, sonnige Terrasse über die gesamte Wohnungsbreite. Darüber hinaus lädt die private, ca. 84 m² große Dachterrasse zu entspannten Stunden mit viel Privatsphäre und Weitblick ein.

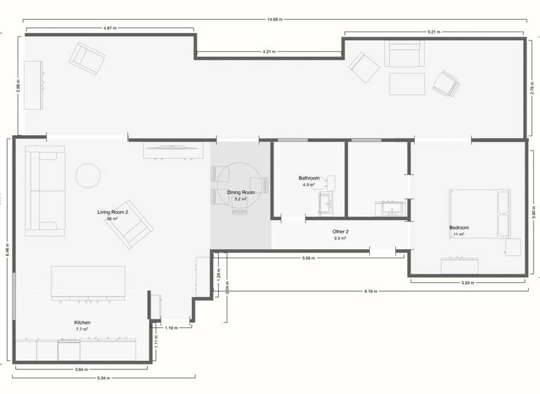
Die Wohnung bietet ca. 98 m² Konstruktionsfläche im Innenbereich und überzeugt durch einen offenen, lichtdurchfluteten Grundriss. Der Wohn- und Essbereich geht fließend in die moderne Küche über. Zwei Schlafzimmer mit Platz für Doppelbetten sowie 2 Badezimmer - eines davon en Suite - schaffen ein komfortables Wohnambiente.

Zur Ausstattung gehören Klimaanlage, Wasserfiltersystem, Aufzug sowie ein großzügiger Garagenstellplatz. Ein gemeinschaftlicher Poolbereich rundet dieses attraktive Angebot ab.

Merkmale

  • 3. Geschoss
  • Personenaufzug
  • Tiefgarage
  • Terrasse
  • voll klimatisiert
  • Swimmingpool

Grundrisse

Grundrisse
1 / 1

Bausubstanz und Energie

Möchtest du Details zum Energieverbrauch?info_energy_calculation-icon
Immowelt logo

Preisdetails

Kaufpreis
1050000 €
4.729,73 €/m²
Provision für Käufer
Bitte beachte, das Angebot kann bei Vertragsabschluss die Zahlung einer Provision beinhalten. Weitere Informationen erhältst Du vom Anbieter.
Weitere Preisinformationen
1 Tiefgaragenstellplatz

Lage

address-icon
Palma De Mallorca (07015)
Der Anbieter hat die genaue Adresse nicht freigegeben
Im Küstengebiet San Agustín hat man das ganze Jahr über das Gefühl im Urlaub zu sein. Der Nachbarsbezirk von Cala Mayor besitzt eine traumhafte Lage am Mittelmeer, nur 15 Autominuten westlich von Mallorcas Hauptstadt. Das ruhige Viertel zieht sowohl Touristen als auch Anwohner, die in den umliegenden Gebieten arbeiten, wegen seiner ausgezeichneten Verbindungen zur Stadt Palma, zum Flughafen, sowie zum Südwesten der Insel an.

Hier finden Sie alle Annehmlichkeiten in nächster Nähe, beispielsweise den minimalistischen und beliebten Zhero Beach Club, ein gutes Fitnessstudio, viele Geschäfte und eine Apotheke. Außerdem verfügt es über alle Arten von Restaurants mit lokaler und internationaler Küche, die einen ausgezeichneten Blick auf das Meer bieten. Ganz in der Nähe befindet sich der Club Nautico de Cala Nova, der für seine Segel- und Kitesurf-Kurse berühmt ist.

San Agustín besteht hauptsächlich aus Mehrfamilienhäusern, von denen die meisten aufgrund der erhöhten Lage des Gebietes eine gute Aussicht auf das Mittelmeer bieten. Die meisten Wohnungen verfügen über einen Gemeinschaftspool und -garten.

Weitere Informationen

Stichworte Anzahl der Schlafzimmer: 2, Anzahl der Badezimmer: 2, Anzahl Terrassen: 1, Balkon-Terrassen-Fläche: 124,00 m², Bundesland: Balearische_Inseln

Weitere Services

Lust auf eine Besichtigung?
Eine Frage zur Immobilie?
Nachricht hinzufügen
Mit der Nutzung der oben angegebenen Telefonnummer oder durch Klicken auf „Kontaktieren“ akzeptierst Du die Allgemeinen Nutzungsbedingungen, denen Du jederzeit widersprechen kannst. Weitere Informationen zum Datenschutz

Über den Anbieter

Theresienstr. 81, 80333 München
partner badge
Partnerschaft
Firma Porta Mallorquina a brand of Homes & Holiday
Firma Porta Mallorquina a brand of Homes & HolidayDein Kontakt
Online-ID: 26KNRHZT7P6V
Referenznummer: MAL-078020
Wie zufrieden bist du mit dieser Seite (nicht mit der Immobilie selbst)?