Version: 8.22.4Navigation überspringen
223.000 €
3 Zimmer  •  73 m²
Immowelt logo

Wohnung zum Kauf
223000 €
3.055 €/m²
3 Zimmer  •  73 m²

ANLEGER AUFGEPASST! Vermietet! Komplett modernisierte 3 Zimmer-Wohnung.

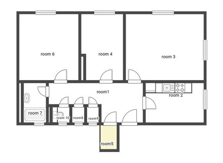
Willkommen bei dieser einzigartigen Immobilie in Klagenfurt am Wörthersee. Diese geräumige 73m² Wohnung wurde modernisiert und liegt im Dachgeschoss.

Die Wohnung bietet drei Zimmer und einen tollen Ausblick mit Stadtblick und Fernblick. Die Böden sind mit Fliesen und Laminat ausgestattet. Eine geräumige Küche mit einer neuen Einbauküche bietet noch Platz für einen Esstisch. Zwei kleine Abstellräume, eine 2m² Loggia, ein Bad mit Fenster, einer Badewanne und Waschmaschinenanschluss.

Die Wohnung ist noch 31.01.2027 an Studenten vermietet. Mieteinnahme: € 751,91 reine Brutto-/Nettomiete ohne Betriebskosten. 

Die moderne und komplett neue Infrarotheizung beheizt die Räume ideal.

Der große Garten im Hinterhof, ein Fahrradabstell- und Trockenraum kann von den Parteien genutzt werden. Ein paar Parkplätze gibt es vor dem Haus für alle Bewohner. 

Ein Lift ist nicht vorhanden, daher bleibt man jung uns sportlich. 

Diese Immobilie ist für Anleger eine großartige Gelegenheit. Nutzen Sie Ihre Chance und erwerben Sie noch heute diese einzigartige Immobilie!

Wenn Sie mehr über dieses phantastische Angebot erfahren möchten, melden Sie sich bei uns.

Sollten Sie eine Finanzierung benötigen, vereinbaren wir gerne für Sie einen unverbindlichen Beratungstermin bei unseren Spezialisten der Volksbank Kärnten eG.  

Wir bitten Sie aus rechtlichen Gründen, Anfragen zur Liegenschaft ausschließlich per E-Mail an nicole.fritz@vbktn.at zu stellen.

Info unter:
VB Realitäten, Nicole Fritz,

Handy: 0660 14 14 200
T: +43 (0)5 09 09-8011
F: +43 (0)5 09 09-9011
M: nicole.fritz@vbktn.at

Besuchen Sie uns auf unserer Homepage unter www.volksbank-kaernten.at/immobilien [http://www.volksbank-kaernten.at/immobilie]

Noch nichts gefunden? Wir informieren Sie über geeignete Immobilienangebote noch vor allen anderen.
Legen Sie jetzt Ihren individuellen Suchagenten unter folgendem Link an. Wir schicken Ihnen passende Immobilien exklusiv zu.
Suchagent anlegen [https://vb-realitaeten.service.immo/registrieren/de]

Der Vermittler ist als Doppelmakler tätig.

Infrastruktur / Entfernungen

Gesundheit
Arzt <500m
Apotheke <500m
Krankenhaus <1.000m
Klinik <1.000m

Kinder & Schulen
Schule <500m
Kindergarten <500m
Universität <1.000m
Höhere Schule <500m

Nahversorgung
Supermarkt <500m
Bäckerei <500m
Einkaufszentrum <1.000m

Sonstige
Bank <500m
Geldautomat <500m
Post <500m
Polizei <500m

Verkehr
Bus <500m
Autobahnanschluss <3.000m
Bahnhof <1.000m
Flughafen <4.000m

Angaben Entfernung Luftlinie / Quelle: OpenStreetMap

Merkmale

  • Einbauküche
  • Garten
  • teilweise möbliert
  • Badezimmer: Badewanne, Bad mit Fenster
  • WG-geeignet
  • Bodenbelag: Fliesen, Laminat
  • Loggia
  • voll erschlossen

Grundrisse

Grundrisse
1 / 1

Virtueller Rundgang

3D tour

Realisiere Dein Projekt

Bausubstanz und Energie

Heizwärmebedarf (HWB)

C

Gesamtenergieeffizienz (fGEE)

  • Baujahr1952
  • Zustand der ImmobilieMassivhaus
  • EnergieträgerElektro
Immowelt logo

Preisdetails

Kaufpreis
223000 €
3.054,79 €/m²
Provision für Käufer
8.028,00 € inkl. 20% USt.
Weitere Preisinformationen

Darlehen in der Höhe von EUR 46,73 läuft noch bis Dezember 2026.

Lage

address-icon
Innere StadtKlagenfurt am Wörthersee (9020)
Die Verkehrsanbindung ist hervorragend. Es gibt eine Bushaltestelle und einen Bahnhof in der Nähe. In der Umgebung gibt es einen Arzt, eine Apotheke, ein Krankenhaus, eine Klinik, eine Schule, einen Kindergarten, eine Universität, eine Höhere Schule, einen Supermarkt, eine Bäckerei und ein Einkaufszentrum.

Weitere Informationen

Stichworte Süd-Balkon/Terrasse, Fahrradraum, Anzahl der Badezimmer: 1, Anzahl der separaten WCs: 1, Anzahl Loggias: 1, Balkon-Terrassen-Fläche: 2,00 m², Bundesland: Kärnten, modernisiert: 2022, modernisiert

Weitere Services

Lust auf eine Besichtigung?
Eine Frage zur Immobilie?
Nachricht hinzufügen
Mit der Nutzung der oben angegebenen Telefonnummer oder durch Klicken auf „Kontaktieren“ akzeptierst Du die Allgemeinen Nutzungsbedingungen, denen Du jederzeit widersprechen kannst. Weitere Informationen zum Datenschutz

Über den Anbieter

Hauptplatz 8, 9170 Ferlach
partner badge
6 Jahre Partnerschaft
Frau Nicole FritzDein Kontakt
Online-ID: 2lkz35f
Referenznummer: OBGC20250624213752751b3d35f9e99
VB Realitäten Gesellschaft m. b. H.
Bewertung: 4,2 von 5 Sternen
Nachricht hinzufügen
Mit der Nutzung der oben angegebenen Telefonnummer oder durch Klicken auf „Kontaktieren“ akzeptierst Du die Allgemeinen Nutzungsbedingungen, denen Du jederzeit widersprechen kannst. Weitere Informationen zum Datenschutz
Wie zufrieden bist du mit dieser Seite (nicht mit der Immobilie selbst)?