




Wohnung zum Kauf138000 €2.200 €/m²2 Zimmer • 62,7 m² • 1. Geschoss
138000 €
2.200 €/m²
2 Zimmer • 62,7 m² • 1. Geschoss
2-Zi-Wohnung im Grünen, Kaminofen, Einbauküche, separater Zugang, ideal für Single oder 2 Personen
Merkmale
- Bezug: Q1 2026
- Souterrain, 1. Geschoss
- Einbauküche
- Außen-Stellplatz
- Badezimmer: Bad mit Dusche, Bad mit Fenster
- Waschraum
- Bodenbelag: Fliesen
- offener Kamin
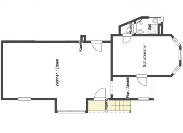
Grundrisse
Grundrisse
1 / 2
Realisiere Dein Projekt
Bausubstanz und Energie
Energieausweis
D
- Baujahr1998
- Zustand der ImmobilieGepflegt
- HeizungsartZentralheizung
- EnergieträgerÖl, Holz
Preisdetails
Kaufpreis
138000 €
2.200,26 €/m²
Preis pro Stellplatz
5000 €
Hausgeld
205 €
Provision für Käufer
3,57% vom Kaufpreis (inkl. MwSt.)
Weitere Preisinformationen
1 Stellplatz, Kaufpreis: 5.000,00 EUR
Geschätzte Gesamtkosten
150.517 €1
Kaufpreis
138.000 €
Kaufnebenkosten
12.517 €
2Notarkosten (1,5%)
2.070 €
Grunderwerbsteuer (3,5%)
4.830 €
Provision für Käufer (3,57%)
4.927 €
Grundbucheintrag (0,5%)
690 €
1Der angezeigte Wert ist eine automatisch berechnete Schätzung von immowelt.
2Bei den Angaben handelt es sich um ortsübliche Werte. Individuelle Kosten können abweichen.
Lage

Weichendorf, Memmelsdorf (96117)
Der Anbieter hat die genaue Adresse nicht freigegeben
Weitere Informationen
Weitere Services
Lust auf eine Besichtigung?
Eine Frage zur Immobilie?
Über den Anbieter
Wohnraum BambergMaklerbüro
Zur Steinleite 25, 96163 Gundelsheim
Partnerschaft
Herr Markus BachmeierDein Kontakt
Online-ID: 2mke252
Referenznummer: K22Me-0985
Wie zufrieden bist du mit dieser Seite (nicht mit der Immobilie selbst)?




