Version: 8.24.0Navigation ĂĽberspringen
Kreissparkasse Fallingbostel in Walsrode
156.247 €
1.313 m² Grundstück

Grundstück zum Kauf • provisionsfrei
156247 €
119 €/m²
1.313 m² Grundstück

WohnbaugrundstĂĽcke in Hodenhagen

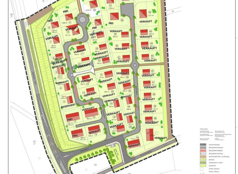
Angeboten werden voll erschlossene BaugrundstĂĽck im neuen Baugebiet "Auf dem Hohen Lande" in Hodenhagen.

Dieses GrundstĂĽck steht stellvertretend fĂĽr insgesamt 48 GrundstĂĽcke die verkauft werden.
Größen ab 497 m², ab 56.658,00 EUR, keine Käuferprovision.

Das vollständige Exposé finden Sie hier im Anhang oder unter https://www.ksk-walsrode.de/de/home/immobilien/auf-dem-hohen-lande.html?n=true&stref=opener

Merkmale

  • 1.313 m² GrundstĂĽck
Individuelle Ausstattungsmerkmale:

- WA3 / GF: 240 m² / GZ: 120 m²

Grundrisse

Grundrisse
1 / 1

Realisiere Dein Projekt

Bausubstanz und Energie

Der Anbieter hat keine Informationen zu Energieverbrauch oder Zustand der Immobilie bereit gestellt.
MediumRectangleTop

Preisdetails

Kaufpreis
156247 €
119 €/m²
Provision für Käufer
provisionsfrei; prov.frei
Geschätzte Gesamtkosten
156.247 €1
Kaufpreis
156.247 €
1Der angezeigte Wert ist eine automatisch berechnete Schätzung von immowelt.

Lage

address-icon
Hodenhagen (29693)
Der Anbieter hat die genaue Adresse nicht freigegeben
Die Gemeinde Hodenhagen liegt idyllisch im südlichen Teil der Lüneburger Heide, im Landkreis Heidekreis in Niedersachsen. Sie gehört zur Samtgemeinde Ahlden und bietet eine attraktive Kombination aus naturnahem Wohnen und guter Infrastruktur. Hodenhagen zeichnet sich durch eine ruhige, familienfreundliche Wohnlage mit hohem Freizeitwert aus. Die Umgebung ist geprägt von weitläufigen Wiesen, Wäldern und Flusslandschaften entlang der Aller - ideal für Spaziergänge, Fahrradtouren und Erholung in der Natur. Besonders bekannt ist der Ort für den beliebten Serengeti-Park, der Besucher aus der ganzen Region anzieht. Dennoch ist Hodenhagen verkehrstechnisch gut angebunden: Über die nahegelegene A7 und die Bundesstraße B209 sind die Städte, Hannover, Bremen und Hamburg gut erreichbar. Auf der örtliche Bahnhof bietet regelmäßige Regionalverbindungen, insbesondere in Richtung Hannover und Soltau. Vor Ort finden sich alle wichtigen Einrichtungen des täglichen Bedarfs, darunter Supermärkte, Ärzte, Kindergärten und eine Grundschule. Weiterführende Schulen befinden sich in den Nachbarorten und sind gut erreichbar. Insgesamt bietet Hodenhagen eine lebenswerte Umgebung für Familien, Paare und Naturliebhaber - mit hoher Lebensqualität und guter Erreichbarkeit urbaner Zentren.

Weitere Informationen

Sonstiges VERBRAUCHERINFO
1. Maklerleistung ist der Nachweis der Gelegenheit zum Abschluss eines Vertrages bzw. Vermittlung eines Vertrages ĂĽber eine Immobilie gegen die Courtagezahlungspflicht des Kunden
2. Unternehmer,Anschrift,Beschwerdeadressat
LBSi NordWest, Himmelreichallee 40, 48149 MĂĽnster, Tel:0251/973233-997, eMail:info@lbsi-nw.de
GF:Martin Englert, Volker Goldbeck
3. Es besteht ein Widerrufsrecht
4. Weitere Infos: verbraucherinfo.lbsi-nordwest.de

Verbraucherinformationen - http://verbraucherinfo.lbsi-nordwest.de Stichworte Bundesland: Niedersachsen

Weitere Services

Lust auf eine Besichtigung?
Eine Frage zur Immobilie?
Nachricht hinzufĂĽgen
Mit der Nutzung der oben angegebenen Telefonnummer oder durch Klicken auf „Kontaktieren“ akzeptierst Du die Allgemeinen Nutzungsbedingungen, denen Du jederzeit widersprechen kannst. Weitere Informationen zum Datenschutz

Ăśber den Anbieter

Moorstr. 1, 29664 Walsrode
partner badge
10 Jahre Partnerschaft
Herr Cord BösenbergDein Kontakt
Online-ID: 2lhdf5v
Referenznummer: 1863-08
Kreissparkasse Fallingbostel in Walsrode
Kreissparkasse Fallingbostel in Walsrode
Bewertung: 5 von 5 Sternen
Nachricht hinzufĂĽgen
Mit der Nutzung der oben angegebenen Telefonnummer oder durch Klicken auf „Kontaktieren“ akzeptierst Du die Allgemeinen Nutzungsbedingungen, denen Du jederzeit widersprechen kannst. Weitere Informationen zum Datenschutz
MediumRectangleTop
MediumRectangleBottom
MediumRectangleTop
Wie zufrieden bist du mit dieser Seite (nicht mit der Immobilie selbst)?