Version: 8.22.4Navigation überspringen
313.800 €
3 Zimmer  •  125 m²  •  800 m² Grundstück
Immowelt logo

Haus zum Kauf
313800 €
2.510 €/m²
3 Zimmer  •  125 m²  •  800 m² Grundstück

Neubau | Modernes Holzmassivhaus in Dreistetten

NEUBAU | MODERNES HOLZMASSIVHAUS IN DREISTETTEN

Neubauprojekt auf Baurechtsgrund - Vertragsabschluss direkt mit dem Bauträger, individuelle Anpassungen in der Planungsphase möglich.

Dieses moderne Holzmassivhaus vereint nachhaltige Bauweise mit zeitgemäßem Wohnkomfort. Der Neubau überzeugt durch klare Architektur, ein gesundes Raumklima und durchdachte Grundrisse. In ruhiger, naturnaher Lage von Dreistetten genießen Sie hohe Lebensqualität, Privatsphäre und Wohnen im Einklang mit der Natur.

Das Baurecht ermöglicht die Nutzung des Grundstücks über einen langfristig gesicherten Zeitraum bei klar kalkulierbaren Baurechtszinsen und bietet damit eine wirtschaftlich interessante Alternative zum klassischen Grundstückskauf.

OBJEKTDETAILS:

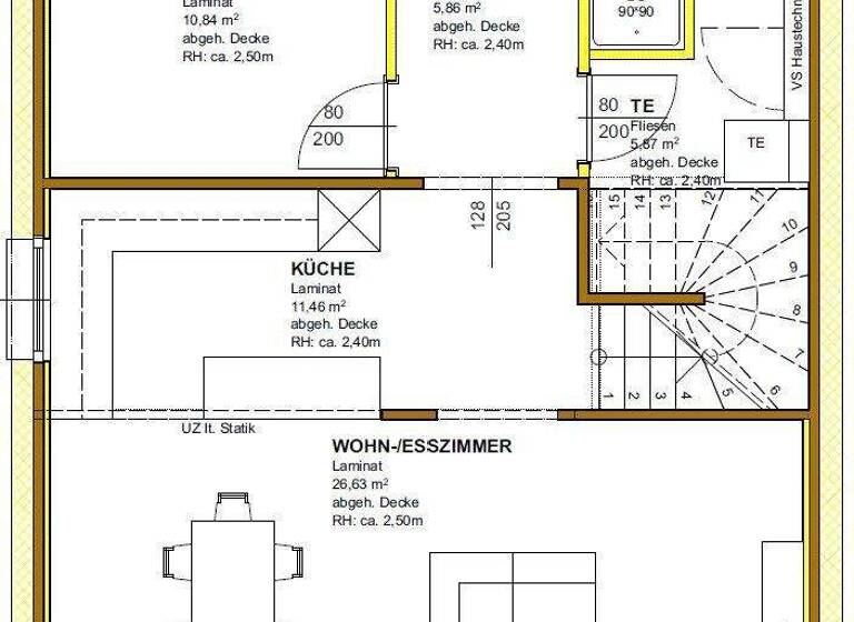
ERDGESCHOSS

* Diele
* Gäste WC 
* Offene Küche
* Wohn- und Esszimmer
* Gästezimmer oder Büro
* Wirtschaftsraum
* Abstellraum
* Zugang zum Obergeschoss

OBERGESCHOSS

* Galerie
* Zimmer 1
* Zimmer 2
* Zimmer 3
* Schrankraum
* Bad mit WC

KELLER

* optional gegen Aufpreis möglich

LEISTUNG | PREIS INKLUSIVE

* Holzmassiv
* Bodenplatte
* Pultdach
* Terrassenüberdachung
* Luftwärme-Pumpe Daikin mit Kühlfunktion
* Fußbodenheizung
* 3-fach-verglaste Fenster
* Rollläden EG, OG (elektrisch)
* Belagsfertige Ausführung

PREIS EXKLUSIVE

* Aufschließungskosten ca. EUR 25.000,-
* Nebenkosten ca. EUR 11.000,-

BAURECHT

* Sicherheit für 99 Jahre. Die Rechtssicherheit wird durch Eintragung ins Grundbuch, einen Baurechtsvertrag und Treuhandabwicklung zwischen beiden Parteien gewährleistet. Das Baurecht ist verkäuflich, vererblich und verschenkbar!
* Monatliche Kosten | EUR 295,-

VERFÜGBARKEIT:

nach Vereinbarung

ZUSAMMENFASSENDE HIGHLIGHTS:

* Grundstück: 800 m² 
* Wohnfläche: 125 m²
* Individuelle Raumplanung
* Modernes Niedrigenergiehaus
* Ruhelage

UNSER SERVICE

Vereinbaren Sie direkt einen Besichtigungstermin, um sich vor Ort zu überzeugen!

Gerne kann ich Ihnen auch mit Finanzierungsfragen mit Rat und Tat zur Seite stehen. 

Ich freue mich auf Ihren Anruf oder E-Mail: 

Patricia Sverak | +43 664 579 89 33 | p.sverak@donauimmo.at. 

 

Der Vermittler ist als Doppelmakler tätig.

Infrastruktur / Entfernungen

Gesundheit
Arzt <4.500m
Apotheke <2.500m
Klinik <2.500m

Kinder & Schulen
Schule <2.500m
Kindergarten <4.500m

Nahversorgung
Supermarkt <2.500m
Bäckerei <2.500m
Einkaufszentrum <9.500m

Sonstige
Bank <2.500m
Geldautomat <2.500m
Post <5.000m
Polizei <5.000m

Verkehr
Bus <500m
Bahnhof <2.000m
Autobahnanschluss <6.000m
Flughafen <9.000m

Angaben Entfernung Luftlinie / Quelle: OpenStreetMap

Merkmale

  • 800 m² Grundstück

Grundrisse

Grundrisse
1 / 2

Realisiere Dein Projekt

Bausubstanz und Energie

Der Anbieter hat keine Informationen zum Energieverbrauch bereit gestellt.
  • Baujahr2026
  • Zustand der ImmobilieNeubau, Massivhaus
  • HaustypNiedrigenergiehaus
  • HeizungsartFußbodenheizung
  • EnergieträgerLuft-/Wasser-Wärmepumpe
Immowelt logo

Preisdetails

Kaufpreis
313800 €
2.510,40 €/m²
Provision für Käufer
€ 3.801,60

Lage

address-icon
Dreistetten (2753)
2753 Dreistetten - naturnah, ruhig und lebenswert | liegt idyllisch am Fuße der Hohen Wand und überzeugt durch seine ruhige, naturnahe Wohnlage. Umgeben von Wiesen, Wäldern und zahlreichen Spazier- und Wanderwegen bietet der Ort hohe Lebensqualität und Erholung direkt vor der Haustüre. Markt Piesting, Wiener Neustadt, Bad Vöslau sowie Autobahnanschluß sind in 20 Minuten erreichbar - ideal für alle, die ländliche Idylle mit guter Anbindung verbinden möchten.

Weitere Informationen

Stichworte Anzahl der Badezimmer: 2, Anzahl der separaten WCs: 2, Bundesland: Niederösterreich

Weitere Services

Lust auf eine Besichtigung?
Eine Frage zur Immobilie?
Nachricht hinzufügen
Mit der Nutzung der oben angegebenen Telefonnummer oder durch Klicken auf „Kontaktieren“ akzeptierst Du die Allgemeinen Nutzungsbedingungen, denen Du jederzeit widersprechen kannst. Weitere Informationen zum Datenschutz

Über den Anbieter

Obere Landstraße 9/2, 3500 KREMS
partner badge
10 Jahre Partnerschaft
Frau Patricia SverakDein Kontakt
Online-ID: 2nw9956
Referenznummer: OBGC20260116175226498aaab623b59
Donauimmobilien dieHausberater24 GmbH & Co KG
Donauimmobilien dieHausberater24 GmbH & Co KG
Bewertung: 4,8 von 5 Sternen
Nachricht hinzufügen
Mit der Nutzung der oben angegebenen Telefonnummer oder durch Klicken auf „Kontaktieren“ akzeptierst Du die Allgemeinen Nutzungsbedingungen, denen Du jederzeit widersprechen kannst. Weitere Informationen zum Datenschutz
Wie zufrieden bist du mit dieser Seite (nicht mit der Immobilie selbst)?