Version: 8.25.1Navigation überspringen
439.500 €
5 Zimmer  •  107 m²  •  275 m² Grundstück
Immowelt logo

Doppelhaushälfte zum Kauf
439500 €
4.107 €/m²
5 Zimmer  •  107 m²  •  275 m² Grundstück

Endlich angekommen! Neu errichtete Doppelhaushälfte in Top-Lage!

Diese modern errichtete Neubau-Doppelhaushälfte in Rostock bietet jungen Familien mit und ohne Kindern genau das, was heute wichtig ist: durchdachte Grundrisse, energieeffiziente Technik und ein bezugsfertiges Zuhause ohne Baustress.

Auf rund 110 m² Wohnfläche verteilen sich ein großzügiger Wohn-/Essbereich mit offener Küche, ein Gäste-WC, ein Hauswirtschaftsraum sowie drei gut geschnittene Schlafzimmer im Obergeschoss - ideal für Elternschlafzimmer, zwei Kinderzimmer und ggf. Homeoffice. Das Grundstück mit ca. 275 m² bietet genügend Platz zum Spielen im Garten, für Terrasse, Sandkiste & Co.

Die Terrasse und der Garten sind nach Südwesten ausgerichtet und bieten viele Sonnenstunden bis in den Abend hinein - perfekt für Familienzeit im Freien. Die Außenanlagen und der Garten sind bewusst noch nicht vollständig angelegt. So sparen Käufer die entsprechenden Baukosten und können im Frühjahr ihren Garten ganz nach eigenen Wünschen gestalten - von der Terrasse über Hochbeete bis hin zum Spielbereich für die Kinder.

Das Haus wurde 2025 fertiggestellt und ist sofort bezugsfrei. Als Käufer eines Neubaus profitieren Sie von moderner Bauweise, aktueller Haustechnik und 5 Jahren Gewährleistung - ohne Sanierungsstau und ohne Bau-Risiko. Hier heißt es: Einziehen, Möbel stellen und den Rest Schritt für Schritt nach eigenen Vorstellungen gestalten.

Merkmale

  • Bezug: sofort
  • 275 m² Grundstück
  • Kein Keller
  • Terrasse
  • 2 Stellplätze: 2 Außen-Stellplätze
Die 2025 fertiggestellte Neubau-Doppelhaushälfte bietet eine hochwertige, moderne Ausstattung und ist sofort bezugsfertig. Außenmauerwerk aus 36,5 cm Porenbeton in Kombination mit Kalksandstein-Innenwänden sorgt für sehr guten Wärme- und Schallschutz. Dreifach verglaste Fenster mit zweifarbigem Profil sowie Naturstein-Fensterbänke unterstreichen den Qualitätsanspruch.

Im gesamten Wohnbereich ist ein heller, moderner Vinylboden verlegt, der angenehm, pflegeleicht und zeitlos ist - ideal für den Familienalltag mit Kindern. Beheizt wird das Haus über eine effiziente Luft-Wasser-Wärmepumpe (Vaillant) mit Fußbodenheizung im Erd- und Obergeschoss, im Bad zusätzlich mit Handtuchheizkörper. Zwei moderne, ebenerdige Duschen mit Edelstahlrinne und Glasduschwänden, hochwertige Fliesen in Bädern und Hauswirtschaftsraum, Vorwandinstallationen, zwei Waschbecken und zwei WCs runden den Sanitärbereich ab. Innenputz in Gips (in den Bädern Kalkzement) sowie Malerarbeiten in Q4 mit Malervlies sorgen für ein sehr gepflegtes, zeitgemäßes Erscheinungsbild.

Der Dachboden ist begehbar, mit OSB beplankt, verfügt über Stromanschluss und ein Dreiecksfenster und ist ausbaufähig. Für E-Mobilität ist ein Erdkabel für eine Wallbox vorbereitet, zusätzlich ein Stromanschluss für die Außenanlage.

Garten und Außenanlagen sind bewusst noch nicht fertig angelegt - so sparen Käufer Kosten und können die Gestaltung im Frühjahr ganz individuell nach eigenen Wünschen umsetzen. Die sonnige Südwest-Ausrichtung von Terrasse und Garten bietet viele Sonnenstunden bis in den Abend und macht den Außenbereich zu einem idealen Ort für Familienzeit im Freien.

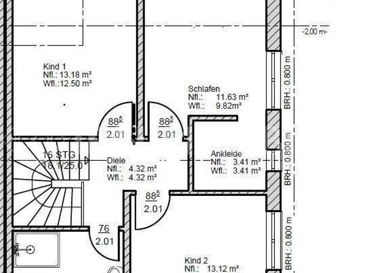
Grundrisse

Grundrisse
1 / 2

Virtueller Rundgang

3D tour

Realisiere Dein Projekt

Bausubstanz und Energie

Energieausweis

A
  • Baujahr2025
  • Zustand der Immobilieneuwertig
  • HeizungsartZentralheizung: Fußbodenheizung
  • EnergieträgerLuft-/Wasser-Wärmepumpe
Immowelt logo

Preisdetails

Kaufpreis
439500 €
4.107,48 €/m²
Provision für Käufer
2,975% inklusive Umsatzsteuer inkl. MwSt.
Weitere Preisinformationen
2 Stellplätze
Geschätzte Gesamtkosten
487.758 €1
Kaufpreis
439.500 €
Notarkosten (1,5%)
6.593 €
Grunderwerbsteuer (6%)
26.370 €
Provision für Käufer (2,98%)
13.097 €
Grundbucheintrag (0,5%)
2.198 €
1Der angezeigte Wert ist eine automatisch berechnete Schätzung von immowelt.
2Bei den Angaben handelt es sich um ortsübliche Werte. Individuelle Kosten können abweichen.

Lage

address-icon
Musknips 16aLichtenhagenRostock (18107)
Die Doppelhaushälfte befindet sich in ruhiger, familienfreundlicher Lage von Rostock im Wohngebiet "Musknips". Das Umfeld ist geprägt von moderner Einfamilien- und Doppelhausbebauung mit wenig Verkehr - ideal für junge Familien mit Kindern.

Kindergarten, Schulen sowie Einkaufsmöglichkeiten für den täglichen Bedarf sind in wenigen Fahrminuten erreichbar. Bushaltestellen bzw. der Anschluss an den ÖPNV sorgen für eine gute Anbindung in die Rostocker Innenstadt. Auch die Ostsee und die umliegenden Naherholungsgebiete sind schnell erreichbar und bieten eine hohe Lebensqualität in der Freizeit.

Durch die Lage innerhalb Rostocks profitiert man zudem von einer guten Infrastruktur mit Ärzten, Apotheken, Supermärkten und diversen Freizeitangeboten, während man zu Hause dennoch ruhig und im Grünen wohnt. Die nach Südwesten ausgerichtete Terrasse und der Garten unterstützen das angenehme Wohngefühl mit vielen Sonnenstunden.

Weitere Informationen

Sonstiges Unser Service für Sie als Eigentümer: Wir bewerten Ihre Immobilie kostenfrei und unverbindlich und stehen bis zum erfolgreichen Verkauf als Partner an Ihrer Seite. IPN IMMOBILIEN steht als inhabergeführtes Maklerunternehmen mit seinen Mitarbeitern und Kollegen für die Werte Verlässlichkeit, Diskretion und Seriosität. Nehmen Sie einfach Kontakt mit uns auf oder kommen Sie vorbei. Wir freuen uns auf das Gespräch mit Ihnen.

Alle Angaben sind ohne Gewähr und basieren ausschließlich auf Informationen, die uns vom Auftraggeber / Verkäufer übermittelt wurden. Wir bitten daher um Verständnis, dass wir keine keine Gewähr für die Vollständigkeit, Richtigkeit und Aktualität dieser Angaben übernehmen können. Stichworte Nutzfläche: 113,00 m², Anzahl der Schlafzimmer: 3, Anzahl der Badezimmer: 2, Anzahl der separaten WCs: 2, Anzahl Terrassen: 1, 2 Etagen

Weitere Services

Lust auf eine Besichtigung?
Eine Frage zur Immobilie?
Nachricht hinzufügen
Mit der Nutzung der oben angegebenen Telefonnummer oder durch Klicken auf „Kontaktieren“ akzeptierst Du die Allgemeinen Nutzungsbedingungen, denen Du jederzeit widersprechen kannst. Weitere Informationen zum Datenschutz

Über den Anbieter

Grubenstr. 44, 18055 Rostock
Herr Christian Konarski
Herr Christian KonarskiDein Kontakt
Online-ID: 26DXIR1BHZ2Z
Referenznummer: 1910
IPN Immobilien GmbH
title
IPN Immobilien GmbH
Bewertung: 4,1 von 5 Sternen
Nachricht hinzufügen
Mit der Nutzung der oben angegebenen Telefonnummer oder durch Klicken auf „Kontaktieren“ akzeptierst Du die Allgemeinen Nutzungsbedingungen, denen Du jederzeit widersprechen kannst. Weitere Informationen zum Datenschutz
Wie zufrieden bist du mit dieser Seite (nicht mit der Immobilie selbst)?