

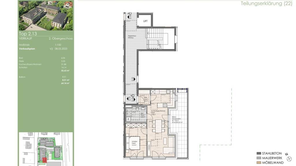
Wohnung zum Kauf459000 €7.156 €/m²2 Zimmer • 64,1 m² • 2. Geschoss
459000 €
7.156 €/m²
2 Zimmer • 64,1 m² • 2. Geschoss
FrĂĽhlingstraĂźe 30a: 2-Zimmer-Wohnung im 2.OG, 2.13
Merkmale
- 2. Geschoss
- Personenaufzug
- Balkon
- Garten
- Bad mit Dusche
- Bodenbelag: Fliesen, Parkett
Realisiere Dein Projekt
Bausubstanz und Energie
Der Anbieter hat keine Informationen zum Energieverbrauch bereit gestellt.
- Zustand der ImmobilieNeubau, Massivhaus, neuwertig
- HeizungsartFuĂźbodenheizung
- EnergieträgerFernwärme
Preisdetails
Kaufpreis
459000 €
7.156,22 €/m²
Provision für Käufer
Bitte beachte, das Angebot kann bei Vertragsabschluss die Zahlung einer Provision beinhalten. Weitere Informationen erhältst Du vom Anbieter.
Geschätzte Gesamtkosten
500.631 €1
Kaufpreis
459.000 €
Kaufnebenkosten
41.631 €
2Notarkosten (1,5%)
6.885 €
Grunderwerbsteuer (3,5%)
16.065 €
Provision für Käufer (3,57%)
16.386 €
Grundbucheintrag (0,5%)
2.295 €
1Der angezeigte Wert ist eine automatisch berechnete Schätzung von immowelt.
2Bei den Angaben handelt es sich um ortsübliche Werte. Individuelle Kosten können abweichen.
Lage

Frühlingstraße 30 a-c, Bad Reichenhall (83435)
Weitere Informationen
Weitere Services
Lust auf eine Besichtigung?
Eine Frage zur Immobilie?
Ăśber den Anbieter
Bau I Holz I Immobilien HillebrandMaklerbĂĽro
Krimpling 1, Wals Wals
10 Jahre Partnerschaft
Frau Christina LembergerDein Kontakt
Online-ID: 2fpgb56
Referenznummer: OBGC2024071015042219114b272eeec

Bau I Holz I Immobilien Hillebrand
Wie zufrieden bist du mit dieser Seite (nicht mit der Immobilie selbst)?
