Version: 8.22.6Navigation überspringen
545.000 €
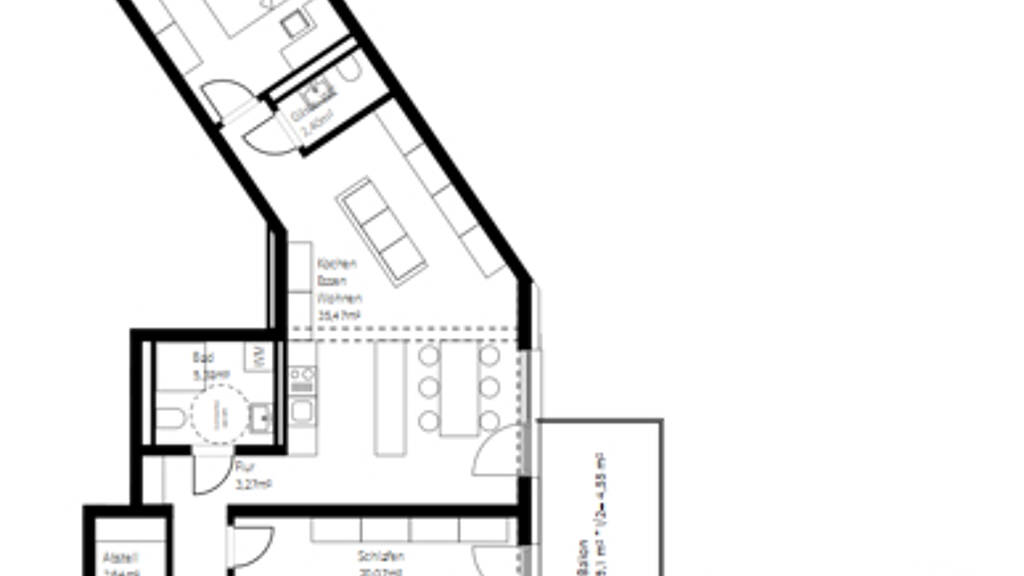
3 Zimmer  •  97,4 m²  •  2. Geschoss
Immowelt logo

Wohnung zum Kauf - Erstbezug
545000 €
5.593 €/m²
3 Zimmer  •  97,4 m²  •  2. Geschoss

Neubau 3-Zimmer-Eigentumswohnung mit Tiefgarage

Eine 3-Zimmer-Neubauwohnung bietet exklusiven Wohnkomfort in einer gehobenen Umgebung.

Diese moderne Neubau-Dreizimmerwohnung befindet sich im zweiten Obergeschoss eines Mehrfamilienhauses und verfügt über einen großzügigen Balkon. Die Wohnung ist nach den Standards eines Effizienzhauses KfW 40 mit QNG zertifiziert, was höchste Energieeffizienz und Bauqualität garantiert. Zusätzlich bietet sie finanzielle Vorteile durch zinsgünstige Konditionen der KfW-Bank. Sie profitiert von einem gesicherten Förderdarlehen in Höhe von 150.000 EUR zu einem Zinssatz von 2,20%. Dadurch wird die Investition in diese hochwertige Immobilie noch attraktiver und nachhaltiger.

Entdecken Sie ein neues Maß an Komfort und Lebensqualität in dieser modernen Wohnung. Die drei geräumigen Zimmer bieten flexible Nutzungsmöglichkeiten für Schlafzimmer, Home-Office oder Gästezimmer. Dank der modernen Neubauqualität nach den neuesten Standards profitieren Sie von hochwertiger Bauweise und modernster Technologie.

Ihr Fahrzeug ist sicher und bequem in der hauseigenen Tiefgarage oder auf einem oberirdischen Parkplatz untergebracht. Der großzügige Balkon lädt zu entspannten Momenten im Freien ein, während die großen Fenster reichlich Licht in die Räume strömen lassen und eine angenehm helle und einladende Atmosphäre schaffen.
Die zentrale Lage ermöglicht kurze Wege zu Einkaufsmöglichkeiten, Restaurants und öffentlichen Verkehrsmitteln. Erleben Sie ein zeitgemäßes Wohnkonzept, das Komfort, Nachhaltigkeit und eine hohe Lebensqualität vereint.

Kaufpreis Wohnung: EUR 498.000,00
Kaufpreis für einen Tiefgaragenstellplatz: EUR 32.000,00
Kaufpreis für einen oberirdischer Stellplatz: EUR 15.000,00.
Gesamt: EUR 545.000,00

Merkmale

  • 2. Geschoss
  • Personenaufzug
  • Tiefgarage
Lüftungsanlage mit Wärmerückgewinnung: Die Wohnung ist mit einer modernen Lüftungsanlage
ausgestattet, die eine kontinuierliche Frischluftzufuhr gewährleistet und dabei Wärme aus der
abgeführten Luft zurückgewinnt.
Dreifach verglaste Fenster: Die dreifach verglasten Fenster bieten hervorragende Isolierung, sowohl thermisch als auch akustisch.
Elektrische Lamellenraffstoreanlage: Die elektrische Lamellenraffstoreanlage ermöglicht es, das Tageslicht individuell zu regulieren und gleichzeitig die Privatsphäre zu wahren.
Bodenbeläge: Die Böden in der Wohnung sind mit Fliesen und Parkett gestaltet, was eine harmonische Kombination aus Funktionalität und Ästhetik schafft.
Gegensprechanlage mit Videosprechanlage: Die Wohnung verfügt über eine moderne Gegensprechanlage mit Videosprechanlage, die Sicherheit und Kommunikation erleichtert.
Glasfaseranschluss: Ein Glasfaseranschluss ist in der Wohnung vorhanden, um schnelle Internetverbindungen und moderne Kommunikationsmöglichkeiten zu gewährleisten.
Heizung/Fernwärme: Die Beheizung der Wohnung erfolgt über Fernwärme, was eine nachhaltige und effiziente Heizmethode darstellt.
Diese umfassende Ausstattung schafft ein zeitgemäßes und komfortables Wohnerlebnis. Für weitere Informationen kontaktieren Sie uns gerne.

Realisiere Dein Projekt

Bausubstanz und Energie

Energieausweis

Ein Energieausweis ist für diesen Gebäudetyp nicht notwendig.
  • Baujahr2026
  • Zustand der ImmobilieErstbezug
  • HeizungsartZentralheizung: Fußbodenheizung
  • EnergieträgerFernwärme
Immowelt logo

Preisdetails

Kaufpreis
545000 €
5.593,19 €/m²
Provision für Käufer
Bitte beachte, das Angebot kann bei Vertragsabschluss die Zahlung einer Provision beinhalten. Weitere Informationen erhältst Du vom Anbieter.
Weitere Preisinformationen
1 Tiefgaragenstellplatz
Geschätzte Gesamtkosten
594.431 €1
Kaufpreis
545.000 €
Notarkosten (1,5%)
8.175 €
Grunderwerbsteuer (3,5%)
19.075 €
Provision für Käufer (3,57%)
19.456 €
Grundbucheintrag (0,5%)
2.725 €
1Der angezeigte Wert ist eine automatisch berechnete Schätzung von immowelt.
2Bei den Angaben handelt es sich um ortsübliche Werte. Individuelle Kosten können abweichen.

Lage

address-icon
Burghausen (84489)
Der Anbieter hat die genaue Adresse nicht freigegeben
Die Wohnung befindet sich in einer äußerst günstigen Lage in Burghausen Neustadt, direkt am Stadtpark gelegen. Diese erstklassige Lage bietet eine Vielzahl von Vorzügen. Für den täglichen Bedarf finden Sie Einkaufsmöglichkeiten in unmittelbarer Nähe. Dies ermöglicht Ihnen bequemes und zeitsparendes Einkaufen. Dank der zentralen Lage haben Sie wahrscheinlich auch eine gute Anbindung an öffentliche Verkehrsmittel, was das Erreichen anderer Stadtteile oder des Stadtzentrums erleichtert. Sollten Sie Interesse haben, freuen wir uns über Ihre Kontaktaufnahme.

Weitere Informationen

Stichworte Energieversorgung mit alternativen Energien, Tiefgarage vorhanden, Nutzfläche: 10,00 m², Anzahl der Schlafzimmer: 2, Anzahl der Badezimmer: 1, Balkon-Terrassen-Fläche: 9,10 m², 7 Etagen

Weitere Services

Lust auf eine Besichtigung?
Eine Frage zur Immobilie?
Nachricht hinzufügen
Mit der Nutzung der oben angegebenen Telefonnummer oder durch Klicken auf „Kontaktieren“ akzeptierst Du die Allgemeinen Nutzungsbedingungen, denen Du jederzeit widersprechen kannst. Weitere Informationen zum Datenschutz

Über den Anbieter

Wackerstr. 42, 84489 Burghausen
partner badge
6 Jahre Partnerschaft
Herr Waldemar RitterDein Kontakt
Online-ID: 2h37r5s
Referenznummer: SWR 3.2.2
REWWO Immobilienvermittlung GbR
REWWO Immobilienvermittlung GbR
Nachricht hinzufügen
Mit der Nutzung der oben angegebenen Telefonnummer oder durch Klicken auf „Kontaktieren“ akzeptierst Du die Allgemeinen Nutzungsbedingungen, denen Du jederzeit widersprechen kannst. Weitere Informationen zum Datenschutz
Wie zufrieden bist du mit dieser Seite (nicht mit der Immobilie selbst)?