Version: 8.24.0Navigation überspringen
Kreis-Sparkasse Northeim
649.000 €
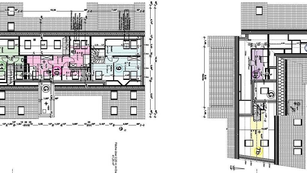
5 Zimmer  •  139,8 m²

Wohnung zum Kauf - Erstbezug • provisionsfrei
649000 €
4.642 €/m²
5 Zimmer  •  139,8 m²

QNG-zertifizierte Neubauwohnungen in Göttingen/Groß Ellershausen!

Quartier am Damm!

Weitere Informationen und ggf. auch Videos vom Baufortschritt finden Sie hier https://wohnen-mitaussicht.de/

In guter Lage, nur wenige Minuten vom Kaufpark in Göttingen entfernt, entstehen am Hang des Leinetales in Göttingen/Groß Ellershausen eine Mehrfamilienhauswohnanlage im KfW 40 EE Standard mit 20 Wohneinheiten in zwei Gebäuden und einer gemeinsamen Tiefgarage mit 26 Stellplätzen. Durch die vielfältigen Wohnungsgrößen zwischen 63 m² und 140 m² (2 bis 5 Zimmerwohnungen) bieten sich viele Möglichkeiten, die Räume nach individuellen Wünschen und Vorstellungen einzurichten.

In Nähe der Komfortwohnungen befinden sich Einkaufsmöglichkeiten, Cafés, Banken, Ärzte und Freizeiteinrichtungen. Sie können Freunde in der Stadt treffen und die Dinge des täglichen Lebens fußläufig erledigen.

Die modernen Wohnungen bieten Ihnen durch die gute bauliche und technische Ausstattung eine hohe Lebensqualität, die Sie auch im Alter aufgrund der Barrierefreiheit lange genießen können.
Auch für junge Menschen sind die Annehmlichkeiten der Wohnungen wie z.B. große Fenster, hohe Räume, automatische Lüftung, LAN-Kabel, ebenerdige Dusche und der energiesparende Baustandard attraktiv. Über die gute Verkehrsanbindung sowohl per Fahrrad, Auto und Bus erreichen sie Göttingen und über die A7 u. a. die Städte Hildesheim, Hannover und Kassel. Dies macht den Standort auch für Berufspendler interessant.

Merkmale

  • Dachgeschoss
  • Personenaufzug
  • Kelleranteil
  • Tiefgarage
  • Gäste-WC
  • Balkon
  • Badezimmer: Badewanne, Bad mit Dusche, Bad mit Fenster
Individuelle Ausstattungsmerkmale:

- SAT-TV
- Isolier-3 Fachverglasung
- PV-Anlage

- Barrierefreiheit: Breite, rollstuhlgeeignete Türen , niedrige Schwellen zu den Balkonen u. Terrassen, ebenerdige Duschen, automatischer Türöffner an der Hauseingangstür

- hochwertiger Designbelag in den Wohnräumen

- Personenlift um Ihre Wohnung bequem zu erreichen

- hoher energetischer Standard (KFW40EE) für niedrigen Energieverbrauch

- Installation einer Photovoltaikanlage

- Heizung mit Luft-Wasser-Wärmepumpe und Fußbodenheizung

- Lüftung mit Wärmerückgewinnung: bedeutet Energiesparen, da der Luftaustausch auch bei geschlossenen Fenstern gewährleistet ist; somit können Sie ruhig und ungestört bei frischer Luft schlafen

- 20 Tiefgaragenstellplätze stehen zur Verfügung

- Jede Wohnung verfügt über eine Terrasse, einen Balkon oder
eine Dachterrasse

- Alle Fenster (dreifachverglast) erhalten Raffstores mit Aluminiumlamellen mit elektrischem Antrieb

- Es werden Kommunikationsleitungen für ein kleines, wohnungsinternes Datennetzwerk gemäß Baubeschreibung installiert

- Die Wohnungen werden, soweit nicht gefließt, mit einem mineralischen Quarzanstrich versehen, weiß gestrichen und endgereinigt übergeben

Nähere Angaben zu den Punkten Objektbeschreibung und Ausstattung finden Sie in der Bau- und Leistungsbeschreibung, diese geht dieser Beschreibung im Zweifelsfall vor.

Realisiere Dein Projekt

Bausubstanz und Energie

Energieausweis

Ein Energieausweis ist für diesen Gebäudetyp nicht notwendig.
  • Baujahr2026
  • Zustand der ImmobilieMassivhaus, Erstbezug
  • HeizungsartFußbodenheizung
  • EnergieträgerLuft-/Wasser-Wärmepumpe

Preisdetails

Kaufpreis
649000 €
4.642,01 €/m²
Preis pro Stellplatz
30000 €
Provision für Käufer
provisionsfrei; prov.frei
Weitere Preisinformationen
1 Tiefgaragenstellplatz, Kaufpreis: 30.000,00 EUR
Geschätzte Gesamtkosten
694.430 €1
Kaufpreis
649.000 €
Notarkosten (1,5%)
9.735 €
Grunderwerbsteuer (5%)
32.450 €
Grundbucheintrag (0,5%)
3.245 €
1Der angezeigte Wert ist eine automatisch berechnete Schätzung von immowelt.
2Bei den Angaben handelt es sich um ortsübliche Werte. Individuelle Kosten können abweichen.

Lage

address-icon
Groß EllershausenGöttingen (37079)
Der Anbieter hat die genaue Adresse nicht freigegeben
Groß Ellershausen liegt am Hang des Leinetales, fünf Kilometer westlich der Stadt Göttingen und ist seit 1973 Ortsteil dieser Stadt. Groß Ellershausen ist überwiegend Wohngemeinde, in der noch ein landwirtschaftlicher Vollbetrieb erhalten ist. Die Einwohnerzahl betrug in 2019 1347.

Direkt am Ort liegt ein Jogger-, Radfahr- und Wanderweg, die alte Bahntrasse. Bis zum Wald sind es nur 5 min und am Ortseingang liegt das Vital Spa mit Fitness und Sauna. Der Sportverein bietet weitere Sportarten für jedes Alter direkt im Ort an. Für Kinder und Jugendliche bieten weiter der Heimatverein, die Kyffhäuserkameradschaft und die Freiwillige Feuerwehr mit der Jugendfeuerwehr Jugendarbeit an.

Weitere Vereine sind SV Gr. Ellershausen-Hetjershausen e.V., DRK-Ortsverein Groß Ellershausen/Hetjershausen e. V., Junggesellenverein von 1833 Groß Ellershausen, Der Jugendraum (Disco 2000) von Groß Ellershausen.

Zum Kaufpark nach Göttingen sind es nur knapp 6 km Entfernung. Eine Stadtbusanbindung ist vorhinden.

Weitere Informationen

Sonstiges Die Hausverwaltung übernimmt der Bauträger für das erste Jahr.

Ein normaler Tiefgaragenstellplatz kann für 30.000€ (22 Stück) und ein behindertengerechter Tiefgaragenstellplatz für 32.500€ (4 Stück) erworben werden.

Die Wohnungen sind bis 31.08.2026 bezugsfertig und das Gesamtobjekt ist bis 30.10.2026 fertig gestellt.

Weitere Informationen und ggf. auch Videos vom Baufortschritt finden Sie hier https://wohnen-mitaussicht.de/
VERBRAUCHERINFO
1. Maklerleistung ist der Nachweis der Gelegenheit zum Abschluss eines Vertrages bzw. Vermittlung eines Vertrages über eine Immobilie gegen die Courtagezahlungspflicht des Kunden
2. Unternehmer,Anschrift,Beschwerdeadressat
LBSi NordWest, Himmelreichallee 40, 48149 Münster, Tel:0251/973233-997, eMail:info@lbsi-nw.de
GF:Martin Englert, Volker Goldbeck
3. Es besteht ein Widerrufsrecht
4. Weitere Infos: verbraucherinfo.lbsi-nordwest.de

Verbraucherinformationen - http://verbraucherinfo.lbsi-nordwest.de

Homepage Bauprojekt - https://wohnen-mitaussicht.de/ Stichworte Tiefgarage vorhanden, Anzahl der Schlafzimmer: 4, Anzahl der Badezimmer: 1, Anzahl der separaten WCs: 1, Anzahl Balkone: 1, Balkon-Terrassen-Fläche: 10,97 m², Bundesland: Niedersachsen, 2 Etagen Sonstiges/Wohnen: seniorengerechtes Wohnen

Weitere Services

Lust auf eine Besichtigung?
Eine Frage zur Immobilie?
Nachricht hinzufügen
Mit der Nutzung der oben angegebenen Telefonnummer oder durch Klicken auf „Kontaktieren“ akzeptierst Du die Allgemeinen Nutzungsbedingungen, denen Du jederzeit widersprechen kannst. Weitere Informationen zum Datenschutz

Über den Anbieter

Am Münster 28, 37154 Northeim
partner badge
Partnerschaft
Herr Oliver Kirch
Herr Oliver KirchDein Kontakt
Online-ID: 2ebu45e
Referenznummer: 4060-09
Kreis-Sparkasse Northeim
title
Kreis-Sparkasse Northeim
Bewertung: 4,6 von 5 Sternen
Nachricht hinzufügen
Mit der Nutzung der oben angegebenen Telefonnummer oder durch Klicken auf „Kontaktieren“ akzeptierst Du die Allgemeinen Nutzungsbedingungen, denen Du jederzeit widersprechen kannst. Weitere Informationen zum Datenschutz
Wie zufrieden bist du mit dieser Seite (nicht mit der Immobilie selbst)?