Version: 8.22.4Navigation überspringen
599.000 €
4 Zimmer  •  116,5 m²
Immowelt logo

Einfamilienhaus zum Kauf - Erstbezug
599000 €
5.140 €/m²
4 Zimmer  •  116,5 m²

Wohnen in Enzersfeld - Ihr Traumhaus in exklusivem Neubauprojekt!

EXKLUSIVES EINFAMILIENHAUS IN ENZERSFELD - STILVOLLES WOHNEN IN NATURNAHER UMGEBUNG

In der charmanten Gemeinde Enzersfeld im Weinviertel entsteht ein modernes Neubauprojekt mit insgesamt vier hochwertigen Einfamilienhäusern. Jede Einheit kombiniert zeitgemäßes Design mit einer idyllischen Lage, nur 15 Kilometer von der Wiener Stadtgrenze entfernt. Die großzügigen Gärten, durchdachten Raumkonzepte und hochwertige Ausstattung machen dieses Projekt zu einer besonderen Gelegenheit für anspruchsvolles Wohnen im Grünen.

Jedes Haus ist lichtdurchflutet gestaltet und bietet eine großzügige Raumaufteilung auf drei Ebenen. Private Gärten, Terrassen und Dachterrassen schaffen eine ideale Balance zwischen Wohnkomfort und naturnahem Lebensstil. PKW-Stellplätze mit E-Ladesäulen sorgen für zusätzlichen Komfort und Nachhaltigkeit.

Ihr neues Zuhause - Haus 2

Das Haus bietet mit seiner großzügigen Wohnfläche und den zahlreichen Freiflächen Platz für modernes und komfortables Wohnen:

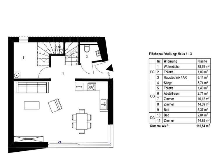
Erdgeschoss: Der Mittelpunkt des Hauses ist die offene und helle Wohnküche. Ergänzt wird diese Etage durch ein separates WC und einen praktischen Abstellraum.

Obergeschoss: Zwei geräumige Zimmer bieten viel Platz für individuelle Nutzung. Ein modernes Badezimmer, ein separates WC und ein weiterer Abstellraum stehen ebenfalls zur Verfügung.

Dachgeschoss: Das Dachgeschoss beherbergt ein exklusives Master-Bedroom mit eigenem Badezimmer. Von hier gelangen Sie direkt auf die private Dachterrasse, die mit einem wunderbaren Blick auf die umliegende Natur punktet.

Eckdaten - Haus 2

    .    Wohnfläche: 116,54 m²
    .    Garten: 36,54 m²
    .    Terrasse: 6,73 m²
    .    Balkon: 2,99 m²
    .    Dachterrasse: 6,99 m²
    .    Parkplätze: 2 KFZ-Stellplätze

KAUFPREIS: 599.000,- EUR (INKL. 2 STELLPLÄTZE)

Ausstattungsdetails

* Fertigstellung: Frühjahr 2026
* Schlüsselfertige Übergabe
* Eichenparkettböden und moderne Feinsteinzeugfliesen
* Luftwärmepumpen-Zentralheizung mit Fußbodenheizung und Kühlung
* Dreifach verglaste Isolierfenster aus Kunststoff-Alu mit integrierten Jalousien
* Vier Einfamilienhäuser mit Garten, Terrassen und Dachterrassen
* Großzügige Wohnräume mit lichtdurchflutetem Ambiente
* Nachhaltige und hochwertige Bauweise
* PKW-Stellplätze inkl. E-Ladesäulen 
* Ruhige Lage mit bester Infrastruktur

Nebenkosten:

* 3 % des Kaufpreises zzgl. 20% USt. - Vermittlungsprovision
* 1,5 % des Kaufpreises zzgl. 20% USt und Barauslagen - Vertragserrichtungskosten und Treuhändlerhonorar:
* 1,1 % des Kaufpreises - Eintragung ins Grundbuch  
* 3,5 % des Kaufpreises - Grunderwerbsteuer    

Lage und Infrastruktur

Enzersfeld im Weinviertel bietet eine perfekte Kombination aus Ruhe und erstklassiger Anbindung. Die Wiener Stadtgrenze erreichen Sie in nur 15 Minuten, das Stadtzentrum in rund 30 Minuten. Einkaufsmöglichkeiten wie das G3 Shopping Resort Gerasdorf liegen nur 10 Minuten entfernt.

Die Region zeichnet sich durch ihre Weingüter, Heurigen und die wunderschöne Landschaft aus. Trotz der ländlichen Umgebung profitieren Sie von einer hervorragenden Infrastruktur, die das Wohnen hier besonders attraktiv macht.

Interesse geweckt?

Kontaktieren Sie uns gerne für weitere Informationen oder eine Besichtigung.

Telefon: +43 699 1929 3025
E-Mail: anfragen@immoagency.at

Wir weisen darauf hin, dass zwischen dem Vermittler und dem zu vermittelnden Dritten ein familiäres oder wirtschaftliches Naheverhältnis besteht.

Der Vermittler ist als Doppelmakler tätig.

Merkmale

  • Bezug: Frühjahr 2026
  • 2 Stellplätze: 2 Außen-Stellplätze
  • Gäste-WC
  • Balkon
  • Terrasse
  • Badewanne
  • voll klimatisiert
  • Bodenbelag: Fliesen, Parkett

Grundrisse

Grundrisse
1 / 4

Realisiere Dein Projekt

Bausubstanz und Energie

Heizwärmebedarf (HWB)

B

Gesamtenergieeffizienz (fGEE)

A
  • Zustand der ImmobilieNeubau, Erstbezug
  • HeizungsartFußbodenheizung
  • EnergieträgerLuft-/Wasser-Wärmepumpe
Immowelt logo

Preisdetails

Kaufpreis
599000 €
5.139,87 €/m²
Provision für Käufer
3% des Kaufpreises zzgl. 20% USt.
Weitere Preisinformationen
2 Stellplätze

Lage

address-icon
Enzersfeld im Weinviertel (2202)
Der Anbieter hat die genaue Adresse nicht freigegeben

Weitere Informationen

Sonstiges
Homepage - https://muehlengasse1.at/ Stichworte Stellplatz vorhanden, Nord-Balkon/Terrasse, Anzahl der Badezimmer: 3, Anzahl der separaten WCs: 2, Anzahl Balkone: 1, Anzahl Terrassen: 2, Balkon-Terrassen-Fläche: 16,71 m², Gartenfläche: 36,54 m², Bundesland: Niederösterreich, 2 Etagen

Weitere Services

Lust auf eine Besichtigung?
Eine Frage zur Immobilie?
Nachricht hinzufügen
Mit der Nutzung der oben angegebenen Telefonnummer oder durch Klicken auf „Kontaktieren“ akzeptierst Du die Allgemeinen Nutzungsbedingungen, denen Du jederzeit widersprechen kannst. Weitere Informationen zum Datenschutz

Über den Anbieter

Immo Agency GmbH
Immo Agency GmbHMaklerbüro
Josefstädter Straße 43-45/1a, 1080 WIEN
partner badge
10 Jahre Partnerschaft
IMMO AGENCYDein Kontakt
Online-ID: 2hkbe54
Referenznummer: OBGC20241207162734759806b8a6c0b
Immo Agency GmbH
Immo Agency GmbH
Bewertung: 5 von 5 Sternen
Nachricht hinzufügen
Mit der Nutzung der oben angegebenen Telefonnummer oder durch Klicken auf „Kontaktieren“ akzeptierst Du die Allgemeinen Nutzungsbedingungen, denen Du jederzeit widersprechen kannst. Weitere Informationen zum Datenschutz
Wie zufrieden bist du mit dieser Seite (nicht mit der Immobilie selbst)?